客厅背景墙太小了怎么办 (背景墙太大显得电视小怎么办)

园区 / 上东花墅

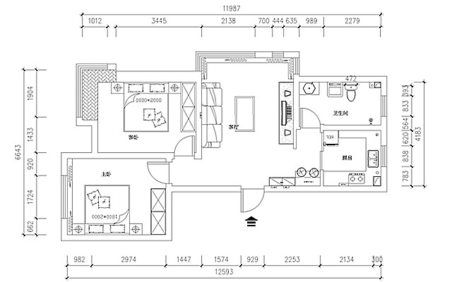
面积 / 85㎡

风格 / 现代风格

户型 / 两居室

客厅电视背景墙太小怎么办,客厅背景墙太小

本案为两室两厅户型,现代风格设计。设计师根据业主需求,进行了精心的规划与设计。对原始户型进行了二次设计改造,使空间利用更加合理,也使动线更加人性化,适应业主的日常居家需求。

客厅电视背景墙太小怎么办,客厅背景墙太小

原始结构背景墙过于狭小,以镂空隔断加长背景墙视觉效果,餐桌椅配以灰色调的软装饰品,无一不体现了营造者的修养和品位。

客厅电视背景墙太小怎么办,客厅背景墙太小

空间的创造,光影的明暗,或是静谧,或是怀旧,或是澄净与浪漫,在摆脱了僵硬的无语言的框架后,驻入给空间一段新的阐述,成为居住者展现自我的舞台。

客厅电视背景墙太小怎么办,客厅背景墙太小

好的设计应该是以人为本的,其实就是设计时围绕人的需求出发。业主想要什么以及他们的内心需求。只有充分考虑消费者的需求,才能设计出最合理、最实用、最完美的空间。

客厅电视背景墙太小怎么办,客厅背景墙太小