我是小师妹,一个用专业视角为大家解读农村住宅优缺点的普通建筑师,欢迎关注我的头条号“小师妹建房评测”
现如今有很多定制设计别墅的设计师,小师妹觉得判断一个定制设计设计师能力最关键的一点就是看设计师有没有结合地形对建筑进行设计,比如结合定性增加采光面,结合地形设计错层,结合别墅所处位置考虑阳台是否封闭等,这些是检验设计师最有有效的方法。
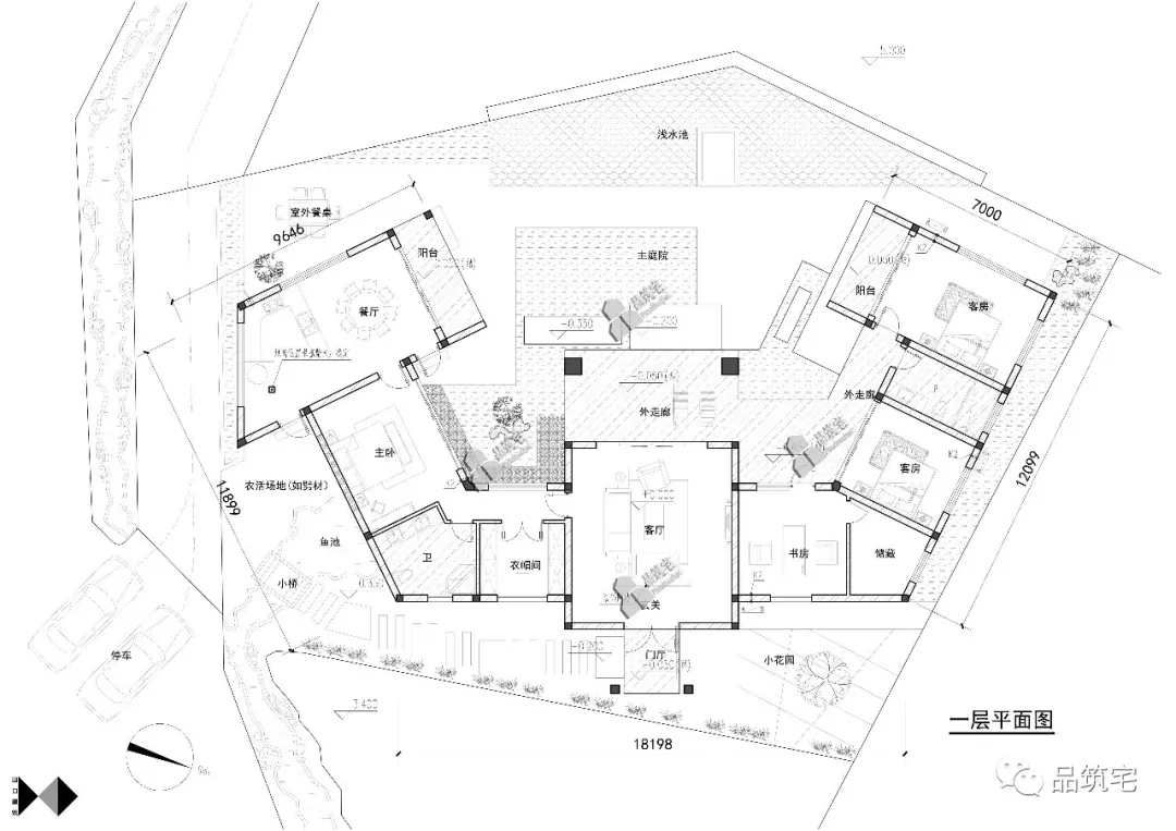
今天为大家介绍的是一栋三合院项目,有别与之前其他公司的传统三合院项目,今天的三合院项目风格为现代中式的,来自品筑宅,建筑面积230平米左右,一起来看看有什么优点和不足吧。
参数一览

建筑造型

整个建筑分为三段,可以说是一个三合院,但是和传统的三合院又有所不同,并非相互垂直的布置。

整个屋顶形态像是一个拥抱大山的形象,与周边环境结合紧密。

院落处结合地形设计了三角形的无边界游泳池,纵览无限风景。

整个建筑使用了新中式的外装饰风格,屋顶挑檐进行了挑出。

建筑屋檐椽子的细节处理得当,对中式元素进行了合理的运用。

建筑庭院部分进行了一定的铺装划分,也设计了简单的高差,提高了庭院空间的丰富性。

屋顶为长短坡的形式,避免了进深过深导致的建筑线的笨重。

户型点评

户型概况:四室两厅一厨两卫
户型优点
- 这样的平面格局一般还是很少见,所以有很多趣味空间别具一格
- 建筑的折线形式使得建筑获得了最大的南向采光面积
- 设置了独立的门厅
- 主卧配备独立衣帽间及卫生间
- 拐角处作为附属空间,对空间规整度要求不高
- 庭院设计细致
户型不足
- 次卧书房的卫生间需要穿行室外才能使用
小师妹友情提示
本期内容可以说是定制案例的代表了,结合场地以及建筑功能需求做了良好的规划,入户庭院设计,庭院水景等设计与建筑都是相得益彰,建筑形式完全根据各房间采光和流线需求来布局,对后院进行了有效的围合,建筑从室内到室外都有较高的空间丰富性,是一套极佳的度假别墅。
该案例版权归属属于设计单位,文章观点仅代表小编个人观点,在设计中往往由于业主的定制化要求使得设计师在设计中不得不做出妥协,因此小师妹点评仅供参考!
如果您喜欢今天这期的别墅风格,小师妹以往也评测过其它案例,有兴趣可以点击标题直接阅读哦!
2019/04/04 这个中式庭院的坡屋顶,连续相接有些特别

2019/04/08 两层四合院,厢房通过玻璃连廊通向正房,果然惊艳

我是小师妹,一个用专业视角为大家解读农村住宅优缺点的普通建筑师,欢迎关注我的头条号“小师妹建房评测”
下期看啥?
来自安得别墅的超豪华现代中式四合院项目
