上海中心大厦项目概况

•开工时间:2008年11月29日。
• 竣工时间:2014年。
• 占地面积:3.0368万平方米。
• 建筑面积:57.4058万平方米,其中地上总建筑面积约41.0139万平方米。
• 建筑总高度:632米。
• 建筑层数:地下结构5层,地上部分包括121层塔楼和7层东西裙房。
• 结构形式:钢筋混凝土核心筒-外框架结构。
• 用钢量:约10万吨。
• 建筑造价:148亿元。
• 建筑/结构设计单位:M.Arthur Gensler Jr.&Associat - es,Inc.同济大学建筑设计研究院
• 工程监理单位:上海建科建设监理咨询有限公司
• 施工单位:上海建工(集团)总公司总承包
• 绿色建筑顾问单位:上海市建筑科学研究(集团)有限公司
• LEED认证顾问单位:德国誉德(KOOPX)建筑设计集团
• 总承包单位:上海建工(集团)总公司
• 建设用途:国际标准的二十四小时甲级办公、超五星级酒店和配套设施、主题精品商业、观光和文化休闲娱乐、特色会议设施五大功能。
• 创造多项“奇迹”
上海中心,这位身材高挑的东方美人,与生俱来就和“奇迹”结下不解之缘:世界上最高的绿色建筑、最大的主楼底板浇筑、最大直径的塔楼维护结构、施工精度最高的幕墙支撑钢结构系统全国最大的建筑吊车、最大质量的阻尼器、首家自创中式奢华超五星酒店、最高的全景餐厅、最高的酒店大堂、最高的景观游泳池、最高的空中花园、最快的电梯、最先设立云计算机房的超高层建筑、最先进的中央能源管理中心、最高的风力发电,亚洲最大容量的柴油发电机、行走路径最复杂的擦窗机。
工程概况
1、建筑概况

上海中心大厦、地下5层、地上121层,总建筑面积为574058平方米,地上总建筑面积为4101349平方米,建筑总高度632米,集商业、办公、酒店、观光于一体的超高摩天大楼。
2、结构概况
主楼上部结构为钢筋混凝土和钢结构的混合结构体系,主要包括钢筋混凝土核心筒巨型柱、外围钢框架及径向楼面桁架环形带状桁架、伸臂桁架屋顶皇冠楼层系统、塔楼沿高度分为9个区,每个分区的顶部两层为设备/避难层。

主楼为钢筋混凝土和钢结构组合而成的混合结构体系。竖向结构包括核心筒和巨型柱,水平结构包括楼层钢梁、楼面桁架、带状桁架、伸臂桁架以及组合楼板。


主楼基坑施工概况
1、建筑概况
“上海中心大厦”项目基地总面积约3.61万m2(含红线外花园石桥路、东泰路道路地下管廊公共通道面积0.57万m2)。拟建塔楼总层数为121层,裙房地上8层,地下5层,塔楼建筑高度为632m,为超高层摩天大楼,建成后将成为中国第一高楼。
2、支护概况
(1) 本工程塔楼基坑开挖深度为31.10m,采用明挖顺作法的基坑施工方法。
(2) 塔楼区围护采用121m直径的环形地下连续墙围护体系,围护 地墙厚1200mm,支撑体系为6道环形圈梁。
3、土方工程
主要采用先开挖中部土方再挖环边土方的挖土顺序,总土方量约38万方。

4、施工流程


主楼大底板施工概况
1. 施工概况
(1) 主楼基坑呈直径121m的圆形地下连续墙布置,基坑面积约11500m2。整个基 坑由主楼、裙房及中间过渡区域组成。
(2) 主楼区域底板呈八边形,面积约9270m2,坑底标高为-31.40m,底板厚度6m。主楼靠近中间部位有一个电梯井深坑,面积约590m2,坑底标高为-33.40m(主楼 坑中坑即-33.40~-31.45标高底板已于前期先行浇筑完毕)。
(3) 紧贴地下连续墙内侧部分为裙房区域底板,面积约为2230m2,坑底标高为-28.80m,底板厚1.6m。
(4) 在主楼与裙房之间有一条八边形的过渡区域,宽3.5m,板厚由6m过渡至1.6m
(5) 整个基坑大底板板面标高均为-25.40m,底板砼全部采用强度等级为C50R90 的商品混凝土,抗渗等级为P12,本次混凝土总方量约为60000m3(主楼底板坑中坑已先行浇筑,其混凝土总方量约为1000m3),其中主楼基坑底板混凝土方量约为56400m3 、主楼区域基坑裙房底板混凝土方量约为3600m3(1.6m板厚区域)。所需混凝土由上海建工材料工程有限公司负责供应。
(6) 主楼基坑底板南侧局部含人防区域,该人防区域面积约2900m2,混凝土总方 量约13000m3。
2、现场施工概况

主楼上部结构施工流程
1、总体施工流程
主楼上部结构施工分三个节拍:
一、核心筒墙体施工E:\液压自爬模.flv
二、巨型柱及外围楼板施工巨型柱及外围
三、核心筒内楼板施工楼E板:\施自工流平混凝土.flv

在外围钢框架桁架层施工中钢框架施工节奏较慢,与核心筒的施工距离逐渐加大。在核心筒中的伸臂桁架层施工中核心筒施工节奏较慢,与外围钢框架的施工距离逐步减少,如此循环,直至主体结构施工至屋顶皇冠底部。
核心筒施工
1、概况
钢筋混凝土部分

本工程核心筒在立面上共分为9个区域,核心筒墙体混凝土强 度均为C60。墙体厚度随高度上升而递减,其中核心筒内部腹墙以轴 线为中心共有5次对称收分,其厚度从900mm变化至500mm,核心筒外部翼墙以内边线为基准由外墙向内墙共有5次收分,厚度从1200mm变化至500mm。其中在4区、5区避难及设备层腹墙厚度发生突变。
核心筒截面在1区至4区呈正方形九宫格筒体,到第5区后,四个 角部的墙体开始向两边收缩,至第7区时,原有的九宫格变为十字型 五宫格筒体,最终在核心筒顶部收缩成1字型三宫格筒体。
核心筒钢结构部分
核心筒墙体交界处内埋劲性钢柱,从底部一直贯穿到核心筒顶部573.9m。核心筒1层至18层,23层至34层,50层至51层部分墙体内设有单层钢板,钢板在上下楼层间断开, 采用暗梁连接。核心筒遇伸臂桁架层在墙体内埋设有约两 层高的井字型伸臂桁架,贯穿整个腹墙。核心筒120层以 上墙体内均埋设有劲性钢结构。

2、钢筋工程
(1) 核心筒剪力墙钢筋品种规格比较多,结构竖向主筋主要为32、28、25、22、18等多种规格;横向分布筋钢筋主要为22、20、16、14等多种规格。压型钢板组合楼板钢筋有12、10、8等多种规格。
(2) 钢筋直径规格大于等于20mm时采用镦粗直螺纹机械接头连接,其余采用绑扎搭接方式连接。
3、脚手架工程
1-8层采用落地脚手,9-12 层采用悬挑脚手,13层起采用液压顶升钢平台。

4、模板工程
1-12层采用VISA芬兰大模板。13层以上采用钢框大模板,模板面板采 用芬兰维萨胶合板定型大模板,肋及围檩采用型钢制作。
5、混凝土工程
(1) 混凝土均为商品砼,核心筒剪力墙混凝土强度等级为C60,压型钢板组合楼板。混凝土强度等级为C35;
(2) 每框混凝土方量在1000 m3左右;混凝土浇捣采用固定泵接2台28m布料机浇捣。
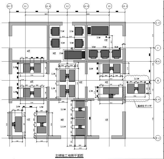
主楼施工电梯方案

上海中心大厦主楼核心筒内共布置20台施工电梯,其中11台为人货两用电梯,
9台为利用永久电梯进行施工的施工电梯,根据其使用性能将20台施工电梯分为3类:
A类:用于在主楼结构施工中人员的输送往返;此类电梯采用高速、双笼人 货两用施工电梯,停靠层数较少,一般只停靠结构施工区域。如:L1#、L2#、L12#人货两用电梯。
B类:用于幕墙、二结构、装饰、机电安装等施工中人员及材料的运输往返;此类电 梯采用中、高速;单、双笼相互结合的人货两用施工电梯,停靠层数较多。如:L3-1#、 L3-2# 、 L4#、L5#、L8#、L9#、L10#、L11#施工电梯。
C类:利用本工程中的部分永久电梯作为施工电梯投入使用的电梯。如:Y1#、Y2#、Y3#、Y4#、Y5#、Y6#、Y7#、Y8#、Y9#。