
在20世纪90年代后期,普惠公司推出了推力范围为120~160kN 的齿轮传动涡扇发动机PW8000,后因某些原因终止了发展,但其在减速器的开发研制工作,为今日的 PW1000G研制开发打下了一定的基础。
进入21世纪后,在“绿色航空”的要求下,各航空发动机公司均提出了用于旅客机的低耗油率、低噪声与低排放的新一代发动机的研制计划,普惠公司在这种形势下,提出“齿轮传动涡轮风扇发动机 GTF”的计划,他们认为在采用了最新的 TALON燃烧室的 GTF,能完全满足最新的噪声与排放标准,且保有较大的裕度,能成为支线客机及干线客机的动力。
GTF提出后,受到航空界的广泛注意,2007年10月,日本三菱公司选用了 GTF为该公司下一代支线客机 MRJ70/90的动力,随后加拿大庞巴迪公司选用了 GTF为该公司下一代支线客机 C系列(C110及C 130)的动力。
2008年7月范堡罗航展期间,普惠公司宣布将GTF命名为“洁净动力”PW1000G,并将用于 MRJ的发动机命名为PW1214G(推力为14000lbf级),将用于 C系列的发动机命名为PW1524G(推力为24000lbf级)。截至2009年6月,普恵公司已得到250台发动机的定货。

图2、 PW1000G装在B747SP飞行试车台的位置
2009年8月19日普惠公司在莫斯科航展上宣市,PW1000G的验证机已完成了406小时的地面台架试车,120小时的空中试车(在普惠的B747SP飞行台上进行了12次45小时试车,在空客的 A340 600飞行台上进行了27次75小时试车)。这些成功的验证飞行,无疑降低了这种发动机进入商业运营的风险。
图2所示为PW1000G在普惠公司的B747SP飞行试车台安装情况。一般新发动机安装到飞行试车台时,是将原有的1台发动机卸下,换上需试车的新发动机。但是,为了进行PW1000G飞行试验,B747SP上仍保留原有的4台发动机,而在机身上部专门伸出了一个短翼,要试车的PW1000G吊装在此短翼下。

表2列出了PW1000G两个系列发动机的主要参数。
除MRJ及C系列外,最近,俄罗斯新研制的 MS 2客机及空客的 A320neo客机也选用了PW1000G,因此,PW1000G已有4个系列,即PW1200G用于日本的MRJ客机,推力最小,为67~76kN;PW1500G用于巴西的 C系列客机,推力为93~104kN;PW1100GJM用于空客的 A320neo,PW1400G用于俄罗斯的 MS2,后两系列的推力相同,为110~150kN。

表2、PW1000G两个系列发动机的主要参数
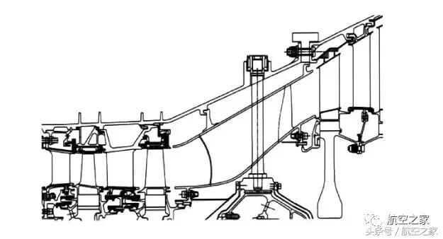
4 PW1000G总体结构
PW1000G由1级风扇、传动风扇的减速器、3级低压压气机、8级高压压气机、采用 Talon 技术的环形燃烧室、2级高压涡轮及3级低压涡轮组成,如图3所示。
与传统的高涵道比涡扇发动机不同的是,风扇与由低压压气机及低压涡轮组成的低压转子间装有一套减速器,因此,转子支承的方式有它独特之处,如图4所示。

图3 、PW1000G
风扇转子与低压转子没有直接相连,是悬臂地支承于并列的两个圆锥滚子轴承1上的,这种用圆锥滚子轴承支承的方式,实属少有。由于风扇转速较低,为采用圆锥滚子轴承提供了可能性,在常规的高涵道比涡扇发动机中,风扇转速较高,是无法采用这种轴承的。
高压转子的支承方式与普惠常用(如JT9D、PW4000)的不相同,为10 1的2支点支承方式,高压压气机前一个滚珠轴承3,通过低、高压压气机间的中介机匣将转子的负荷传出;
高压涡轮后装有滚棒轴承4,通过高、低压涡轮间承力框架外传负荷。低压转子采用0 1 1的2支点支承方式,即低压涡轮后的滚棒轴承5支承于涡轮后轴承机匣上,低压压气机后轴支承于滚珠轴承2上,低压涡轮轴前端通过套齿与低压压气机内伸的过渡短轴内套齿刚性地相连。
由于高压压气机只有8级,穿过高压压气机中的低压涡轮轴相对较短,因此2支点的支承方式还是适宜的。
5 风 扇
一级风扇叶片采用最新3D气动技术设计成掠形宽弦无凸肩叶片,采用了低的叶尖切线速度,低的增压比(1.4),可提高效率,降低噪声,且能大大提高叶片的抗外物打击能力。叶片是用钛合金还是用复合材料普惠正在选择中(《飞行国际》网站2009年5月20日报导)。
风扇轮盘通过中心的套齿与支承于一对圆锥滚子轴承的风扇轴相连,减速器的输出轴也连接到风扇轴上。风扇机匣用复合材料制成,这是继 GEnx后采用复合材料制作风扇机匣的又一发动机,复合材料作风扇机匣不仅零件数少,重量轻,维修性好,而且有较强的包容能力。
风扇叶片后缘与分流环间有较大的间距,便于将空气中的砂石雨水等甩到外涵。出口导向叶片不仅距风扇叶片后缘远,而且是斜置的,以降低风扇的噪声。

6 传动风扇的减速器
传动风扇的减速器为简单的星形传动系统,如图5所示。减速器输入轴以外套齿与位于减速器中心的太阳齿轮相连接,围绕太阳齿轮有5个沿圆周均匀分布的行星齿轮,行星齿轮下端与太阳齿轮相啮合,上端与环形齿轮相啮合。
行星齿轮用中心轴通过平轴承(或称轴颈轴承)支承于行星齿轮支承架中,支承架由前后两块带五个连接柱的圆盘组成,连接柱插入两行星齿轮齿间的空档中,通过螺栓将前后圆盘牢固地连成一体。
行星齿轮支承架再通过支承架弹性座连接到机匣上,采用弹性结构是为了将整套减速器与发动机机匣孤立起来,当飞机作机动动作时,飞机的过载不会影响齿轮系统的正常工作。
为了提高齿轮的强度及抗冲击负荷的作用,齿轮的齿作成人字形,为了便于加工与装配,环形齿轮沿长度方向作成两段,通过短螺栓连接成一体。减速器的输入轴也作成具有一定弹性的结构,其作用是当低压转子与减速器不同心时,不会对齿轮系统的工作带来不利的影响。

图5、传动风扇的减速器简图
采用这种简单传动的星型减速器时,输出轴与输入轴的转向是相反的,即风扇转子与低压转子转向相反。
行星齿轮没有采用常用的滚动轴承,而采用了平轴承支承于支承架中,这样可减轻减速器的重量(普恵介绍称可减重180余千克),为验证平轴承的工作可靠性,进行过2万多次启动停车循环的磨损试验,试验后轴承的最大磨损处的磨损量小于涂层厚度的25%,证明平轴承有良好的抗磨性,能满足发动机的要求。
发动机的滑油系统设计中,将由散热器流出的温度较低的滑油首先供给减速器,从减速器流出的温度较高的滑油再输送到其它地方,这样,发动机只需用一种牌号的滑油。
7 低压压气机
3级低压压气机(在PW1214G中为2级)处于高转速下工作,不仅效率高,增压比也大(约为2.3)。第1级与第2级静子叶片作成可调的,三级均采用整体叶盘结构,通过短螺栓将第2级整体叶盘与第1级、第3级整体叶盘相连接,组成了可拆卸的转子,以适应整环设计的机匣。

图6、高压压气机
8 高压压气机
8级高压压气机(如图6所示)的增压比为14,平均级压比为1.39,是较先进也能达到的设计(PW8000虽为1.643,但困难较多,GE90为1.368)。前4排静子叶片作成可调节的,第4~7级静子叶片是悬臂地固定于机匣上。整个高压压气机机匣作成双层,外机匣传递负荷,内机匣作为气流通道的包容机匣。
除第8级工作叶片是装在轮盘上的环形燕尾槽的结构外,其他7级均采用整体叶盘结构,加上低压压气机中三级整体叶盘,PW1000G上共采用了10级整体叶盘,是当今用整体叶盘最多的发动机,为此,需发展能在转子上修理叶片的技术。轮盘与另一级鼓环间的连接方式,未采用普惠的传统作法(JT3D与JT9D的螺栓连接,PW4000的焊接连接),而采用了紧度连接,如图7所示,前级的鼓环用较大的紧度装于后级盘的圆孔中,装配时将轮盘加温到一定的温度,鼓环用干冰将其降温,然后将鼓环压入,在两者间产生较大紧度,这种方法连接成的转子是不可拆卸的。实际上,这种连接方法在苏联的发动机中应用较多,只是苏方还在两者间装入多个径向销钉。

图7、转子采用紧度连接的结构
9 燃烧室
PW1000G采用了普惠公司多年发展的低排放 TALON(TechnologyforAdvancedLow NOX)燃烧室,这种燃烧室已先后在 PW4098(TALONⅠ),PW4156、PW4168 及 PW6000 (TALON Ⅱ)上采用,只是在PW1000G中采用最新的发展型 TALONX,它的 NOX排放值不仅能满足最新的CAEP/6的要求,而且还有较大裕度,如图8所示。

图8、各型TALON燃烧室 NOX排放与CAEP标准的关系
10 涡 轮
PW1000G的2级高压涡轮与3级低压涡轮是反转的,如图9所示,这种反转设计近期已被多种发动机采用。从工作原理上讲,高、低压涡轮反转时低压涡轮可不用导向叶片,但在实际设计中,只有 YF120*用军**发动机中沒有采用低压涡轮导向叶片,其它军、民用发动机仍然采用。
在PW1000G中,对高、低压涡轮间的承力框架中的支板叶型,作了较好的分析与优化设计,因而取消了低压涡轮导向叶片,已成为第1型不用低压涡轮导向叶片的民用发动机,这种设计,少了一排叶片,不仅使发动机的零件数减少,重量减轻,而且也减短了发动机长度。
在PW1000G中,由于采用了传动风扇的减速器,使低压涡轮能在最优的高转速下工作,不仅使气动效率提高了约1.5%,而且大大减少了级数(约减少3级),使发动机长度与重量均降低较多,普惠估算,重量比常规设计的发动机低约270千克。

图9、高、低压涡轮
高压涡轮叶片中,采用了高升力叶型设计,并采用叶尖吹气技术以减小叶尖间隙中的漏气量。
11 维修性
在PW1000G研制中,除保证发动机有好的性能、可靠性与耐久性外,也注重了发动机的维修性设计。
例如,整台发动机分为5个大单元体;对有限寿命零件(LLP)的设计寿命为20000h;风扇叶片与传动风扇的减速器的零件均按无寿命限制设计;将风扇出口导向叶片及传动风扇的减速器设计为为外场可拆换组件(LRU);设有34个孔探口可在外场对所有叶片进行检查,还有10余个可修磨叶片的孔座等,另外还在计算机上用三维图形软件排列外部管路,并利用人素工程验证操作工人的可操作性,如图10所示。

图10、在计算机上布外部管路,验证工人的可操作性
12 结 语
由于PW1000G采用了突破传统构型的独特的传动风扇的减速器以及先进的 TALON燃烧室,使得发动机具有:油耗低(低12%左右),噪声低(比第4阶段要求低20dB),排放低(CO2排放每架飞机每年可减少3000t,NOX排放减少50%),维修成本低(叶片数少410%)等特点,能够适应新世纪航空业对新技术、低消耗、低排放的需求,对国内外航空业界无疑是一大喜讯。