
山雨欲来风满楼
最近,作为苏州刚需热门地,吴江运东板块内的两大重量级纯新盘旭辉吴门里和绿地理想城,不仅市场热度很高,入市大动作也高度重合,目前都已进入项目预约阶段,两盘正面硬刚,抢客大战已然打响!
尤其是,两大纯新盘位置相隔不远,预计首次开盘时间相近,这让许多买房人和置业顾问拿来做对比,竞争十分激烈。
房观实探了解,预计12月中旬,旭辉吴门里将提前一步入市抢开,而绿地理想城,预计12月中下旬迎来首次开盘,吴江运东两大刚需“收割王”该选谁?
今天,房观就现场实探,将从价格、产品、户型、地段、装修情况等多个方面进行分析,希望在大家买房路上有所帮助。

价格PK
必须承认,如今的苏州市场上对于刚需以及上车盘的购房门槛正在快速的、跨越式的抬高。
而对于苏州真正的刚需来说,楼盘价格仍是买房人最先考虑的购房因素。
2020年5月19日,旭辉以总价19.8亿竞得该地块, 成交楼面价12097元/㎡, 溢价率13.48%。
2020年7月8日,绿地香港以总价26.51亿吞下运东巨无霸地块, 成交楼面价9795元/㎡ 。
两场土拍,在当时掀起了不小的热议。一个是首进运东,精装销售,一个是体量近30万方的巨无霸,毛坯销售,备受市场关注的纯住宅地块,可谓是天生自带光环。
从楼面价来说,绿地地价在万元以下,而旭辉地价已超万元,两盘地价相差2302元/㎡,这也意味着,后期入市价格绿地更占有一定优势。
房观在案场了解到,两个纯新盘均对外释放了放风价, 绿地理想城放风价约1.8-1.9万/㎡ ,以最小户型约77㎡为例,总价140万起, 首付40万起 ,而 旭辉吴门里放风价约2-2.1万/㎡ ,以最小户型约75㎡为例,总价150万起, 首付45万起 。当然具体价格还要等项目预售证下来之后才能确定,以上价格仅供参考。
不得不说, 首付40万起能买到一套房,对于预算有限的刚需客群而言,诱惑力十足。
在案场,两盘销售都表示,目前预约小户型的客户占比份额最大,单价低、总价低、首付低、*款贷**压力减少标签下,可以说是买房人眼中的“首选项”。

产品PK
那么,两大纯新盘为买房人带来了什么样的产品呢?
我们先看一张对比图,答案一目了然。

绿地理想城:项目体量巨大,近30万方,而大盘最大优势就是在布局造景上流出更多空间,项目 绿化率38% , 约5万方 绿化景观分布在各个楼栋之间,其居住舒适度非常高。

小区整体楼栋排布南低北高,且高层分布四周,洋房在中间, 整体楼间距约40-45米 ,最大限度的保证采光和景观效果。并且,项目一期所有楼栋房源均是 一栋一户 ,非常纯粹。

最新消息:项目已经公开售楼处及样板间, 目前正在火爆预约中,预约金2万。预计将在12月中下旬开盘,首开洋房35#,户型建面约96㎡;高层27#、33#,户型建面约77㎡和85㎡,共计363套房源,毛坯交付。
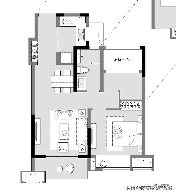
旭辉吴门里:项目占地约9万方,规划打造 26栋洋房、高层 ,体量不大,便于后期物业管理及服务。

小区楼栋排布与绿地理想城相似,高层在两边,洋房在中间, 整体楼间距约48米 ,楼间距尺度略胜一筹。
值得关注的是,小区内部配套比较高端, 拥有24小时开放的无人超市和无人药房,还有健身房 ,这一处细节,可一定程度上满足未来业主的日常所需,省心、省时。

最新消息:项目已经公开售楼处及样板间, 目前正在火爆预约中,预约金2万。预计将在12月中旬开盘,首开洋房5#、16#、17#,户型建面约86㎡、100㎡、122㎡;高层18#,三梯六户,户型建面约75㎡、89㎡、94㎡ ,装修交付。

户型PK
从户型面积段来看,绿地理想城户型建面约77-110㎡,旭辉吴门里户型建面约75-120㎡,两盘为刚需及刚改客群量身定制。
针对两盘首开的户型,高层和洋房各挑一个户型PK。
绿地77㎡VS旭辉75㎡

绿地理想城77㎡

旭辉吴门里75㎡
对比两个项目75㎡左右户型图,可以发现整体格局分布上,两个户型基本一样,都是2房一卫,2开间朝南,竖庭设计,主卧都做的是套房带飘窗。
不同的是,绿地厨房做了U型,户型更为方正,空间利用率高;而旭辉类似是L型。
旭辉主卧带有衣柜,空间尺度更为宽敞;绿地次卧窗户做了L型,带有转角,采光好。
绿地96㎡VS旭辉100㎡

绿地理想城96㎡

旭辉理想城100㎡
两个同样是洋房户型,且都是3房2卫,绿地更好的控制面积,从而控制总价。
从空间布局上看,绿地整个户型方正,进深短、宽透薄,又是大横厅设计,空间感非常强,加上没有过道,从而没有面积上的浪费,能产生更多溢价。
旭辉更注重的是居住舒适度,双联阳台,既能满足空间感又能提高利用率,厨房部分做了完全的分区,功能性强,南向主卧设计了一个玄关柜,这一处收纳空间,对于改善家庭来说很亮眼。
以上这两个户型PK算是各有优点,主要还是看购房者自身更偏爱哪一个。

装修PK
绿地理想城和旭辉吴门里最大的差别就是,一个是毛坯交付,一个是装修交付。
绿地毛坯交付标准图:

毛坯交付优势
1、省钱,对于普通刚需家庭来说,精装房会比毛坯房贵很多,大家更愿意少花一些购房成本,把剩下的钱放在装修房子上,争取做到每一笔钱都花在刀刃上。
2、装修猫腻,近两年苏州市场上“复杂”的精装,交房即维权等现象频出,到时候还要花更多钱重装,无形中增加了持房成本,而毛坯房就显得纯良很多。
3、自己设计,精装房虽然省事,可是一个楼栋基本都是千篇一律的装修风格,不具有独特性,而自己设计、自己去买材料,装成自己喜欢的风格,住起来更舒心、自在。
4、风格,现在市场上开始出现毛坯房也可直接入住,也就是如今流行的工业风,设计非常独特,尽管给人颜色单一,但这样的设计反而别具一格。
旭辉装修交付标准一览表:


厨房里: 老板的抽油烟机、灶具、摩恩的水槽和龙头、西门子开关......
卫生间里: 摩恩的水盆、龙头和淋浴花洒、科勒马桶、欧普暖风机......
另外,墙面均贴有墙纸、地板都是复合地板、木塑踢脚线、灯带等细节一一到位。
装修交付优势
1、质量有保证,业主对很多建材不了解,建材市场鱼龙混杂,装修的统一交房,从前期设计、施工,到验收都有专业人员严格把控,不仅质量上能得到充分保证,其成本也远远低于自己采购。
2、节省时间,购买之后基本上可以直接拎包入住,无论对自住还是投资,都是非常省心的事情。
3、减轻资金压力,装修费和买房的钱用在一起,可以按揭,减少装修资金带来的压力,这样购物房产的首期费用会减轻很多。

地段PK
说起地段,两个新盘都位于吴江运东板块,两盘之间仅隔约3公里,对于板块里的业主来说,大区域的配套红利,是共享的。

从具体项目位置来看,旭辉吴门里位于运东南核心地段,距离4号线庞金路站约1公里,是近地铁盘。家门口运河公园、农贸市场、教育全方位满足,其中,九年制运河实验学校(在建),步行约5分钟就到,还有15年制北大新世纪外国语学校(在建)。
而绿地理想城则更靠近运东南的东部,距离4号线地铁站骑共享单车约7分钟,但自驾相对便利,同津大道、东太湖大道、常台高速等主干道在旁边,如同津大道自驾约20分钟可直达园区湖东CBD。
项目北侧有规划两所幼儿园,还有山湖花园幼儿园及小学及吴江开发区实验初级中学,其次,南面一路之隔就是京东方医院(在建)。
从最新实探来看,绿地项目周边的城市建面及配套处于正在兑现的路上,而旭辉项目四周配套相对成熟。

最后,房观简单总价一下:
1、价格上,绿地理想城的价格友好且更有优势,适合预算有限的刚需和部分刚改人群,低单价、低总价轻松上车。
2、两个项目的规划产品及户型上整体差别不大,但绿地在空间造景上空出了更多留白发挥,景观视野好,而旭辉在社区配套上更高端、贴心,实用性和使用率强。
3、装修上,绿地是毛坯交付,而旭辉是装修交付,就看购房者更倾向于哪个盘了。
4.位置上,旭辉吴门里优于绿地理想城,配套相对成熟。