7月28日,深圳市龙华区城市更新和土地整备局发布关于观湖街道观城第一期城市更新单元(增补地块)意愿公示。
罗湖区人民政府发布关于《罗湖区清水河街道泥岗片区重点城市更新单元计划》(草案)的公示。
龙岗区城市更新和土地整备局发布关于《龙岗区园山街道安良社区安良七村片区城市更新单元计划(草案)》的公示。
光明区城市更新和土地整备局关于《光明区凤凰街道塘家第一工业区城市更新单元计划调整》的公告。
龙岗区城市更新和土地整备局发布关于园山街道DY01片区城市更新单元一期、二期实施主体的公示。
7月27日,深圳交易集团宝安分公司发布关于深圳市福围第三股份合作公司星港航空物流中心非农建设用地合作开发项目招标公告。
7月27日,深圳市住房和建设局发布《公共住房建设标准》。
01
观湖街道观城第一期城市更新单元(增补地块)意愿公示
龙华区观湖街道观城第一期城市更新单元位于梅观高速与观澜大道交汇处东南侧,该城市更新单元已列入2020年深圳市龙华区城市更新单元计划第四批计划。

现深圳市鸿荣源企业发展(集团)有限公司向我局申请增补拆除范围,面积为 21028㎡ 。

增补地块前,该项目拟拆除用地范围面积 705435㎡ ,拟更新方向为 居住 、 商业 、 普通工业 、 新型产业 (新型产业用地不超过最终批准产业用地面积的19%)等功能。该项目拟拆除范围内应落实用于城市基础设施、公共服务设施、政府公益性项目不少于324190㎡(含不少于33256㎡的教育设施用地,不少于28329㎡的综合医院用地,不少于2336㎡的社会福利设施用地及不少于99113㎡的绿地),拟贡献率不少于 45.9%。

申报主体为 深圳市鸿荣源企业发展(集团)有限公司 。
鸿荣源 从宝安开始起家,有“宝安王”、“关外地产王”之称。自1991年创立以后,鸿荣源早年一直专注于住宅领域,先后在宝安区开发了弘雅花园、雅豪轩、御景台、丽景城等外界反响不错的项目。在宝安经营稳固之后,鸿荣源继而杀入深圳香蜜湖片区,开发了熙园,并且开始全市布局,彼时的“宝安王”现被业内外誉为“豪宅专家”。
据了解,深耕深圳二十余年的鸿荣源,如今在深圳拥有超1000万㎡土地储备,拥有超大体量的土地储备面积,以壹城中心、壹方中心、鸿荣源金融中心等项目为起点,鸿荣源在城市核心区域创建系列百万平米超大型项目,布局大城版图。目前仅在龙华地区就拥有民治第三工业区旧改、宝山工业区旧改、牛湖老村片区旧改、清湖老村旧改、赖屋山城市更新单元等十几个项目,还拿下了龙华观城第一期城市更新单元、宝安钟屋黄田旧村城市更新单元等巨无霸项目。
02
泥岗片区重点城市更新单元计划公示
泥岗片区重点城市更新单元位于罗湖区清水河街道南临坭岗路(北环辅道)、北接金湖路,东临梅园小区,西至银湖路。该项目拆除范围面积为 156340㎡ ,拟更新方向为 居住 、 商业 等功能。
该项目土地移交率不低于 30% ,重点落实笔架山河复明工程泥岗段、教育设施用地及其他城市基础设施、公共服务设施、城市公共利益项目等用地。

申报主体为 深圳市罗湖区城市更新和土地整备局 。
根据相关委托证明材料,项目前期服务单位为 卓越集团 。目前,卓越集团在深圳已有超过30个旧改项目,其中盐田桥东旧改项目、龙华牛湖北片区项目、坪山汤坑片区项目、卓越九珑项目、葵涌谭屋围项目、葵涌横头双伍、横朗城市更新项目、松岗商业中心、宝安翻身47区项目等均已启动。
03
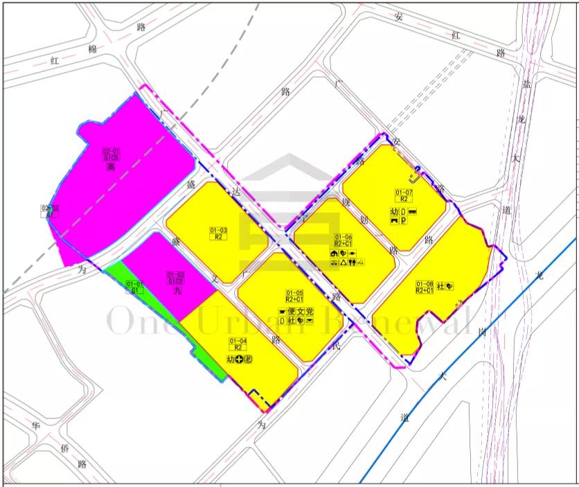
安良七村片区城市更新单元计划公示
安良社区安良七村片区城市更新单元位于龙岗区园山街道,拟拆除范围面积 220623㎡ 。
该更新单元更新方向为拟更新方向为 居住、商业、物流、普通工业 等功能;拟拆除范围内应落实不少于1798㎡的行政办公用地,26226㎡的教育设施用地、10403㎡的公园绿地,总计落实不少于 97713㎡ 的公共利益用地,拟贡献率不少于 44.3%。
在更新单元规划阶段落实工业区块线等相关管理规定要求。

申报主体是 今盛工程管理咨询(深圳)有限公司 。查询工商信息显示,此公司由 佳兆业集团有限公司 全资控股。
2004年,佳兆业开始涉足旧改,多年来已经拥有了系统的作业流程和管理规范,在旧城改造的规划、*迁拆**、建设等关键环节都拥有核心竞争力,被誉为深圳“旧改之王”。根据佳兆业2020年业绩报告,在城市更新项目储备方面,佳兆业拥有项目201个,占地面积超5000万㎡,绝大部分位于大湾区,其中深圳、广州两地货值占比高达86%,具体来看,深圳120个项目,可售面积达3000万㎡,广州26个项目,可售面积4700万㎡。
04
塘家第一工业区城市更新单元计划调整公告
塘家第一工业区城市更新单元已列入《2019年深圳市光明区城市更新单元计划第一批计划》,该项目位于位于光明区凤凰街道,东临龙大高速,南邻光侨路,西靠塘家南路,距在建地铁6号线长圳站1.1km,距广深港客运专线光明城站1.5km。该项目拆除范围用地面积 91063㎡ ,拟更新方向为 居住 (采取城市更新方式建设公共住房)等功能。
该项目拟拆除用地范围内应落实不少于 37423㎡ 用地用于建设城市基础设施、公共服务设施及其它城市公共利益项目,其中,应落实用地面积不小于 20400㎡ 的45班九年一贯制学校一所,落实用地面积不小于 2894㎡ 的绿地。落实一处公交首末站。拟贡献率不少于 41.1%。
更新单元计划有效期2年,自2021年7月28日起至2023年7月27日止。

申报主体为 深圳市京联房地产开发有限公司 。查询工商信息显示,该公司大股东为深圳市博伦沃德投资有限公司,博伦沃德投资公司由金融机构建信信托持有股份70%。
项目或由博伦沃德投资公司旗下另一家子公司—— 深圳市心海控股有限公司 操盘。 心海控股集团 是一家在全国范围内集实体投资、金融服务、保险、基金、教育等业务为一体的多元综合服务集团公司。心海控股集团在深圳拥有众多项目,如:心海天誉、宝安前进一路沃尔玛购物广场片区城市更新单元、宝安观澜街道蚌岭片区城市更新单元等项目。
05
园山街道DY01片区城市更新单元一期、二期实施主体公示
龙岗区园山街道DY01片区城市更新单元于2019年5月列入 《2019年龙岗区城市更新单元计划第四批计划》 ,现该规划公告已经深圳市城市规划委员会建筑与环境艺术委员会审批通过。
项目位于园山街道保安社区,城市主干道龙岗大道与城市次干道广达路交汇处西北侧。

主要技术经济指标
城市更新单元用地面积 215477.6㎡ ,拆除范围用地面积 197564.1㎡ ,开发建设用地面积为 111486.2㎡ (含划入零星用地面积325.2㎡),规划容积 790589㎡ ,规划容积率 7.1 。

其中住宅 605545㎡ (含保障性住房合计62230㎡,其中安居型商品房18669㎡,公共租赁住房18669㎡,租赁型人才住房24892㎡),商业、办公及旅馆业建筑153981㎡(含母婴室310㎡),公共配套设施(含地下)31063㎡(含9班幼儿园2400㎡、占地面积3000㎡,18班幼儿园4800㎡、占地面积5400㎡,社区管理用房300㎡,便民服务站400㎡,社区警务室50㎡,社区健康服务中心2000㎡,社区老年人日间照料中心1500㎡,文化活动室2000㎡,社区级公共配套用房11823㎡,综合车站3000㎡,公共充电站1100㎡,小型垃圾转运站480㎡,环卫工人作息房40㎡,公共厕所120㎡,再生资源回收站100㎡,邮政所100㎡,*党**群服务中心650㎡,片区汇聚机房200㎡)。另配建社区体育活动场地2处,占地面积共计6000㎡;1处自行车停车场(库),依据《深圳市城市规划标准与准则》予以核定。

《深圳市龙岗区人民政府关于<龙岗区园山街道DY01片区城市更新单元规划>审批情况的通知》,该更新单元一期拆除范围用地面积 126410㎡ ,二期拆除范围用地面积 71154.1㎡ 。深圳市信懋投资发展有限公司已完成了该更新单元拆除范围内土地、房屋及其它地上附着物的搬迁补偿安置协议的签订。根据《深圳市城市更新办法》及其实施细则、《龙岗区拆除重建类城市更新项目实施主体资格确认工作程序》等有关规定, 拟确认深圳市信懋投资发展有限公司为该项目的实施主体 。

实施主体为 深圳市信懋投资发展有限公司 ,查询工商信息显示,该公司大股东为深圳市信贤房地产开发有限公司,且为信义集团关联公司。
香港信义集团(玻璃)有限公司主要从事汽车玻璃制造、汽车配件等行业,是全球第三大“玻璃王国”,掌门人李贤义被称为“玻璃大王”。信义玻璃在横岗拥有大量厂房,这也是信义的地产项目都集中在龙岗的主要原因。
自1992年成立以来, 信义地产 就开始涉足旧改领域,首个代表性项目便是龙岗区布吉的大型社区项目信义假日名城。其后,该公司在龙岗区布吉、横岗先后获得信义·荔山公馆、信义锦绣花园、信义大厦等项目。目前信义在龙岗的土储包括木棉湾入口片区项目、同乐万泉旧村改造项目以及塘坑路北片区项目、金源工业区等城市更新项目。
06
深圳市福围第三股份合作公司星港航空物流中心非农建设用地合作开发项目招标公告

项目基本情况:
深圳市福围第三股份合作公司(下称招标人)星港航空物流中心位于深圳市宝安区福永街道宝安大道东侧,福围下沙公园旁(即深圳市宝安103-01&04号片区[福永中心片区]法定图则17-15地块),法定图则规划功能为 商业性办公用地 。项目范围用地约 9818㎡ ,地块范围内现状永久建筑面积约 13265.12㎡ ,建筑物类型为酒店、物流用房及配套用房,由深圳市福围第三股份合作公司提供土地,深圳市星港实业有限公司出资兴建而成,目前地上建筑物均由深圳市星港实业有限公司在使用及管理,招标人与深圳市星港实业有限公司合作经营期限到2023年10月31日止(其中主楼部分到2031年10月31日止)。
深圳市福围股份合作公司已召开股东代表大会同意将方案号为2006-60S-322号非农建设用地中约 9818㎡ 非农建设用地指标异地调整到本项目地块(即深圳市宝安103-01&04号片区[福永中心片区]法定图则17-15地块),并同意将非农建设用地指标权属变更为招标人。目前,招标人已委托第三方公司负责非农建设用地指标调整事宜,办理指标异地调整及权属变更事宜。
项目的最终用地范围、面积及规划指标等以政府主管部门审批为准。
合作方交易准入条件:
(1)投标人必须是深圳市政府采购注册供应商,并在深圳交易集团有限公司宝安分公司网上响应投标(供应商注册网址:http://www.szzfcg.cn)。
(2)投标人在深圳市依法注册,有效存续,具有房地产开发企业资质(含暂定或以上资质等级)。提供证明材料。
(3)投资人注册资本不低于人民币壹仟万元。提供证明材料。
(4)投标人信用资质良好,近三年内(成立不足三年的从成立日起算)无犯罪记录或其它政府认定的重大违法行为。提供证明材料。
(5)本项目不接受联合体投标。
07
深圳发布公共住房建设标准
7月27日,深圳市住房和建设局发布《公共住房建设标准》,将于8月15日正式实施。根据《标准》, 35m²≤人才房套型建筑面积≤150m²,65m²≤安居房套型建筑面积≤90m²,35m²≤租赁房套型建筑面积≤85m² 。 公共住房层高不应小于 2.8米 , 居住空间的室内净高不应小于2.55米 。

《标准》突出“以人为本、住有宜居”的理念,结合深圳市经济、气候、人文特征,对建造技术、居住环境、套型空间、公共配套等方面作出了高品质要求。
应用装配式建造及BIM技术。公共住房作为政策性住房,在建筑行业转型升级中发挥引领示范作用,不断推进装配式技术应用,探索装配式建筑发展的新思路、新方法、新模式。同时,在公共住房建设中应用BIM(建筑信息模型)技术,有利于实现全过程的工作协同与成果集成,提升公共住房建设品质,强化建设与运维的衔接,推动公共住房高质量、高标准发展。
用好公共空间,提升住区品质。借鉴香港、新加坡的先进做法,增加立体开发、全天候通道等内容。通过利用建筑首层、塔楼底层、裙房屋面、避难层、塔楼屋面等区域设置公共绿化及公共休闲活动场地,有效增加公共空间面积,提升居住品质;通过相邻用地之间设置公共连廊,有效拓展居民的活动空间,促进住区之间共享公共配套设施。
细化各类套型基本指标和功能空间最小使用面积。《标准》针对各类公共住房(人才住房、安居型商品房、公共租赁住房)细化了不同面积区间段的套型面积指标,满足了不同居住人群差异化的需求。同时还规定了各类公共住房不同套型功能空间的最小使用面积,以保障住户空间使用的合理性及舒适性。其中,人才住房分为5种套型,套型建筑面积区间(㎡)分别为35-40、65-70、85-90、115-120、145-150;安居型商品房分为2种套型,套型建筑面积区间(㎡)分别为65-70、85-90;公共租赁住房分为4种套型,套型建筑面积区间(㎡)分别为35-40、50-55、60-65、80-85。
丰富公共配套设施,完善住区功能体系。公共住房所面对的住户呈现出多样化特征,居住需求表现出个性化、多元化的特点。因此,《标准》考虑了不同地段、不同层次、不同类型住户的需求,规定可以结合所在区域配套设施情况,增设公共会客厅、公共书吧、公共健身房、公共厨房、公共食堂、公共洗衣房等公共设施,以有效完善住区配套,提升整体居住品质。
深圳市住房和建设局有关负责人表示,作为我市公共住房建设的重要技术指导文件,《标准》既遵守了国家、广东省及深圳市相关规范、规定,又考虑了当前深圳人口、土地、气候和经济特点,未来城市定位、发展方向以及目标人群的居住需求。《标准》的出台有助于促进我市公共住房空间布局更加合理,公共服务配套设施更趋完善,住房绿色化、智能化水平不断提高,为营造安全、舒适、文明、和谐、美丽的生活环境,迈向住有宜居提供有力保障。
信息来源:深圳特区报