
买到斜角、异形等「不方正户型」,往往意味着采光不佳、空间利用率低等硬伤,是令很多屋主头疼的问题。
关于这个问题,好好住APP认证设计师们可以说经验丰富,如何对付「不方正」户型,他们各有各的方法。为此,我们请了四位好好住APP认证设计师来分享他们的「独门秘籍」,一起来看看吧!

面对「不方正户型」,可以考虑将功能模糊化,让许多顺手的事情都能在不同的空间完成,避免出现无功能的独立走道或小空间。同时将空间感清晰化,营造出一些方方正正并具有氛围感的小空间,并使用局部光源对空间做点缀,而不是让房间整体明亮。

@亿亩空间建筑事务所:原始户型图
进门就是一条宽1.8米的走道,浪费了巨大的使用空间,也是改造的重点。

@亿亩空间建筑事务所: 改造后的户型图
1、将厨房与北阳台打通后形成一个超大梯形厨房,原先的走道改为储物间;
2、儿童房的入口改为从客厅直接进入;
3、原先的次卫转角变为次卫干区,原先的主卫转角改为迷你衣帽间。

@亿亩空间建筑事务所: 进门就是改造后的梯形超大厨房,可通往储物间/客厅与父母房。原先房型的走道变成了储物间,厨房右侧做了满墙的白色立柜,储物能力非常强大。

@亿亩空间建筑事务所: 次卫转角变为次卫干区。这里是每天“早高峰”最忙碌的地方,3个人的洗漱用品都集中在这里,却也能时刻保持干干净净,秘诀就是这个1.8米长的大镜柜。

「不方正户型」非常容易遇到的问题就是棱角过多。对于一个房间来说,棱角是一个缺陷,不仅在视觉上影响美观,降低空间使用率, 而且会对有老人和小孩的家庭造成安全隐患。对于这个问题,可以巧妙地利用斜角的位置,以定制化的斜角家居弱化不规则线条,变缺陷为亮点。

@麦巨设计:原始户型图
原户型很大的一个问题在于,异型的餐厅和书房棱角过多,影响美观和空间使用率,还存在一定的安全隐患。

@麦巨设计:改造后的户型图
设计师利用定制化的卡座和榻榻米,完美解决「不方正」的餐厅和书房所面临的困扰。

@麦巨设计:利用房间的不规则线条,借势做成一个孤形的卡式餐厅,将入户和客餐厅的动线完美连接起来,通顺流畅。

@麦巨设计:异形的书房利用这种床和柜的结合,极大地利用了空间,下面可以储存很多杂物和书籍,既不占用空间,看起来又很有创意感。

条头糕是「不方正户型」中最棘手也是最难改造的户型,从平面规划来讲,这种户型有两个难点要解决,一个是采光,另一个就是空间的交通动线。在改造的时候,南北向的墙是不能动的,但东西向的墙体可以根据平面规划进行改造推移,以改变房屋的采光和动线。
此外,这类房屋一般首选定制家具。这种家具的优势就在于它所有的尺寸、规格都可以根据实际的现场的空间来定制,能在实现多种功能的前提下不会令空间显得拥挤。

@80design:原始户型图
条头糕老型的结构硬伤多到令人发指,开门就见厨房,穿过厨房才能进浴室、卧室。最不人性化的是,为了解决干区洗漱台、洗衣机下水管问题,故意抬高了位于干湿区当中的过道地面,这对老人和孩子来说非常危险。

@80design:改造后的户型图
针对房屋的问题,设计师做了以下调整:
1、缩小浴室,在厨房和卧室之间开辟出一条平坦无阻的动线,把原来安置在过道上的洗衣机换去厨房,如此地面又可以恢复平整;
2、原卧室一分为二,成为带有儿童房的卧室套间,进门都改在靠西墙侧底端,使动线更合理,墙面也可以最大利用化。
3、次卧变身榻榻米+客厅,解决了老人房的问题。

@80design:在厨房和卧室之间开辟出一条平坦无阻的动线,橱柜设计为L型,搭配定制的榆木长桌。

@80design:客厅在厨房的左侧,虽然小到不足4平米,但功能一样齐全。放下冰箱后,设计师因地制宜定制了卡座,功能和沙发类似,但储物空间却大大提高。

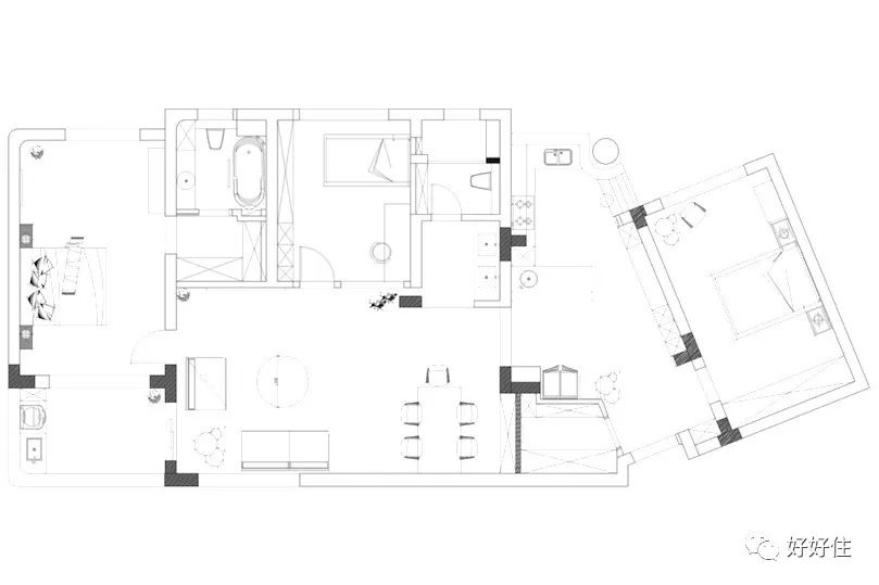
遇到「不方正」的户型,第一想法是如何规避掉异形空间给整个房屋带来的违和感,也就是弱化异形空间的存在感。

@武汉壹零空间设计:原始户型图
本案户型十分有特色,俗称「手枪户型」。两个超大型圆弧形飘窗带来了良好的通风与采光,但不规则的户型也让拐角、圆弧处空间利用率较低。

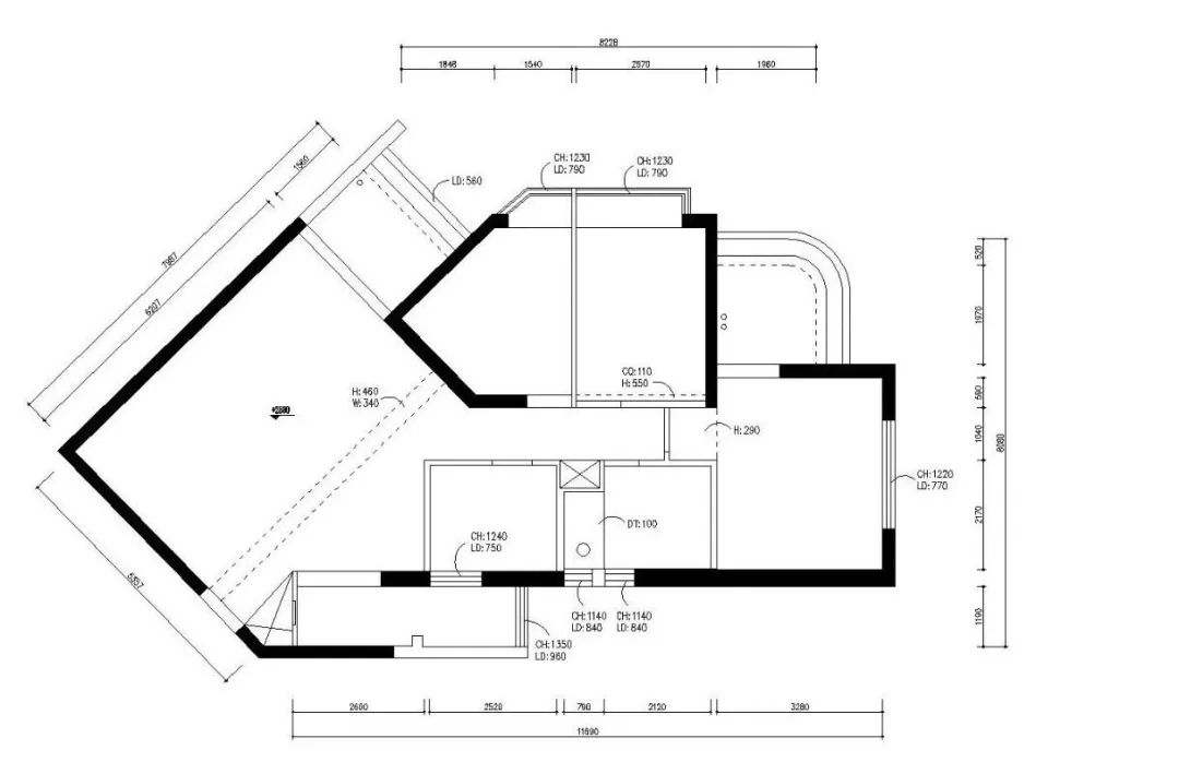
@武汉壹零空间设计:改造后的户型图
与屋主深入沟通交流,将客厅和餐厅布局整体调换,这样以便餐厅离厨房更近 客厅和书房在空间上融为一体,也可以很好的达到书房和客厅的互动性。

@武汉壹零空间设计:原始客厅窗户异形结构不太好布置客厅家具,于直接改为餐厅来使用,并且使用了圆桌,也是为了弱化原来飘窗那块的异形感。

@武汉壹零空间设计:次卧室选择了榻榻米也是可以很好的弱化窗户那块的异形空间,让空间发挥最大的使用范围。
看了这么多设计师对付「不方正户型」的独门秘诀,你会发现,无论什么样的户型,只要因地制宜,按需改造,都可以变成一个美好的家。
你有利用和改造「不方正户型」的好办法吗?欢迎在留言区分享给大家!
版权声明