前言
这是一套上下四层楼的轻奢大宅,设计师秉承业主对理想生活的追求,以高品质和简约为基础,空间设计简洁大方,配以时尚前卫的家具装饰其中,给人温暖舒适的感觉,每一个细节处都流露出不俗的生活品味。

(负层户型图)
负层为公共娱乐区,依次设有台球区、待客区、卫浴间和书房,动线设计流畅,十分静谧。

负层以温柔纯粹的白色调为主调,诠释出轻奢风格的雅致魅力,在光与影的秩序中,形成空间的张力。

顶面筒灯在简而不凡的空间中,彰显出温馨感,台球桌放置于此,呈现出休闲空间的味道。

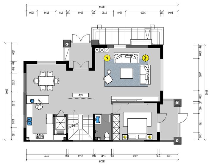
(一层户型图)
一层为待客区,客厅与餐厅既形成了一个整体,又独立存在,通风流畅,一楼规划了卧室,可将老人安置在此。

客餐一体设计,过道处增置了玄关柜和格栅,在细节的勾勒下,整体简洁自然。

客厅挑高设计,透过不同的介质和软装材质,让空间更加现代化,橘色轻奢沙发立面提升了整体的时尚质感。

在色彩方面,设计师利用白色与木色为空间基调,配以橘色和蓝色点缀,营造出高雅舒适的空间气质。

设计师以本能的敏锐,利用吧台分割餐厅与厨房,建立空间的层次,跳色餐椅增添了轻盈质感。

单独米色背景难免显得苍白和冰冷,配以花鸟壁纸装饰其中,空间突然充满了意境美感。

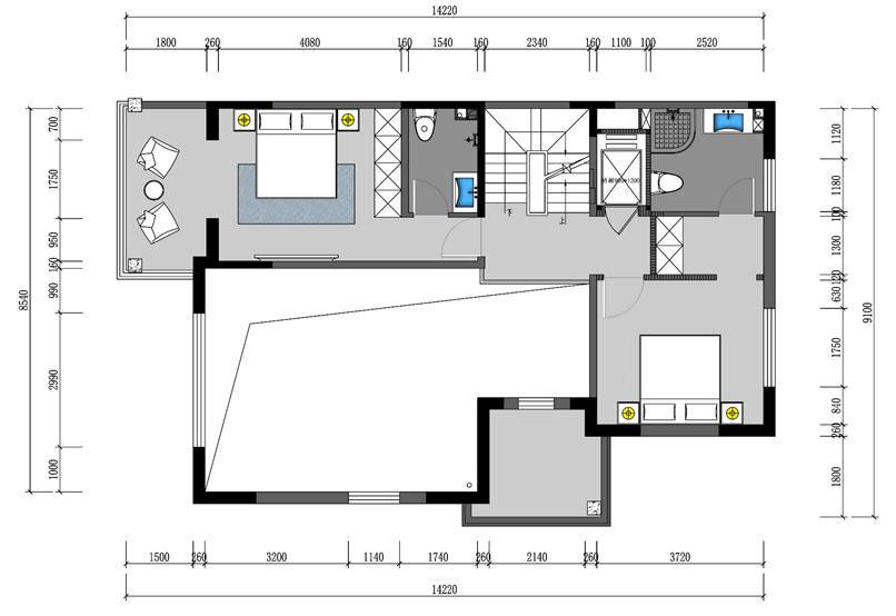
(二层户型图)
二楼为卧室区,主卧带有阳台和卫生间,次卧带有衣帽间和卫生间,两个房间私密度高,居住舒适。

卧室的设计简洁大方,设计师通过黑白拼接背景立面,配以大地色床铺点缀,提升了空间的品质感。

卧室背景墙线条感十足,橘色与灰色的碰撞,增加了空间的视觉美感。照明灯具的选择具有层次感,吊灯、床头灯及垂吊灯相互搭配,形成舒适的空间观感。

(三层户型图)
设计师为满足主人的居住私密度,打通了卧室、衣帽间、书房及卫浴间,使该层楼的功能趋于综合化。

卧室采用大地色为主,搭配墨绿色单椅,视觉观感精致而舒心,设计师巧妙的利用玻璃隔断作为电视墙,让空间立面更加丰富。
本案设计师简介

(王威设计师)
首席设计师:王威
从业年限:8年
擅长风格:现代,简美,新中式
擅长类型:别墅,平层,户型改造
设计见解:用有限的空间,做无限的设计,成就梦想之家。
成功项目楼盘:
北京市朝阳区——融科橄榄城
北京市昌平区——碧水庄园
北京市昌平区——保利垄上
北京市通州区——格拉斯小镇
廊坊市永清县——林栖颐园
廊坊市永清县——森林新都孔雀城
天津市武清区——凤河孔雀城
天津市武清区——世侨唐墅