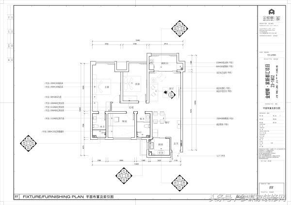
房子于2016年上半年购入,总共109平,从户型图可以看出来房子规矩方正,进门厨房、客餐厅,左转走道,走道左边依次客卫、书房,走道左边依次次卧、主卧,主卧带卫生间。
计划是给家里的老人居住。所以风格是相对比较简单的,没有花里胡哨的。

工地细况
本工地水电阶段已经结束。等待下一个工种入场。
【地面】


这是主卧。画面左侧的那堵短墙改变了主卧的进门方向,为主卧增加了一个可摆放立柜的空间,增加空间的利用率。


【墙面】

蓝色处为水管的二次防水

选用了十分规整的格局。所以有很多的新砌墙面。大概有25个平方左右。

【顶面】



细节处理

全方位的墙地保护

门把手上的包裹

打扫工地的吸尘器

新购置的工地气瓶

管道的防尘

大家觉得怎么样?欢迎大家指导发表意见!
——————————————
大家爱看:
呕心详述我的装修过程,115㎡装修花费39W(附详细清单)!
穷装!6.5w包含一切,详细到每颗螺丝钉!
参谋家装修网致力于提供免费上门量房、在线报价服务~
图文来源网络,如有侵权请联系删除。