
织巢鸟
施工图智慧设计系统使用教程
苏州织巢信息科技有限公司
导入CAD(CAD导入前需处理好)
必备要求:
DXF格式
只有一个房型
分解所有的块
墙体闭合且在一条直线上的墙体厚度需为一致
此文件大小基本在500KB左右
处理方法
第一种方法:打开需要导入的CAD文件
选择拆改后的墙体结构图或者是平面布置图(请复制一份把其中一份的家具全部删掉)
系统目前可以支持所有方正直角的户型,弧形与斜角等异型户型暂不支持。

选中修改后的房型(如上方右图)
按【W】键另存为"DXF"格式

第二种方法:
描轮廓前可以先把原图定义成 "块"快捷键是【B】,勾勒和选择线条会更方便
描墙体,多段线【PL】勾勒更方便哦~
(注意不要出现重复或重叠勾勒的线条,起点和端点要在∠折角点上)


墙体过小的折角或凸起凹陷建议简单直线处理,绘制比较快且对材料数据影响很小。

选择描好的墙体【CO】复制一份出来

炸开墙体(分解)快捷键【X】,可以多炸几次,避免有重合的块。

利用"写块"来另存选中的图形(仅另存选中的图形) 快捷键【W】
另存为 dxf 文件(2000~2018以上版本都可以)

运行"水电设计"客户端
点击"导入"——CAD文件

选择之前已经处理好的CAD文件(DXF格式)
(左下角的小鸟摄像机就在原点上哦)

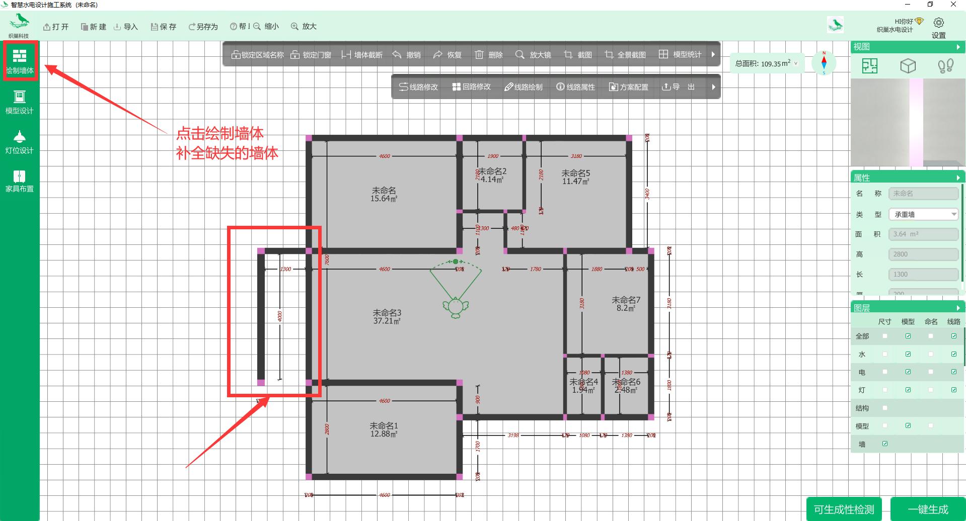
导入不理想可手动修改,比如:边角多出或墙体缺失。
(若墙体厚度≤10cm也会出现墙体缺失,手动绘制即可。)
若有区域空白,可以删除问题墙体重新闭合。

导入户型之后及时保存房型

根据保存设计界面依次输入名称、厅室数量,
房屋地址以及详情可填可不填
最后一步点击"保存",
之后即可在菜单栏的"打开"界面找到此房型
