IQOSA Architect又出新作了。
这个团队十分擅长将当下的流行趋势、丰富的纹理、质感的中性色调进行融合,这座面积98平米的住宅,现代风格和法式的混搭,在设计师的巧妙布局下,将实用性美观性都得到结合。

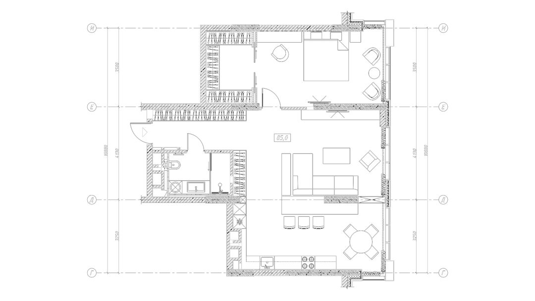
平面图
▽

开放式的布局将各功能区很好的融汇在一起,良好的采光可以照射进室内的每一角落,简约而不简单,力求在气质上给人深度的感染,质感且优雅。








餐厅、厨房、天花、水吧台、陈列柜、均以延续性的点、线、面、块元素、创意性而简约的视觉造型、纯粹的现代主义美学及精尚的质感,定制出属于这个空间的设计语言。









卧室空间采用白灰色调,简约和谐同时充满层次感,再通过透明玻璃隔断把休息区和衣帽间区分开,衣帽间,灰色调的色彩,精致软装搭配,塑造出优雅的艺术气息。












卫生间以白色大理石和灰色搭配,时尚质感的大气空间,洗手台精致与时尚,让整个空间更有艺术感。

