

单说建筑外墙看起来很简单
比如幕墙似乎就只不过是外墙上的一层壳
错!这可比你想的要精细复杂多了
它可涵盖了建筑结构、艺术设计等等知识
想知道怎么样才能做好幕墙吗?
今天主持人就带你看看!

文末附建筑外墙节点及详图CAD图纸
POINT 1
没有幕墙就没有高层建筑!
幕墙可是现在建筑中必不可少的组成部分,没有它,那些高楼大厦可都完了!
别以为幕墙只需要装饰外立面,实际上它能够减少温度对建筑的影响,具有抗震减灾的作用。设计中还需要考虑通风、隔音降噪等等事项,要是设计错了一个螺丝钉,都会有不可预估的危害。



POINT 2
需要的材料可不止五六种
建筑幕墙不同于填充墙,它具有以下的特点:
1)它是由面板和支撑结构组成的完整的结构系统;
2)可以承受较大的变形、容纳较大的结构位移。
3)它是不分担主体结构所受的荷载和作用的围护结构。

其中细分主要有面板材料、龙骨材料、链接材料及辅材这四个部分,其中每个用料也不一样。
1)面材材料主要包括玻璃、铝塑板、陶土板、石材等。
2)龙骨材料主要使用铝型材、钢材、不锈钢拉索等。
3)连接材料有钢件、埋板、铝角码、螺栓、锚栓等。
4)辅材的常用材料有耐候胶、结构胶、胶条、橡胶垫片等。



POINT 3
它的结构怎么那么多!
幕墙的分类方法很多,如果按照支撑结构形式分可以有这几种类:构件式、单元式、点支承、全玻、双层层幕墙等。下面说一下前面三种
_
构件式幕墙
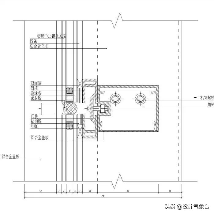
构件式幕墙指在依次安装立柱、横梁和面板的框支撑幕墙,可以分为明框幕墙、隐框幕墙、半隐框幕墙。
构件式幕墙有几个优点:
1)工艺成熟,施工手段灵活。
2)主体结构适应能力强,安装顺序可以不受主体结构影响。
3)水密性、气密性好,具有不错的保温、隔音降噪的能力。




_
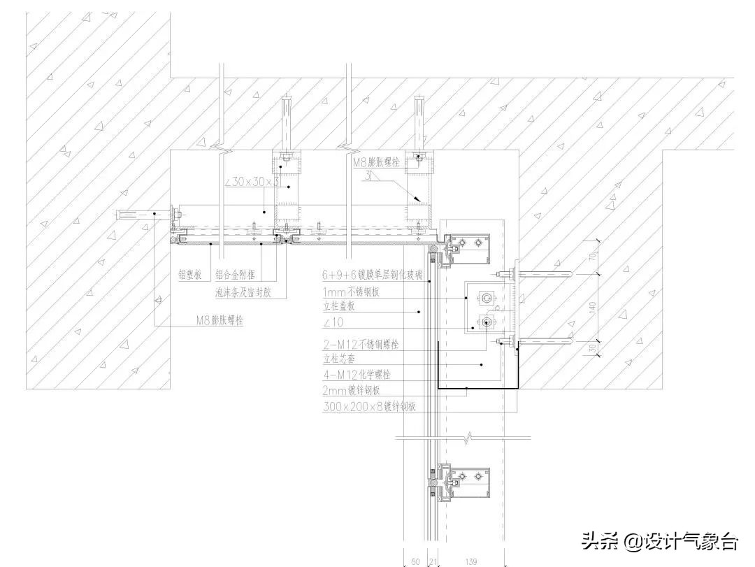
单元式幕墙
单元式幕墙是指将面板和金属框架在工厂组装为幕墙单元,以单元形式在现场完成安装施工的框支承幕墙。
它的主要优点是:
1)现场施工简单、快捷,产业化生产方便管理。
2)能够容纳较大结构位移,适用在高层。
3)具有良好的气密性、水密性、平面变形能力,可以达到较高的环保节能要求。




_
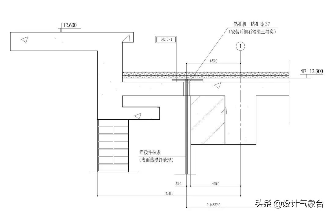
点支式幕墙
点支式幕墙由装饰面玻璃,驳接组件支撑结构组成。按外立面装饰效果分为平头点支式幕墙和凸头点支式幕墙。
主要特点有三点:
1)支撑结构形式多样,满足各种外立面效果的需求。
2)结构稳固美观,构建精巧适用,建筑内外空间和谐统一。
3)玻璃与驳接爪件采用球铰连接,有较强的吸收变形能力。




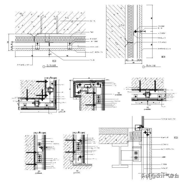
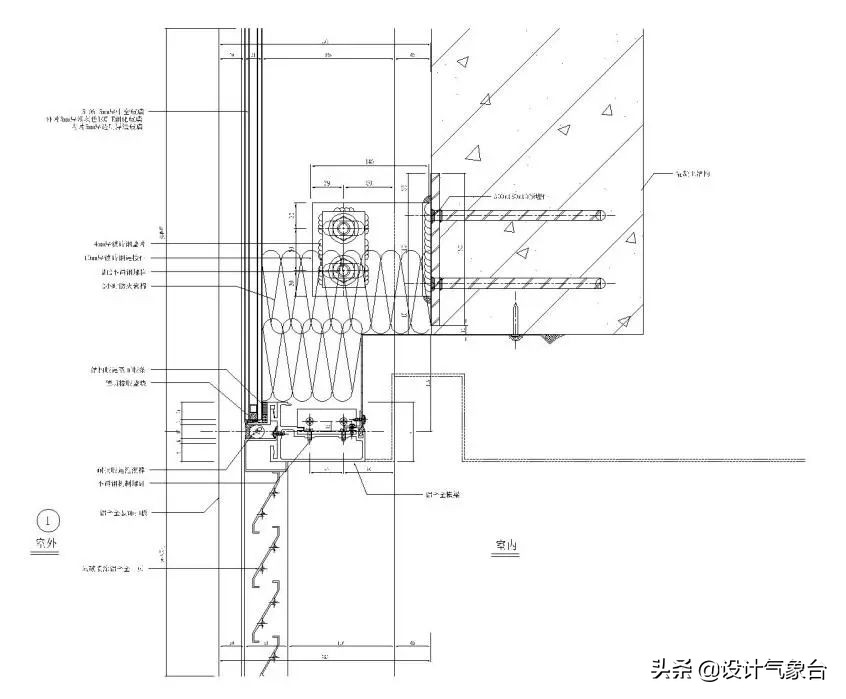
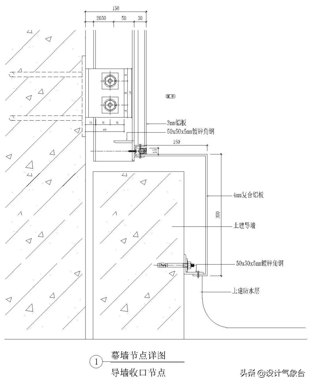
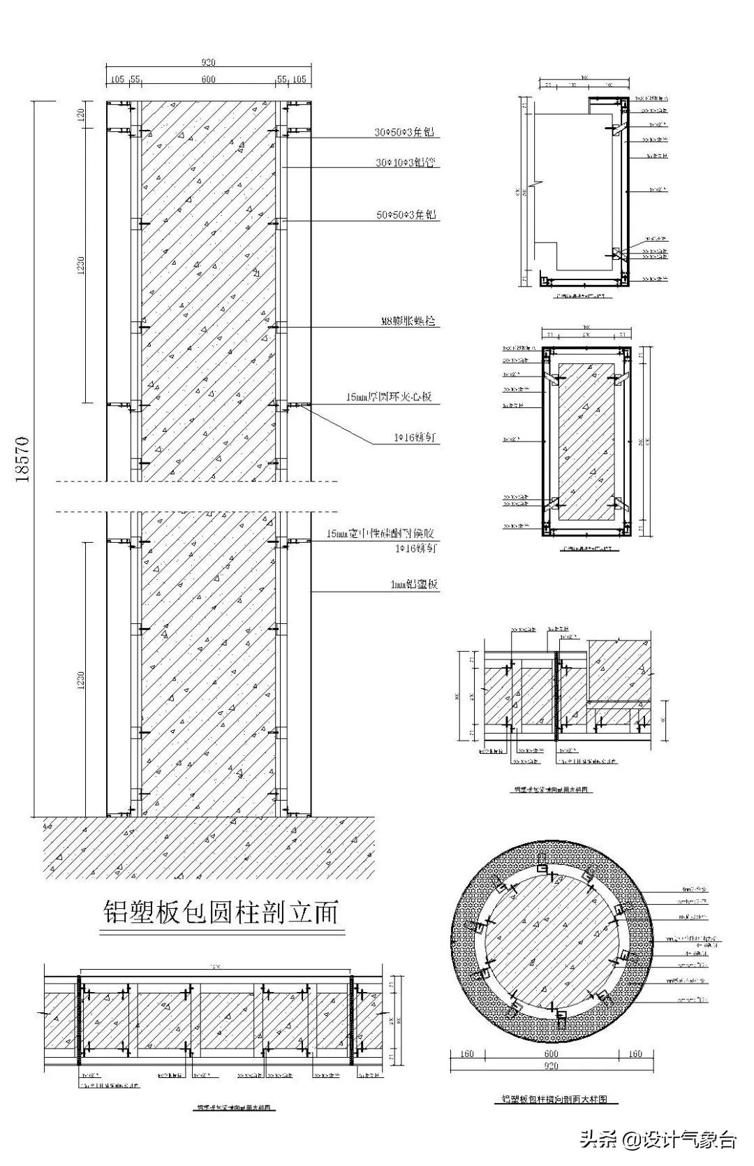
看到这里,主持人就一份图纸资料
你所需要学到的外墙结构都在里面了
一共包含幕墙、墙体结构等四大类
保准看完你也能设计出好的建筑外墙!
___
建筑外墙节点及详图CAD图纸
___

资料总目录
一、玻璃幕墙类
1、点支式全玻璃幕墙CAD图纸
2、半隐形玻璃幕墙CAD图纸
3、明框玻璃幕墙CAD图纸
4、吊挂式全玻璃幕墙CAD图纸
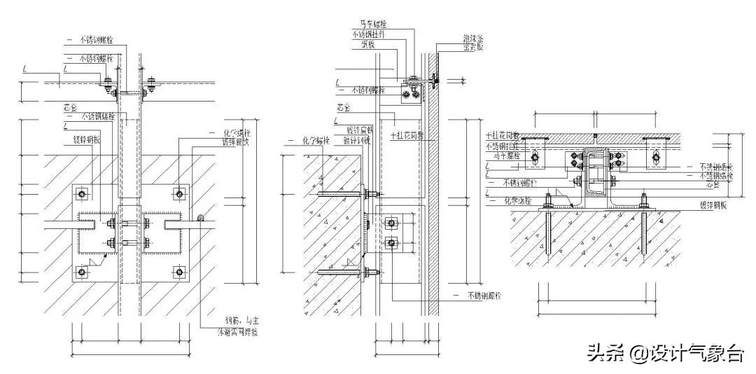
二、其他幕墙类
1、铝板幕墙CAD图纸
2、点式幕墙CAD图纸
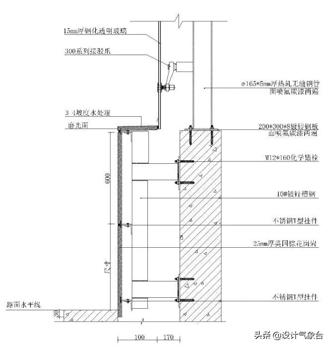
3、石材幕墙节点CAD图纸
4、石材幕墙详图CAD图纸
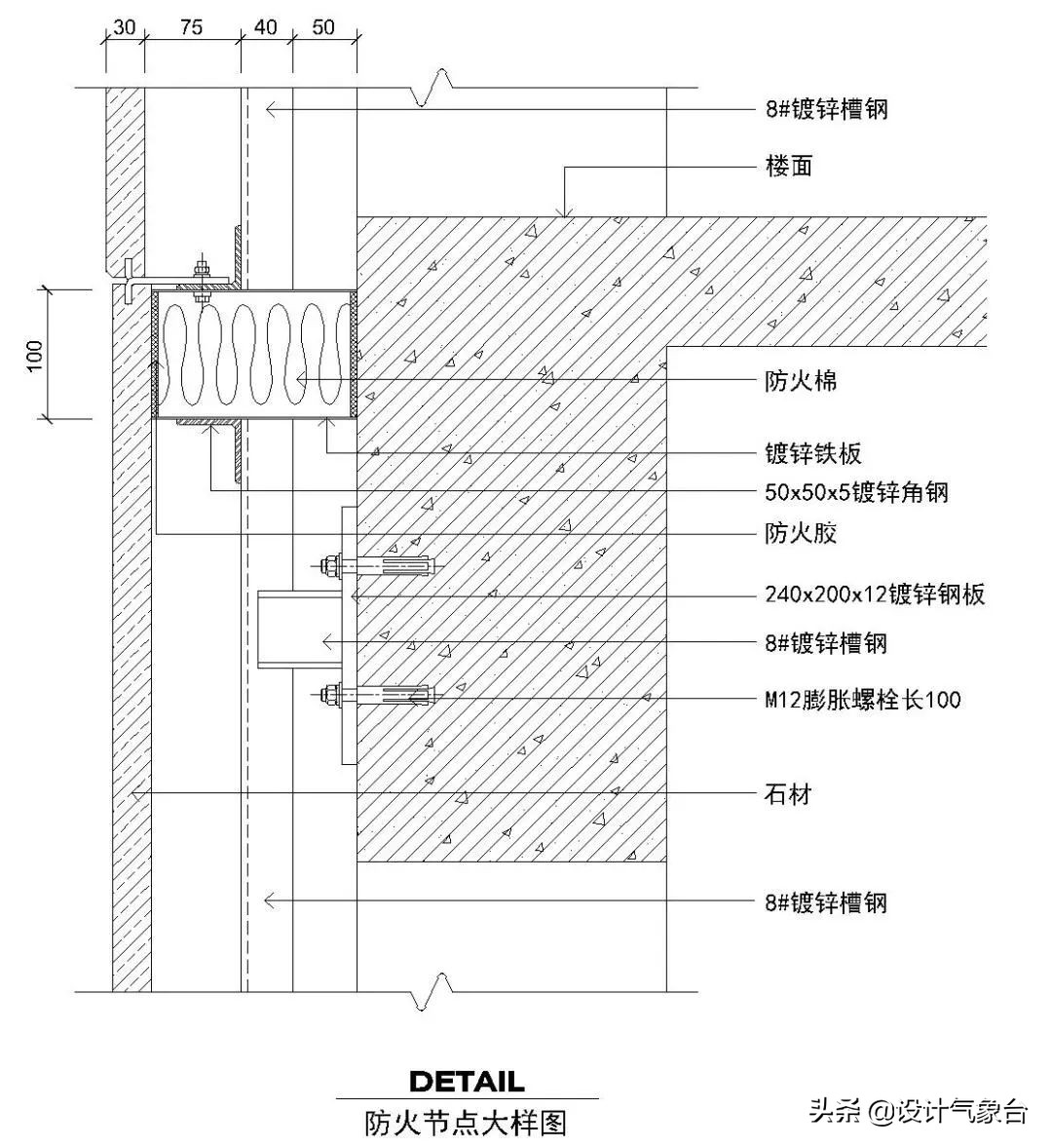
三、墙体结构构造类
1、变形缝建筑构造CAD图纸
2、墙体收口CAD图纸
3、外墙外保温建筑构造CAD图纸
4、外墙饰面详图CAD图纸
5、墙身大样CAD图纸
6、女儿墙大样CAD 图纸
7、现浇混凝土墙CAD图纸
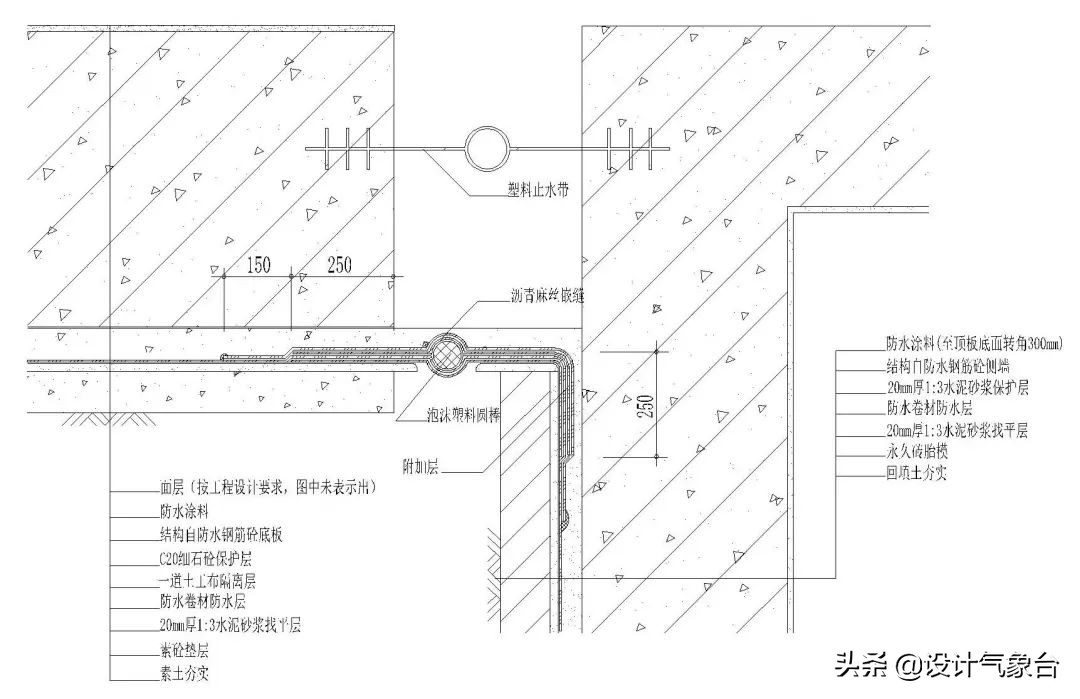
四、防水结构详图类
1、厨厕防水CAD图纸
2、地下防水CAD图纸
3、外墙防水CAD图纸
玻璃幕墙CAD图纸












石材幕墙节点CAD图纸












变形缝建筑构造CAD图纸













铝板幕墙CAD图纸













领取方式
私信回复关键字: XQ04
(一定要私信哦~点击我的头像,进入主页面,点击右上角私信按钮)即可免费领取~)
设计气象台,广受90后年轻设计师喜爱的设计黑科技平台。全网最新的建筑/景观/规划/室内设计资源、知识干货,让你满载而归。如果你喜欢设计,请关注我们。