小区名称:天地湾
建筑面积:380平
项目性质:复式
装修风格:新中式
套餐造价:60.00万
个性造价:70.00万
工程造价:130.00万(不包含家具、家电)
详情咨询:置顶文章
“新中式”为中国传统风格文化意义,在当前时代背景下的演绎,是对中国当代文化充分理解基础上的当代设计,是传承传统中式风格的精髓。业主自己做生意,平时都很忙,生活节奏很快,最终选择传统之美,欢迎赏析

郑州天地湾380平复式新中式风格,演绎出传统风格的精髓,展现出内涵风韵————————电视背景墙

郑州天地湾380平复式新中式风格,演绎出传统风格的精髓,展现出内涵风韵————————餐厅布局

郑州天地湾380平复式新中式风格,演绎出传统风格的精髓,展现出内涵风韵————————客厅全景布局

郑州天地湾380平复式新中式风格,演绎出传统风格的精髓,展现出内涵风韵————————客餐厅全景

郑州天地湾380平复式新中式风格,演绎出传统风格的精髓,展现出内涵风韵————————楼梯口设计

郑州天地湾380平复式新中式风格,演绎出传统风格的精髓,展现出内涵风韵————————茶室设计

郑州天地湾380平复式新中式风格,演绎出传统风格的精髓,展现出内涵风韵————————老人房设计

郑州天地湾380平复式新中式风格,演绎出传统风格的精髓,展现出内涵风韵————————次卧室

郑州天地湾380平复式新中式风格,演绎出传统风格的精髓,展现出内涵风韵————————儿童房,男孩房

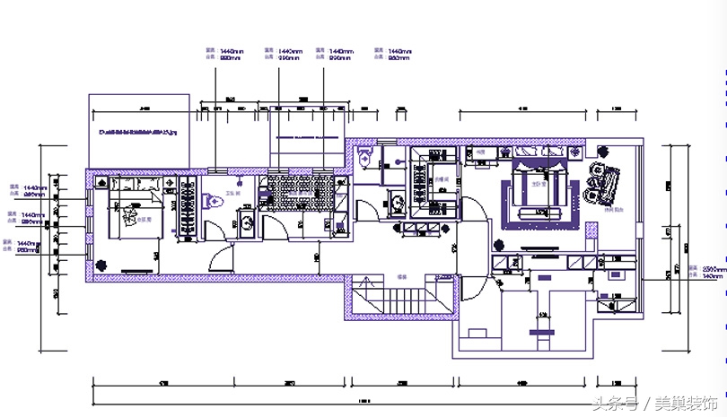
郑州天地湾380平复式新中式风格,演绎出传统风格的精髓,展现出内涵风韵————————平面布局方案

郑州天地湾380平复式新中式风格,演绎出传统风格的精髓,展现出内涵风韵————————主卧室全景布局