项目名称:永和璞玉123㎡(西安)
工程造价:工程5万,主材10万(不含家具、家电)
装修风格:现代简约风格
设计说明:本案是婚房装修,不需要太华丽,以现代年轻人的审美为标准,要求简约而不简单,房子基础户型为三室,基础户型的欠缺比较大,浪费面积比较大,通过后期的合理改造,使功能区和造型能完美的结合起来,方案整体感觉以营造简洁明快的设计风格为主,塑造了一个简洁、明亮的现代家居空间。
预约本案设计师请加个人微信:【xacsrj1991】(限陕西)

▲电视墙运用传统的储物功能修饰,用投影仪取代电视,在家就可以看电影,再也不用去影院挤人堆了!

▲客厅中性色系为主,色彩明快跳跃,营造出更加轻松惬意的生活方式,符合年轻人的审美需求。

▲多位组合沙发,在家庭使用中,朋友聚会,家人团聚说说笑笑很是方便。

▲餐厅简洁,但是个性时尚,也是很好的休闲空间。

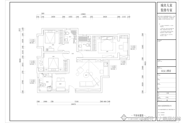
▲平面布局图

设计师个人介绍
姓名:张琪
职位:主任设计师
从业时间:6年
毕业院校:西北大学
设计理念:设计来源于生活,营造自然、品味、有格调的生活,体现出主人的完美、优雅、有品质的生活方式 !
成功案例:金泰假日花城、紫郡长安、华润二十四城、保利金香槟、高科尚都、缤纷南郡、伟业公馆、金地西沣公元、帕提欧公馆、天朗蓝湖树、天朗大兴郡、金辉悦府、国宾中央区、逸翠园、建邦华庭等。