文章来源于网络,如有侵权请联系删除。
三代同堂是很多中国传统家庭的理想生活状态。今天房君要介绍的,就是这样一个其乐融融的家庭。
这是个位于重庆的三层别墅,虽说是别墅,但是总面积只有246㎡,导致每层的面积都偏小,舒适性受到很大影响。
如何把每一层空间最大化利用,且方便使用 ,是设计师要解决的难题。

面积:246㎡
费用:156万

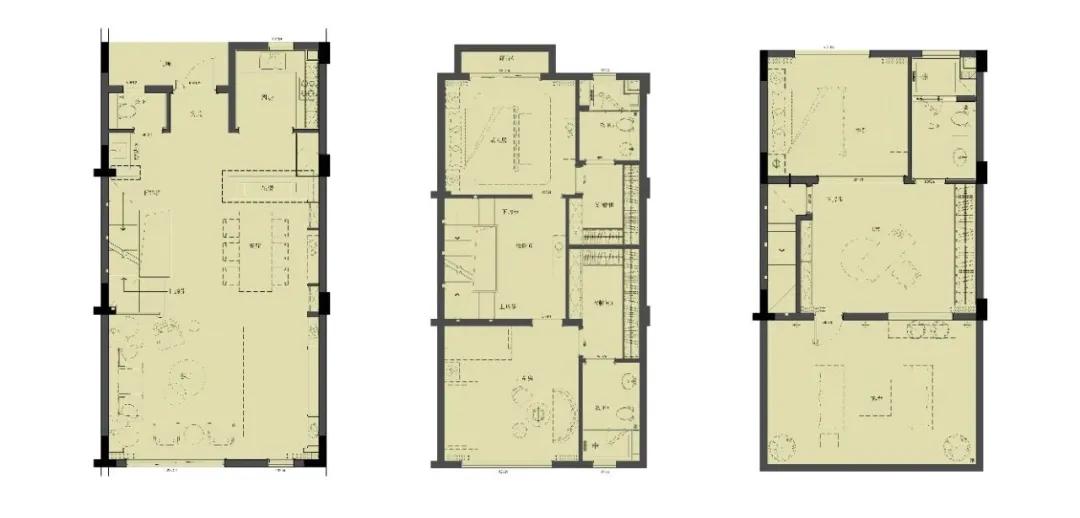
▲原始结构图
改造提示:
改变了原厨房的位置,做中西厨两个功能,把三楼的过道纳入了书房区域,增大了可利用面积。

▲平面布局图

人在一个空间里感到的舒适感,不仅来源于合理性的空间布局、舒适便利的家具排列方式,它的气氛是否能让人感到轻松愉悦,也是非常重要的。
一个家的精神性与功能性缺一不可 ,这也是这个家设计的出发点。

一走进这个家,首先是餐厅空间。
丝绒扶手椅、精心摆放的餐具、插花、以及墙面的装饰画,不只具备使用功能,还能带给人美的愉悦感,让人进门的那一刻,就有了被欢迎的感觉。



客厅使用大面积 蓝色搭配奶油色 ,让空间清新又有质感。
墙面采用了法式石膏线和雕花,增加了精致度。



客厅 抛弃围绕电视布局的传统模式 ,用法式壁炉+复古大镜子的经典法式元素、壁炉里忽明忽暗的炉火,让蓝色调的房间充满了温暖感。

壁炉两边一左一右的石膏线相互呼应,充满了对称的大气美。

过道处采用了带有收纳功能且颜值很高的家具,搭配装饰画和石膏像花器,让家处处充满仪式感。


主卧延续了公共区域的蓝色为主题色,采用更为淡雅的色调+柔和的质感,视觉上清爽通透,让人放松又充满安全感。



老人房采用白色+灰色等中性色作为主调,墙面采用上下分色的设计,搭配复古典雅的装饰画,让空间更有层次感、更加生动。




儿童房最吸引人的莫过于 小小会客厅 了,让小朋友拥有了属于自己的招待朋友的空间。
房间里摆放着各种各样的玩具和小摆件、具有仪式感的家具与挂画,从小培养孩子的审美意趣。



主卫空间面积较为宽敞,采光也很好,做了基本的 干湿分区 。
墙地砖都采用了大理石纹样,增添了精致感。
超大的镜面搭配宽敞的洗手台,每天的好心情从洗漱开始。
