【小区名称】国贸天琴
【小区面积】186㎡
【装修费用】25万
【装修风格】古典欧式
【设计理念】古典欧式风格装修最大的特点是在造型上极其讲究,给人的感觉端庄典雅、高贵华丽,具有浓厚的文化气息。

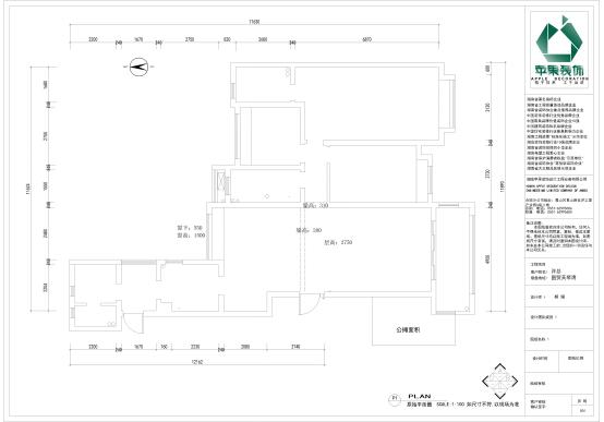
户型解析设计篇
①合肥苹果装饰对于后门多余空间的进行疏通,用作储物间,让空间得以充分的利用。
②过道附近的门过于集中会显得莫名的拥挤,并在末端增加了一个柜子,既不会让空间显得太过空旷,也增加了空间的美观性及利用率。


客厅
古典欧式的装修风格讲求时尚经典、而不失丰富的文化底蕴,客厅的设计需要满足生活方便的同时,还需有待客之道的大气之风,满含艺术的建筑,更是让家装得以升华。

餐厅
作为一个最让人放松的地方“家”怎么可以少得了放松的元素,在享受美食的同时欣赏窗外的美景,生活因会生活而美丽!

卧室
温和的灯光,舒适的软装,床头柜与床之间巧妙的距离,这样的卧室不管是安静的思考,或是休息观影,都让人感到轻松,舒适。
