

「最好的爱情就是给你一个家」
写在前言:
面积: 92㎡
户型:3室2厅1厨2卫2阳台
项目名称:信一隆庭
产品套餐:舒适包+厨房A+卫浴包B
风格:现代简约风格
案例来源:金螳螂·家常熟店
业主需求:
业主是一对90后小夫妻,希望婚房设计简单,舒适。喜欢的就是极简主义,没有电视墙,没有沙发墙,没有背景墙,没有地面拼花,舒适、时尚、合理、空间。适合的就是最好的,在空间上的改动并不是很大,但在入户和餐厅的地方却大力改造,一切以舒适合理为本。
如今年轻夫妇最爱的婚房装修是怎样?
清爽悠闲、时尚、温馨大方的
婚房装修是他们的最爱,
简约而不简单,注重生活品味,生活质量。
下面是92㎡现代简约婚房实景图,
"婚房"虽然还在软装布置中,
但所有的幸福和欢乐已随着你而蔓延开来~
今天我们一起来欣赏金螳螂·家常熟店小伙伴们
为业主打造的浪漫美【家】
感受小夫妻的甜蜜幸福

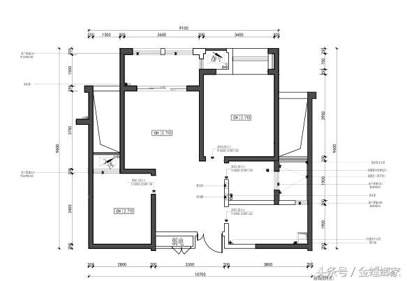
平 面 设 计 图

△原始结构图

△平面布置图
实 景 案 例 图
客厅

▲ 客厅选用了便于打理的灰色棉布沙发,整个空间没有做过多的装饰,白色的顶面,加上没有造型的墙面,使整个空间显得简洁、舒适,我可以更好的利用整个空间。

▲ 选用了便于打理的青灰色棉布沙发,整个光线很通透,素雅的沙发一角布置简单,讲究实用为主。

▲ 黑白色搭配的茶几、电视柜使整个空间更加的简约大气。营造出温馨、安稳的氛围。

▲ 在这个视角里,打造一个舒适、休闲的空间。阳台的几株植物,给整个空间赋予了生机。午后,一杯茶,一本书,是多么的惬意与舒适。
卧室

▲ 简约主义所崇尚的正是通过流动的线条、质感的材料及整体协调搭配让人在日趋繁忙的生活中,得到一种能彻底放松、以简洁和纯净来调节转换精神空间。

▲ 对主卧的要求也是简洁,明亮,配上飘窗,让整个空间显得不是那么单调。

▲ 简约的家居,简约的生活。定制的衣柜,让整个空间多了储物空间,不显得凌乱。
厨房

▲ 一侧烹饪区,一侧清洗区,操作起来特别顺手。厨房选用淡黄色墙砖,金色的橱柜,让整个空间显得干净,明亮。地面铺设地砖,顶面的吊顶,与整个空间用的气氛相互呼应。

▲ 橱柜、收纳柜、吊柜的组合,形成厨房的无敌收纳区。把能收到柜子里的都放柜子里,让橱柜台面永远都保持着干净整齐的状态。
卫生间

▲ 通体的白色看起来干净又明亮。卫生间小但还是做了干湿分离。

▲ 卫生间淋浴区整面墙砖与地面砖相同,在色彩上相协调,让整个空间变的活跃,配上白色的马桶,不锈钢的卫浴,整个空间突显现代气息。简约卫浴间,洗净疲惫释放身心。
阳台

▲ 阳台也给利用了起来,把功能利用最大化,收纳、洗衣、晾衣、养花通通都有,是不是很实用。
选择简约就是选择了一种对待生活的态度。
如今都市生活节奏快,工作压力大,
如果你不想再为生活所累,
希望在家中彻底放松身心,享受生活,
现代简约是不错的选择。

设计师 | 徐晨
设计理念
业主喜欢闹中取静,属于自己宁静的一片天地。在这套设计中,设计师没有夸张的设计,抛弃浮夸的颜色,简单,安静,朴实的手笔,给业主营造出一个宁静、休闲、时尚和谐之美。

每个家里
都住着热爱生活的你
这样的风格你喜欢吗?
来评论区聊一聊你最喜欢的家居风格吧!