“最好是像夏日清风一样温柔”
小琪和先生是一对超级恩爱的小夫妻,先生总是宠着,笑笑地看着她,整个房子装修阶段几乎都是先生来进行对接,小琪主要负责方案的确定,先生的原则是“只要你喜欢什么都好”!在相处的过程中也总能吃到满满的狗粮,设计师直呼常被虐。
房子户型是2+1房,因家庭成员目前两人居住,父母偶尔会过来小住,暂时没有要小孩的准备,所以,保留两个卧房即可,另一个小房间作为书房使用,平时家里也比较少有客人,在整体的设计上希望是舒适的放松的温馨的浪漫的。不想要太负责的装饰,喜欢柔和的奶茶色。“最好是像夏日清风一样温柔”这是小琪对于家的向往。
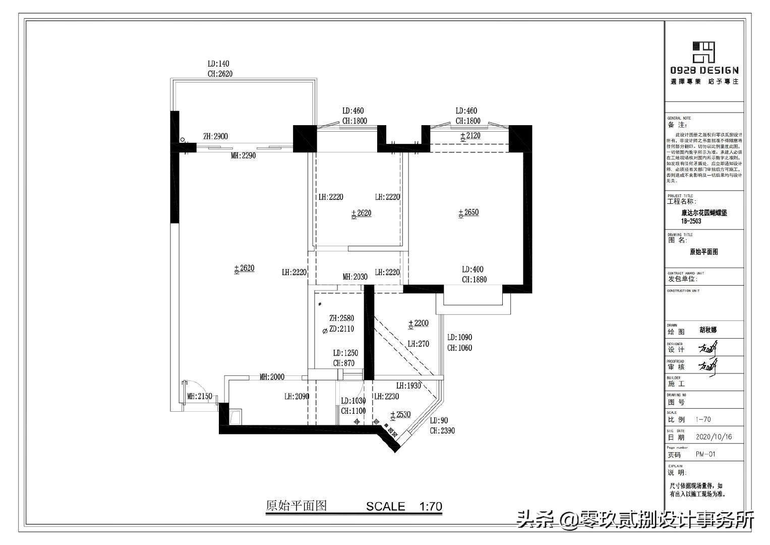
户型图

1.厨房较小,业主平日有做料理的习惯,活动空间不够,冰箱需要放进厨房。
2.卫生间需要干湿分离
3.女主人喜欢看书,男主人需要在家里办公
4.有比较大的储物需求

1.厨房往外生活阳台延伸,同时向浴室挪了一部分面积,形成一个U型的料理台,冰箱刚好放进去,满足业主的需求
2.卫生间淋浴隔开,洗手台外置,干湿分离
3.因两人的生活习惯,将生活阳台部分区域纳入书房,扩大厨房面积。为了同时满足办公和阅读需要,书房的办公桌做成一个长桌可供两人使用,方便办公,同时增加储物的功能,供日常的收纳
4.每个房间都做有足够的储物空间,主卧做两个高柜进行分类整理。鞋柜,餐边柜,电视柜等都做内嵌式收纳,视觉更轻盈简洁。
改造前后

房子原始照片

乳胶漆完工照片

毕业照拍摄照片
玄关

玄关进门处打掉厨房墙体,内移留出鞋柜的位置,中间部分镂空,可随手一些小件物品,感应灯带方便东西的拿取,业主对于熏香也有一定的研究和钟爱,所以玄关处放了一瓶,搭配小巧的首饰架,精致美观。另一侧挂了一面全身镜,方便出门前搭配鞋子检查仪容。
客厅
客厅总体以奶茶色为主色调,搭配原木的家具,再用一些绿植做点缀,柔和而富有生机。顶上一盏线条灯,给客厅增添几分设计感,沙发上方则选择了轨道灯,实现局部照明,有时候窝在沙发上只开轨道灯足矣。客厅是挂式空调,因为空调孔位不能移动,在设计中选择内嵌空调挂机。

格力2P挂式空调尺寸972mm*232mm*300mm,柜子设计时将空调位开孔尺寸留为1200*350*600mm,等定制柜安装后再进行空调百叶的定制。

设计图与实景照片对比

阳台采光非常好,因小琪家有萌宠,所以选择了与窗帘同色系的布艺沙发,奶茶色温柔又耐脏,布艺的也可以让小可爱肆意疯玩。作为健身达人的小琪希望有位置可以健身运动,设计时设计师选择小圆几直径60cm,轻巧可移动,方便更多变得使用场景。地毯颜色和简单的线条与墙上的挂画相呼应,抽象流动。

从阳台看向厨房,客餐厅相连视野更开阔。因有较大的储物需求,电视背景墙及餐边柜都做了高柜,提供更多的储物空间。地板用的是木纹砖,家里有一只狗狗小可爱,木纹砖的选择色调和花纹非常重要,选择时尽可能选择版面较多的款式,可做到一定面积内不重复花纹,视觉更加自然。

设计图与实景照片对比

电视柜中间镂空,电视内嵌,简洁大方,下方留空方便日后设备的增加。

绿植选择的是吊钟和马醉木,文艺清新。


厨房

餐厅与厨房用推拉门相隔开,四扇玻璃推拉门不仅节省空间,敞开时厨房更显宽阔,同时中厨料理时油烟较大,玻璃门能有效阻挡油烟味的扩散。

墙砖用的白色条形砖,壁橱门用了白色肤感覆膜材质,地柜选用原木色,与灰色地板起很好的过渡作用。高度根据业主的身高定制,方便料理。U型操作台一体,动线流畅。冰箱入厨房,方便料理时食材的拿取。
餐厅

原木餐桌,配上原木椅脚的布艺餐椅,少了一份拘谨,多了一份放松。餐边柜上下分层,中间镂空方便摆放日常使用的如水杯,茶壶等,吊灯为每日的用餐增添几分温馨的气氛。

主卧
主卧以奶茶色为主基调,原木色的家具配上淡雅的床品,饱和度较低的色调给人感觉更加地惬意与放松,薄纱淡化了刺眼的太阳光,转而透进柔柔的暖光,非常适合休息。

因增加房间的储物量,床尾增加了整排的衣柜,为了衣柜与床的通道更宽敞将床设计尾无靠背,采用半墙木饰面做背景,高度是1100mm,厚100mm,内藏灯带,躺着刷刷手机看看电影,柔和的灯带光线更舒适。床头配以简单色块的挂画,给卧室增添了几分灵动。

设计图与实景照片对比

梳妆台是组合型,面板打开是一面可以支起来的镜子,为节省空间,化妆凳选了圆形牛皮纸风琴椅,小巧实用。

床头柜方便随手取放东西,吊灯是一个不规则的球状玻璃,多了几分随性。旁边是到顶衣柜,满足业主买买买的需求。

床尾的衣柜同样是一面顶柜,白色柜门中间原木拼色镂空+抽屉,方便收纳分类。窗台足够宽的台面可以在上面休息,如果想更舒服些,后期可以加上沙发靠背,躺在窗台上眺望远处的风景,也是不错的享受。
次卧

次卧则更加素净文艺,灰色的床品搭配原木的家具,更显沉稳。床头挂着的亚麻编织墙饰,搭配柔和蓬松的芦苇,时刻感觉自己在度假。

床头摆放着的矮几并没有选择常规的床头柜,给看似规整的次卧带来一丝趣味。目前次卧的使用频率不高,所以没有设大型的衣柜,可以供父母偶尔小住使用。

房间的所有配置都没有过多的颜色,饱和度较低,舒适感较强。

落日灯的光晕打在次卧的一角,暧昧氤氲,柜子上摆着的是设计师给业主准备的新居礼物,一幅户型平面布置图的挂画,非常有意义,算是一种交托的仪式感吧。

书房

书房除了是小两口的办公区,更是培养兴趣的小天地。旁边是利用墙体做的储物柜,用于日常用品的收纳,看似容量不大,实际内里非常能“装”,家里囤的纸巾,女主人的洗脸巾等,统统收入囊中,整整齐齐码了一柜。书桌的宽度是70公分,比常规的成品书桌宽了10公分更加方便男主人的工作。

阳光透过百叶洒下的光线,绿植映下的光影,给人一种惬意和放松。
卫生间

卫生间干湿分离,采用了白色条形墙砖和灰色地板砖,淋浴区用门槛石阻拦地下积水蔓延,后期可以安装浴帘或玻璃隔断使用,更好地阻挡淋浴时的水花飞溅。盥洗盆岩板定制尺寸:500mm*800mm,储物柜架空避免卫生死角,浴室柜中间镂空位置高度为250mm,方便放置脏衣篮。