
图纸编号 1615
尺 寸 面宽 16.4米 进深 15.2米
建筑面积 496.0㎡
设计机构 易盖房殊舍建筑
土建造价 92.0万
项目概况

△总平面示意图
基地情况:
东:空旷场地
西:空旷场地
南:村内道路
北:空旷场地

△场地情况
项目简介:
业主在项目前期主要和设计师沟通了大概的空间布局,并希望增设次入口;立面造型方面则比较钟意现代简约的风格。设计师根据场地情况,及业主的需求和喜好,将项目形式确定为3层现代别墅。
平面布局
户型概况:
3层 / 10室 2厅 7卫 1厨 1储物 衣帽 棋牌 1茶区 1休息区 1健身房 1影音室 5阳台 3露台

△一层平面图
一层主要为接待功能,餐厨、储物功能单独布置在西北侧,并通过次入口与中庭区域相连,东侧的双长辈卧室保证了居住空间的私密性,动静分区合理有序。

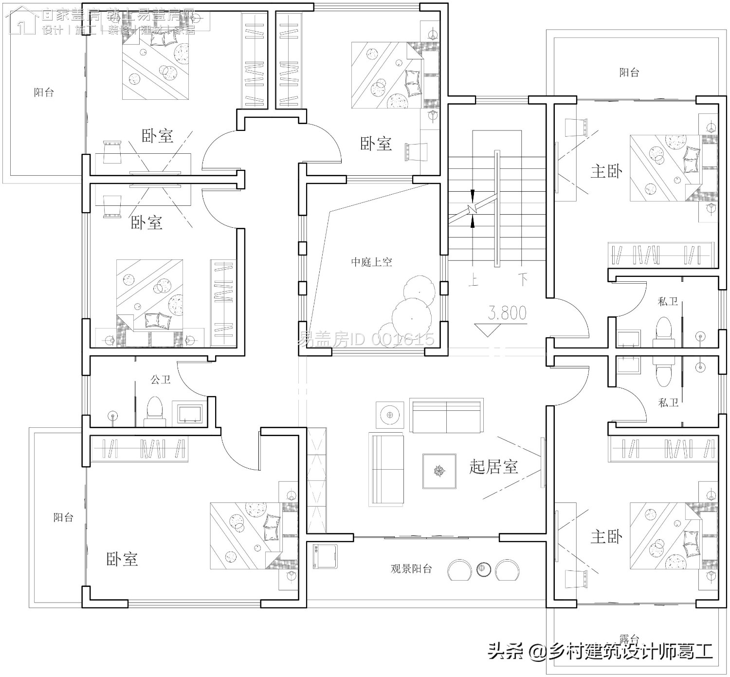
△二层平面图
二层主要为居住功能,共设置6间卧室,从楼梯上来,可从过厅直达起居室和观赏阳台,丰富整层的多功能性。

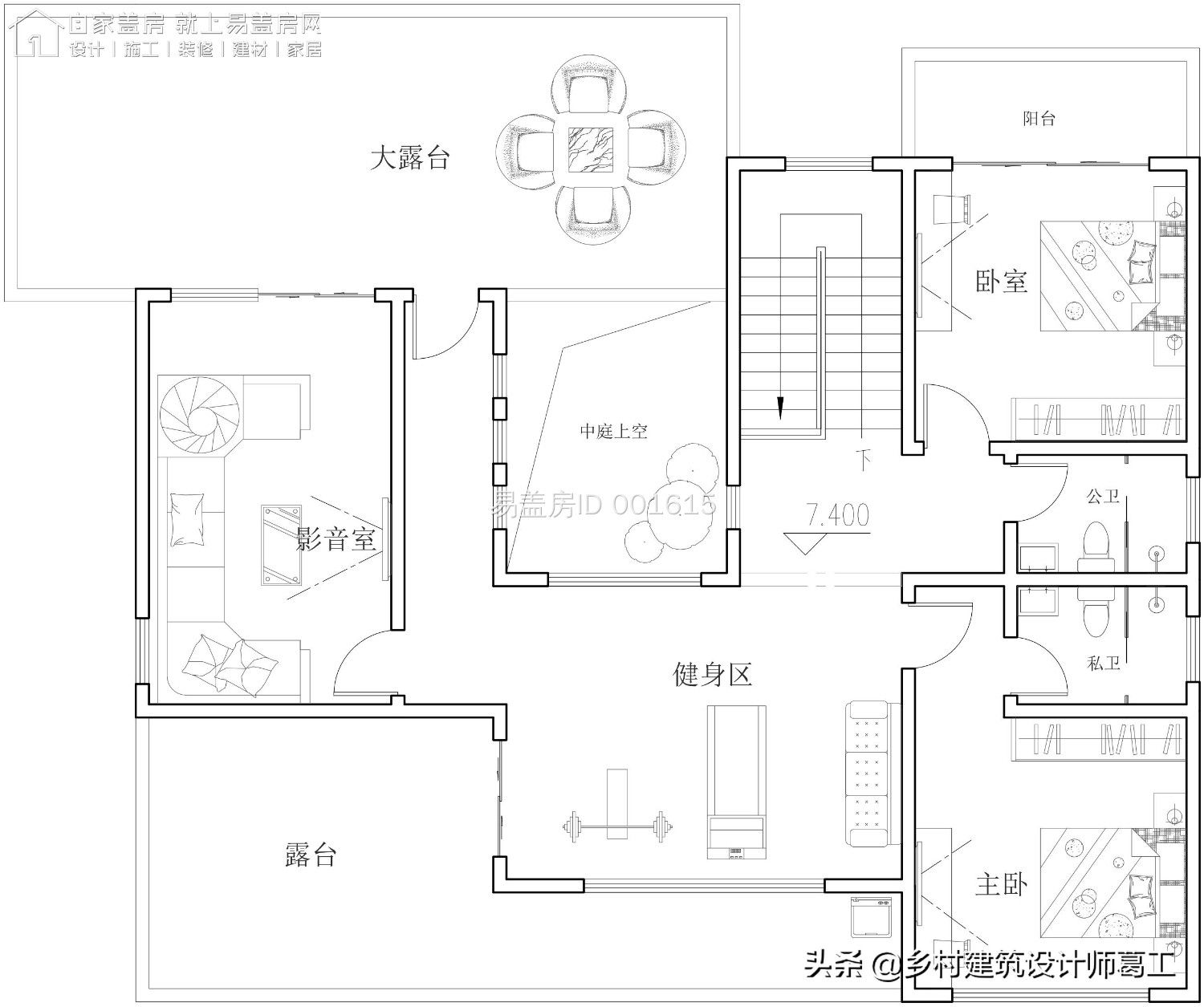
△三层平面图
三层以居住娱乐为主,布置2间卧室套房,中部增设健身房和影音室;南、北两侧的露台区域既能眺望庭院景观,又可享受餐后小憩时的片刻宁静。
造型设计

△南侧效果图

△东南侧效果图

△西南侧效果图
建筑整体为现代风格,外立面采用白色作为主基调,以干净利落的线条勾勒出主体轮廓。局部采用文化石和木质纹丰富立面色彩,材质转变使得造型更加完整。

△东北侧效果图

△鸟瞰图

△鸟瞰图
入户门上方的檐口造型让空间得以突出,配合主立面的大开窗设计,打造出深邃的视觉效果,从而增加了入户仪式感。

△主体效果图

△局部效果图

△局部效果图
庭院通过影壁设计提升其私密性,休息平台与影壁相呼应,在东南角将庭院收入眼中。北侧的的次入口与正门庄重威严的感觉形成对比,让建筑更加独特。

△局部效果图

△东立面图

△西立面图

△南立面图

△北立面图