案例说明
主题:暖暖的宅
地区:西安市万科高新华府
面积:100平米
预算:10万(设计+硬装+软装)
用材:白色文化砖、实木线条、调色乳胶漆、挂画
户型:平层/三室两厅一厨一卫
风格:现代、日式、混搭

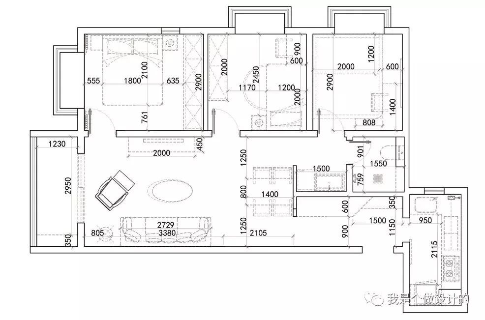
设计平面布置图
1.设计要求
储物空间尽可能增加,功能细致分区,卫生间干湿分区,要合理有序。并且想融入智能家居系统,便捷轻松生活。
2.户型介绍
优点:1、户型方正,南北通透。 2、功能分区清晰有序 3、结构尺寸合理。
缺点:1、走廊窄长利用率低 2、收纳空间。
3.设计思路
根据户型优缺点, 扬长避短,进行适当改造。
透过纱窗, 暖暖的光照在浅色原木的地板上,看它的光影慢慢拉长又变短,是时间的影子生活的样子,我和你在一起的时光。此案为奋斗中的新婚夫妻的小家,温馨环保经济宜居才更适合。
全案用大块面的乳胶漆调色,背景搭配简洁明朗的墙面,通过软装陈设营造清新舒适活泼的居家氛围。
设计效果图

设计效果图——客厅

设计效果图——餐厅

设计效果图——门厅
软装方案




客餐厅软装方案



主卧软装方案


儿童房软装方案



书房软装方案


阳台软装方案
如需设计请电话咨询:18706882755