项目标签
设计公司:汉森伯盛国际设计集团
位置: 中国
类型: 建筑 景观
材料: 金属面板 穿孔板 铝板 玻璃 low-e玻璃
标签: 东莞 广东
分类: 休闲娱乐 公共空间 公共职能建筑 公园 服务设施
#一起上头条##头条创作挑战赛##爆料#
由汉森伯盛设计的东莞中心公园综合服务建筑——森之空间,是一次对近零能耗和零能耗建筑的探索。经历了3年时间的规划、设计与建造,公园南区已于2023年4月正式投入运营。
▼园区总体鸟瞰

▼“森之空间”概览

场地背景
东莞中心公园位于东莞国际商务区核心位置,其原址是一座自然古村——水涧头村。源于西平水库的新基河将场地分为南北两部分,因使用竹简引水从南至北灌溉良田而得名。此地世居的村民多为张姓汉族,客家民系。在农耕时代,以水简引水入田,自力更生;改革开放之初,村民自筹资金修路,开办工厂;城市品质提升之时,积极融入城市发展。
东莞以工业立市,2021年以来进入深度城市化阶段,城市空间肩负起高质量的发展任务。因此,如何提升城市对人才的吸引力,加速高端资源的集聚、沉淀核心力量,让城市更宜居等成为中心城区亟待解决的问题。
▼水涧村

▼水涧村鸟瞰

公园总占地面积约为22万㎡,南区为生态景观,北区以活力运动为主,全区建成后将成为一座服务城市居民、链动城市板块、提升城市生活品质的多形态、可持续的公园综合体。东莞中心公园的落成,关系着东莞城市更新与产业转型升级。在水涧头村后,东莞即将启动近百个城市更新项目。
▼园区鸟瞰

▼项目的日常运营场景


整体规划
新基河把地块分割成南北二区,这临近河道的基地为各专业设计带来不小挑战;同时,将近200m的景观面又为设计带来机遇。经过多种体量推敲后,我们最终决定以顺应场所条件的方式介入设计,让建筑体量自然融入土壤。
▼体量生成

▼“森之空间”位于公园南广场

▼“森之空间”鸟瞰



“森之空间” 地处中心公园南区广场,由两个“零碳”建筑单体构成,以镜像关系分布于中轴两侧,总建筑面积约为1700㎡。设计巧妙地结合了放坡设计与覆土形式,消隐了建筑的体量,让建筑在融入公园生态的同时,更试图引导游客顺应坡道登上二层平台,在公园的制高点临河远眺城市景观。
▼“森之空间”与公园生态系统的关系

形体与可持续性
建筑的空间形态汲取了传统岭南建筑的被动式设计原理,通高空间与玻璃幕墙的结合,使日光利用率达最大化。同时,利用屋面天窗的设计,形成开放式的对流空间。
▼剖面分析

▼“森之空间”立面

▼“森之空间”与绿化台阶


主要建筑体量由三维空间中形成的面构成,其倾斜度与根据太阳入射角得出的能效最佳角度保持一致。遮阳板与玻璃实现的虚实结合构成了建筑的立面体系。遮阳板有效地减少阳光对建筑的直射,减少运行中的能耗;玻璃幕墙面向公园景观敞开,旨在消弭建筑内外空间的界限。访客在室内不同方位,可选择观赏连续的景观视野,也可选择开放与遮蔽结合的空间体验。
▼“森之空间”内外建筑一体化设计

▼通高空间与玻璃幕墙的结合使日光利用率达最大化

▼屋面天窗设计形成开放式的对流空间

外立面幕墙上设有铝制穿孔遮阳百叶,源于对莞草编织肌理的提取,以此为手法勾勒出东莞城市水系图,回应在地的场所信息。在特定角度,10块遮阳面板连成整体,再现完整图案。通过固定外遮阳与可调节内遮阳两类构件的结合,建筑的室内热舒适度得到了改善,项目中的可调节的遮阳设施面积占74.47%。
▼外立面幕墙再现东莞城市水系图

除主要功能空间外,设计创造了大量的檐下空间以应对亚热带气候的使用需求。屋面上设有光伏能源设备,由太阳各时刻高度角和方位角计算得出最佳倾角,配合光储直柔技术,探索近零能耗的建筑解决方案。
▼设有大量檐下空间

▼访客在使用檐下空间

功能
作为“第三地”的集合映射,综合服务建筑是餐饮、休闲、工作、社交、独处等多功能的折叠空间。在设计过程中,我们尝试以统一的母题使内外建筑的设计语汇保持一致。折叠式连续界面将柔和光线引入内,扁平化与垂直化并置的手法丰富了内部空间层次。在此过程中,自然光始终贯穿于建筑内外,既作为主要的采光来源,同时也带来垂直流线的暗示。于是,建筑与环境形成一种“看与被看”的对话关系,同时在塑造室内与外、人工与自然的交互体验,让人在建筑内外都获得多样化的观景视点。
▼夜览


▼总平面图

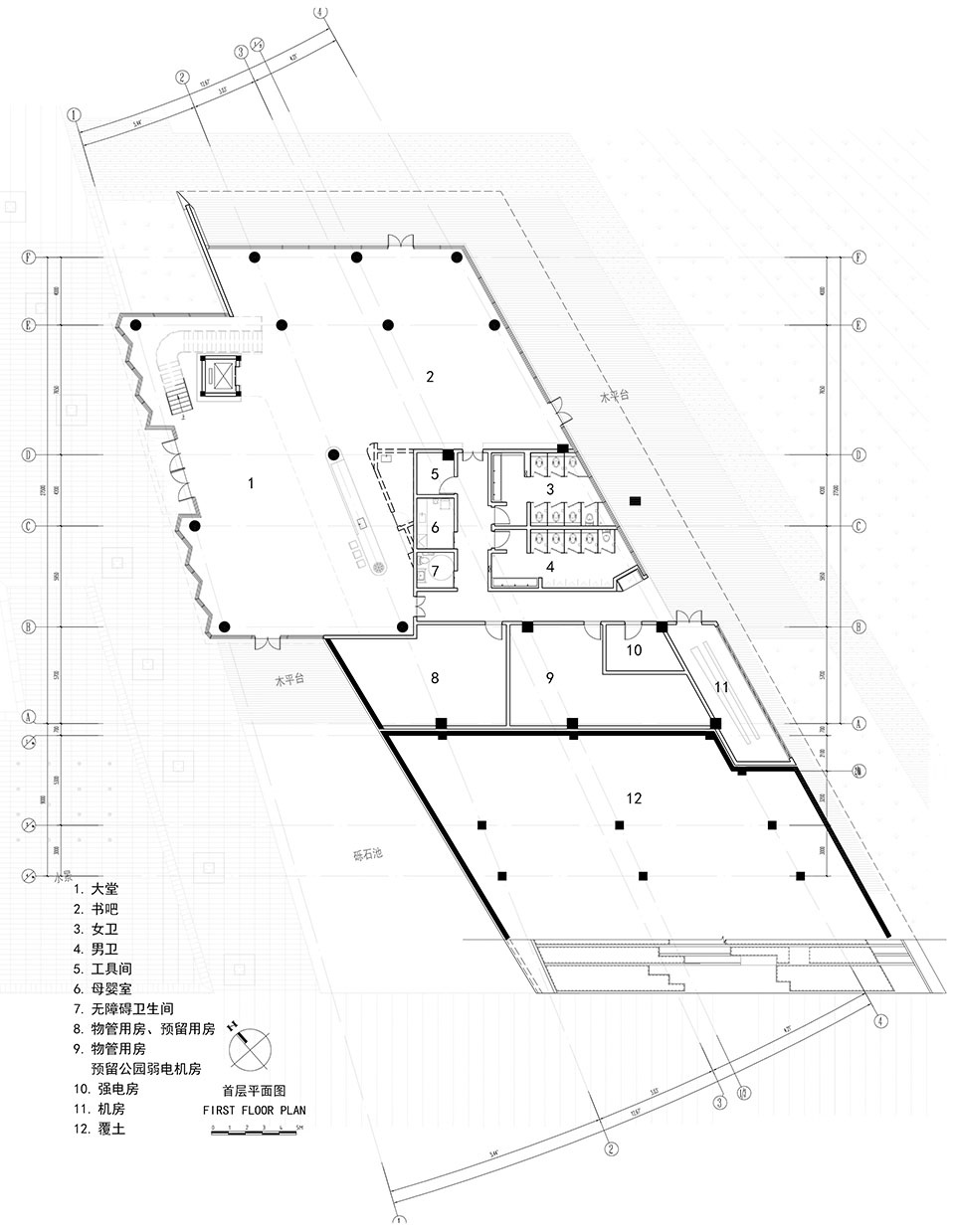
▼建筑单体首层平面图

▼建筑单体二层平面图

▼建筑单体立面图

项目名称:东莞中心公园“森之空间”设计单位:汉森伯盛国际设计集团主创设计师团队:汉森伯盛公建事业部总建筑师:盛宇宏主创团队:冯奇、孙晓龙、周明伦、孔琳欣、吴丽、许思琪、谢明志、张禹翔深化设计:李斌、曾旭佳、麦广任、郑广博项目经理:许冰设计范围:建筑设计
主要功能:综合服务建筑、城市公共空间统筹单位:东莞市中心城区建设现场指挥部业主单位:东莞市城建工程管理局代建单位:华润置地(深圳)有限公司东莞片区公司景观设计:Henning Larsen(原安博戴水道)室内设计:AIA life designers
项目总承包:深圳翰博设计股份有限公司、中国建筑科学研究院有限公司、林同棪国际工程咨询有限公司建筑面积:1700㎡设计/竣工年份:2020/2023项目地址:中国广东省东莞市管城区东城中路与环城南路交汇处摄影版权:DID STUDIO主要用材:铝板,LOW-E玻璃,拉丝穿孔金属板