
定制简要:
施建团队◎ 博林宜家&深度设计
地理位置◎ 济宁 阳光城市花园
面积户型◎ 160㎡ 平层
产品设计师◎ 郭璐
产品体系◎ 套装门 护墙板 柜类 整体厨房 浴室柜
㊣
文

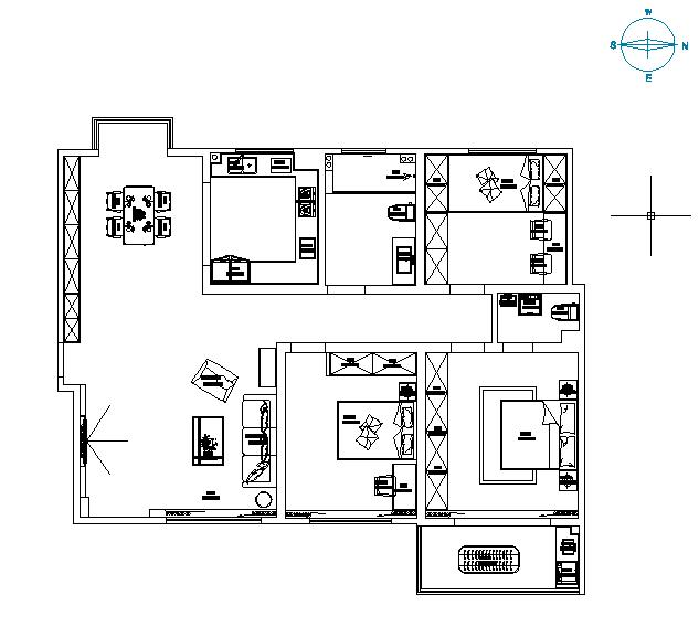
▲ 功能布局图

在传统的自由烂漫以及现代主义的理性实用中,找到一个平衡的点,来表达尊严意识,是一种自我尊重,也是对别人的尊重。
客厅
Endless melody



包容性极强的中性色调,融合整体氛围,在强大功能性的支撑下,在艺术感与生活气息的平和中,生活的韵律缓缓流动。
厨房与餐厅
As perfect as you want it to be


从餐厅到厨房,极窄边框玻璃门巧妙连接空间,在视线及动线上形成良好的互动,空间与空间遥相呼应,彼此联通,理想的家,是一个整体。
主卧室
Intimate relationship


主卧延续简雅色调,辅以质感的材质和黄金比例的线条分割,打造平和稳定的私密区域,从容不迫,静水深流,简约又丰盈。
未来女儿房
Staying in tune


女儿还是小孩,未来的空间已经早早预备妥当,并放了妈妈的古筝整理气场。拳拳之爱,无处不在。

博林宜家全屋定制,践行德国制造的价值观念,历经30多年不懈努力,秉承家族传承的匠心工艺,不断研发革新产品和设计,引领定制行业前沿地位,为您讲述高端定制家具所带来的精致生活体验。
end

往期推荐:

盐系简约,不断升级的家居生活

时尚摩登诠释意式新领域

现代高定生活,不止经典和时尚

博林宜家•全屋定制▲纯朴自然•大美至简

博林宜家•全屋定制▲致雅简谱•化繁为简

博林宜家•全屋定制▲大象无形•大雅从简