“折叠”起来的建筑设计可以这么美—汉口万科城市展厅及幼儿园


© 存在建筑

© 张超

功能更新示意图

© 张超

© 存在建筑

© 存在建筑

© 存在建筑

© 存在建筑

© 张超

© 存在建筑

© 张超

立面展开图

© 张超


© 张超

© 存在建筑

© 存在建筑

© 张超

© 存在建筑


2021 售楼处 / 2022 幼儿园

© 存在建筑

© 张超
项目图纸

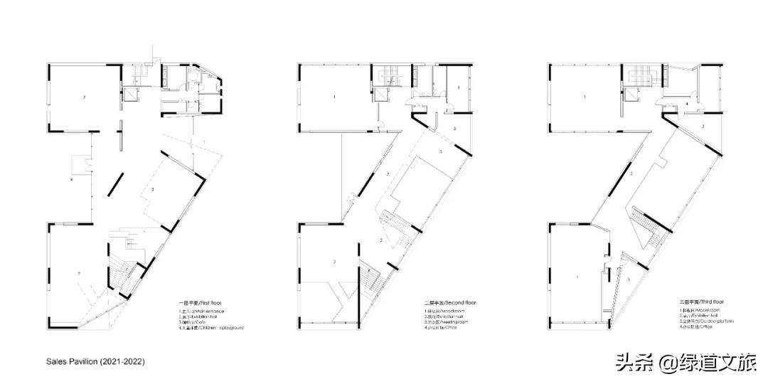
售楼处平面图

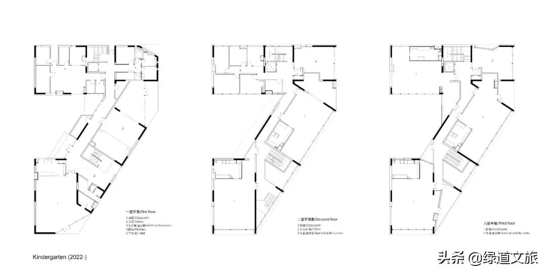
幼儿园平面图

概念手绘图

场地分析图

结构更新示意图
项目信息
项目名称:折叠乐园-汉口万科城市展厅及幼儿园
建筑设计:一树建筑工作室
建成时间:2021.8
建筑面积:1940 m²
项目地址:湖北省武汉市汉口唐家墩
项目委托方:武汉市万科房地产有限公司
主持建筑师:陈曦
设计团队:田笛、朱珠、林子雅、黄家杰、徐志维、翁策楷
施工图设计:武汉天华建筑设计有限公司
示范区景观设计:重庆尚源建筑景观设计有限公司
示范区精装设计:PONE普利策设计
幕墙顾问:弗思特建筑科技有限公司
泛光设计:湖北高明特环境工程有限公司
摄影师:存在建筑-建筑摄影、张超
注:本图文来源于网络平台,仅供学习交流使用,不作商业用途。版权归原作者所有,如若图文资源侵犯您的权益,请及时与我们联系,我们将第一时间做出处理