松下问童子,言师采药去。
只在此山中,云深不知处。


本案坐落于北京的丽都商圈,一处闹中取静的项目,距离繁华的CBD,热闹的蓝色港湾都非常近。客户是典型的「空中飞人」生活节奏,每年出差的时间非常多,希望设计师为他们创造一个宁静、舒适、方便、易打理的家。

风格定位是设计师提出的,因为房产在北京,希望能够在现代简约的风格中带有一点中式的风骨,以区别于世界各地的房子。


在空间的规划中运用了现代主义的设计手法,追求空间的开阔与流动性;但通过材质的选择与颜色和艺术品的搭配加入一点点中国元素。


山外青山是一种意境 更是一种豁达的人文观点,清远幽静的茶室躲藏在山景之后。

简单干净富有禅意的空间被精致的植物元素点缀,这个元素可以是天然的,也可以是超自然的,当一束百合花灯点亮夜空,一天的辛苦皆化作桌前的一壶香茗。

树影斑驳的共享空间,在这光与影之中时间静静地流淌,只留下两层空间中的宁静。



点线面都是空间的构成元素,张弛有度,进退有法才是共享空间的最高境界,就像齐白石老人刻的章,疏可跑马密不透风。


住宅性质的卫生间在某种程度上很难做到风格化,为了体现出质感和东方意境,最终选择了如下的纹理和颜色的搭配。

干净是很多人向往的厨房状态,但我们要更高的标准“科技的宁静”就不光是简单干净了,还需要便于打理。


西厨、早餐厅、正餐厅有机的结合成一个整体,让走廊在空间的规划中消失,增加空间的利用率,更能提高空间的实用性,餐餐都是欢聚一堂的好时光。

用通透感和多变的光感提高空间的品质,也是本案的设计宗旨之一。

用一面镜子把一扇无法拆掉的结构墙隐去,是空间设计的一个好方法。

框架床本身就是给人安全感和包裹感的一种设计,既延续了中式架子床的特点又融入了床幔的功能,材质的高级感在于从简约风中透出一点东方韵味。

人字拼的地板最适合的就是这样局部的露出,增加空间的细节,体现材质的质感,床、床头柜、地板都是木,但是又各自有特点,不同又和谐,就像美丽的雀身处在树木蓊郁的森林,自然舒适。

让门在空间中弱化乃至消失一直是我的设计理念,现在我们可以做到完美。

大板瓷砖的精彩,让主卫有极高的空间完整性,且易打理。


休闲区

书房

影音室

希望房子的主人回到家的时候,不必管有多么繁杂的事物要处理,或者有多么纷乱的思绪,都能够像「云深不知处」这句诗里面的意境一样,慵懒惬意舒适的在自己的家中享受生活的每一刻。
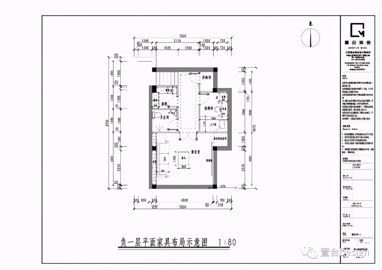
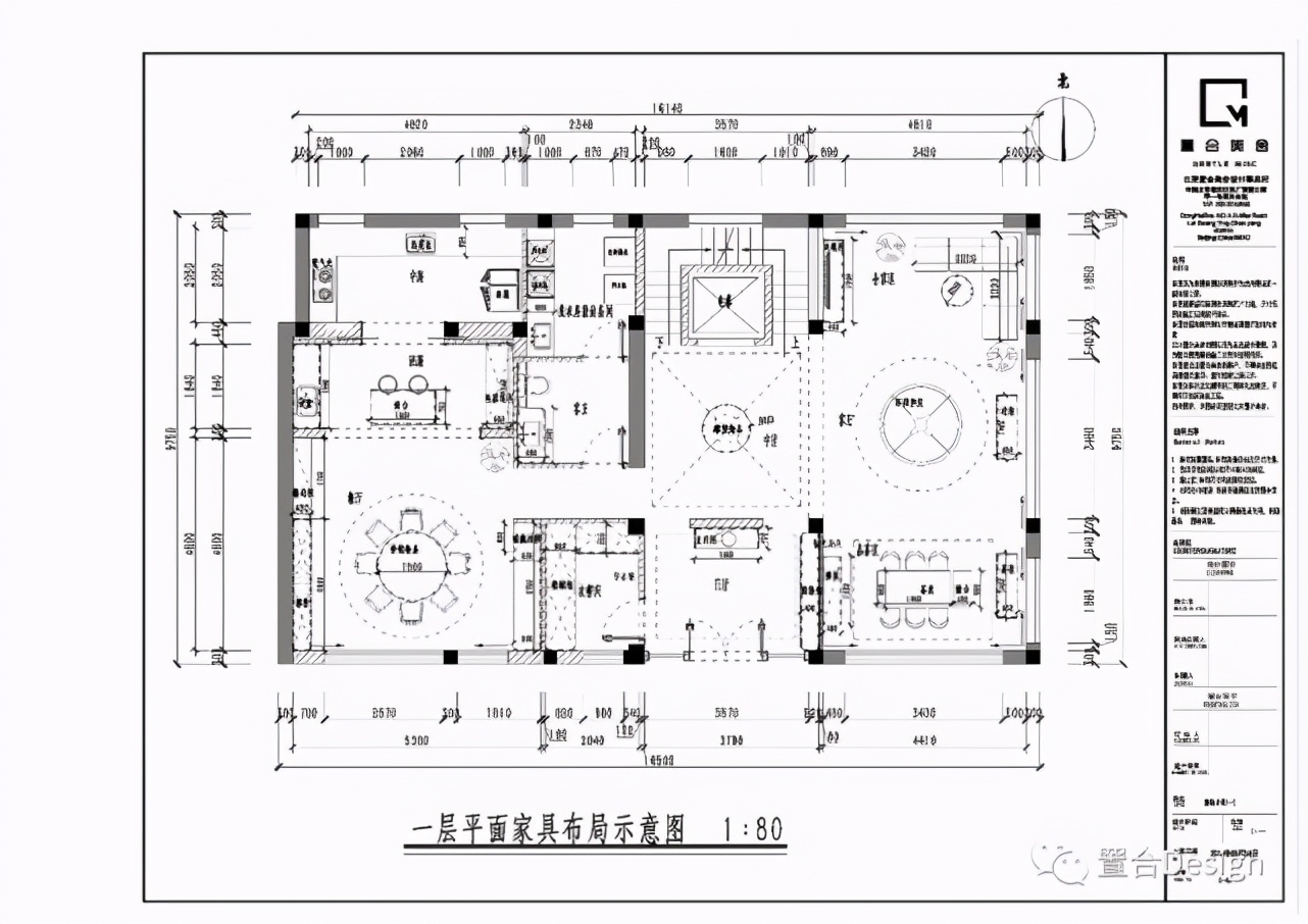
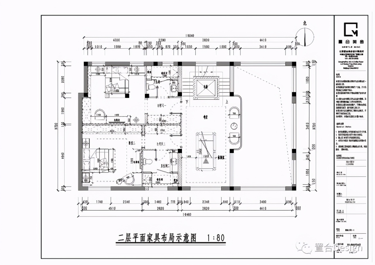
平面布局




项目信息
项目名称:嘉林花园
项目地点:北京市
项目面积:525平米
总设计师:谢甄璞
深化设计师:张朝阳
陈设设计师:邹思宇
摄影:ZEBRA VISION 毛鸿依

——形式服从于功能,
尊崇风格的纯粹性。
置合美舍联合创始人谢甄璞
北京纺织工程学院环境艺术设计专业
意大利米兰理工学院高级室内设计研修班
建筑装饰协会高级室内建筑师
联合创建置合美舍
共合设理事
原东易日盛主任设计师
法国安东尼·贝叙设计事务所深度合作者
北京润达装饰工程有限公司首席设计师