根据住建局公布的数据!光明第二季度有3个项目计划销售,共推1789套住房。
宏发万悦山璟庭(678套)观月台(360套)深业云筑(751套)
宏发万悦山 二期
第一个看网红盘,宏发万悦山,上期毛坯4.89,这期大概5万左右带精装修。

这个楼盘也是特别的网红啊,上一期也特别热,第一期是72.3分,创下深圳打新有史以来入围的最高积分。目前还没有超过这个楼盘的。
但万悦山二期的户型其实不如这个一期,为什么还这么受关注,这个我有点搞不明白,因为在光明其实他不是最好的,至少目前来讲,我看到有两个会比他更好,包括在售的和即将发售的。


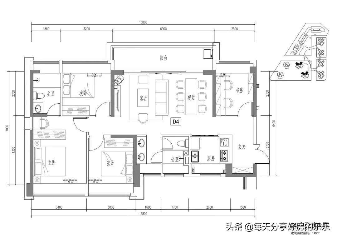
二期户型图,左79 右118


二期户型图,89平

一期89平户型
它的优点:
第一位于凤凰城的和光明中心区的交汇处位置;
第二个也是深圳实验分校学区范围内;
第三个的话,周围配套确实是要啥有啥环境还可以。

最大的不足,他在两个地铁口中间,六号线光明大街站和凤凰城站之间,两边都有800到900米,两边都不近,大热天走起来会比较费劲。
所以你买个地铁口旁,比如说深铁瑞城它不香吗?对吧,非要买它。深铁瑞城至少是地铁口,坐地铁不用跑那么远,万悦山可能还得买个小电驴,不然走路真的很辛苦。

当然这个楼盘也是光明2022年最值得打的新盘之一,但是没必要那么热,我们没必要去只盯着这个楼盘,其实还有跟他差不多或者比他更好的,比如说深房光明里。

我觉得哪怕是电建洺悦鹏著也不比万悦山差,为什么呢?
第一个地铁近。第二个旁边两个公园,红桥公园,新城公园。溜娃,老人家散步锻炼都很方便。大家都是深圳实验学校光明分校学区。

其实万悦山也不安静,靠近空铁六号线,同时光明大道也很吵,车流声特别嘈杂。而且花园开放式。
电建洺悦鹏著的不足是位置稍微偏了点,商业氛围淡了点。总之大家各有优缺点,半斤半两。

深业云筑

这个第一个位置就不行,位于公明,光明和公民,首先买光明其次才买公明,为什么?
因为因为公明开发比较早,周边全是城中村农民房,不像光明开发比较晚,周边都是农场,所以空地很多,环境优美,小资们喜欢。
这个盘唯一的卖点就是在13号线站沿线,但是距离也不近,约1公里。

附户型图:





观月台 第三个新盘观月台,观月台也是高铁光明城站地铁口四个楼盘之一,还有一块地还没有拍,月底会拍。然后就是中海观园,玖瑞府,观月台。

目前这三个盘,哪怕这四个加起来,观月台也是最差的,为什么最差的?
因为它两个主干道夹着,所以会很吵,而且距离地铁口稍微远一点,比它们两个远一点。
第一个吵,第二个离地铁口远,第三只有两栋。所以在光明城站周边的四个新盘里面它是最差的。

目前在售的两个楼盘,龙光玖瑞府是2020年拍的地,限价5.18万,中海观园是2021年拍的地限价4.44万,所以这个楼盘(玖瑞府)比较难卖,佣金比较高。
所以,如果你要买光明城站周边楼盘,观月台不买,玖瑞府不要着急,等中海观园和待拍卖地块。
附户型图:



