和达璟城138平+地下室现代简约装修设计。本案例以现代风格为主导结合简约的元素,结合客户的需求与要求,给出客户最适合他们的生活的方案。

和达璟城138平+地下室
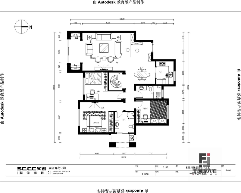
小区:和达璟城
风格:现代简约
面积:138平+地下
类型:五居室
造价:20万
项目:整体橱柜、整体卫浴、室内门、地板地砖、个性化设计、基础装修、水电改造等

和达璟城138平+地下室

和达璟城138平+地下室

和达璟城138平+地下室

和达璟城138平+地下室

和达璟城138平+地下室

和达璟城138平+地下室

和达璟城138平+地下室

和达璟城138平+地下室

和达璟城138平+地下室

和达璟城138平+地下室

和达璟城138平+地下室

和达璟城138平+地下室

和达璟城138平+地下室

和达璟城138平+地下室
如果您目前有装修打算或者正在了解装修、对设计、材料、环保有什么疑问的话那就随时联系我吧。