近日,中海新梅江地块和金地水西印项目规划出炉,两宗地块均为2022年三批次土拍中摘牌的地块,都将打造以改善为主的楼盘。
三轮供地两地块规划出炉
- 中海新梅江地块
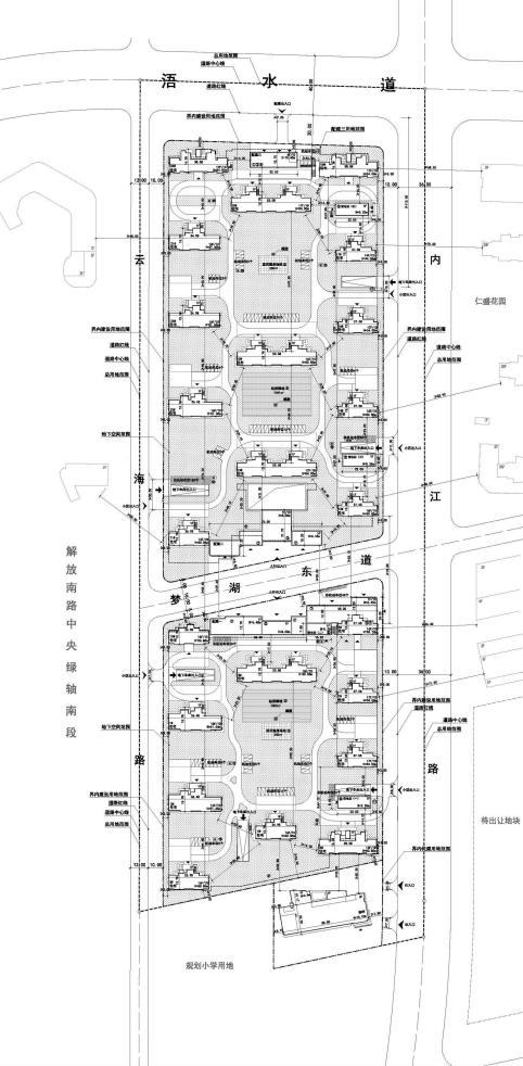
2022年天津三批次集中供地中,中海将新、老梅江两宗地块收入麾下,其中,新梅江地块成交总价约28.3亿元,楼面价19767元/㎡,地块总建面约14.3万㎡。
该地块西接中央绿轴公园,东侧与仁恒公园世纪相邻,南侧是天津瑞府。

(地块大致位置)
根据该地块技术经济指标,项目住宅部分总用地面积约10.48万㎡,地上计容建筑面积约13.98万㎡。

(图片来源于天津市规划和自然资源局官网)
项目住宅部分以梦湖东道为界,地分南北——A、B两地块,C地块规划15班幼儿园和一所24班小学。

(图片来源于天津市规划和自然资源局官网)
社区规划了23栋14-17层到顶的小高层产品,共计976户,粗略计算,户均面积约143㎡左右,容积率为2.0。
项目共设置5个出入口,东、西两侧各有1个车行口,其余为人行出入口,人车分流设计。地下机动车停车位1549个,地上机动车停车位97个,车位配比达1:1.7。

(图片来源于天津市规划和自然资源局官网)
新梅江板块近年来发展迅速,片区内规划有大型商业、学校、绿色生态轴,未来将是一个充满活力的高品质的城市生活区域。
新梅江未来将实现地铁全覆盖。目前,地铁1号线和6号线已全线投入使用,未来还规划有7号线、10号线和11号线三条轨道线路。5条地铁形成“四横一纵”的轨道交通路网,极大地便利了区域内的居民出行。
板块内除了与住宅同步规划的2所中学、6所小学、12所幼儿园,并且板块对应河西三片,拥有多所重点中学。
板块内在售新盘大多偏改善,板块内有中海左岸澜庭、中海左岸源境、中海天空之镜、天津瑞府等多个项目在售,成交均价约为36000-43000元/㎡左右。
- 侯台装饰城东地块
西青区的侯台装饰城东地块在2022年连续三次挂牌出让,最终在三批次集中供地中降价约1.02亿元,被侯台集团以7.2亿元摘得,成交楼面价7500元/㎡。

(地块大致位置)
侯台集团后引入金地集团共同开发项目,后者作为代建方参与项目建设。土拍当日,项目案名便已亮相——金地水西印。
根据地块的技术经济指标,项目住宅部分总用地面积约5.13万㎡,居住用地总建筑面积约5.41万㎡。

(图片来源于天津市规划和自然资源局官网)

(图片来源于天津市规划和自然资源局官网)
金地水西印规划了20栋6-10层到顶的洋房产品,部分楼栋带小院,共计户数375户,粗略计算,户均面积约为144㎡,也属于改善型社区。
项目仅在西侧设一个主出入口,人车分流。社区机动车停车位共622个,其中地上37个,地下585个,车位配比约1:1.7。

(图片来源于天津市规划和自然资源局官网)
项目所在的水西板块也是这两年来的购房者关注的热门板块,其一大的优势便是背靠水西公园,生态资源丰富。水西公园总面积约140万㎡,水体面积可达约43万㎡,陆地面积将近100万㎡。
得益于板块优质自然环境,很适合改善、养老居住,同时板块也规划了多宗住宅、商业以及教育用地。

(水西板块规划图)

(水西板块规划图)
板块内的绿城水西云庐主打高端改善路线,一直以来,单盘热度不减。此外,今年一批次集中供地中,天津城投集团以总价6.75亿元,楼面价17103元/㎡摘得水西云庐南侧的侯台G地块。
地块规划也已释出,项目规划了14栋8-10层的洋房,共256户,粗略计算,户均面积约158㎡,改善属性很强。
综合来看,水西板块与南开区距离较近,交通便捷,承接了市区的部分改善外溢,板块周边路网发达,未来还规划地铁8、11号线*轨双**交通,出行便捷。
其不足之处也在于多数设施和配套均处于规划阶段,需要大量的资金和时间去实现,短期内的生活配套需要依靠南开、侯台和中北镇等区域。
多个改善项目布局重点板块
随着家庭结构的变化、居住环境的更迭,部分人群对居住环境有了高的要求,空间不够、房间数少等催生了新的改善需求。
从今年的市场反应来看,购房者对大面积段的需求明显提升,相对于刚需产品,改善产品需求量正在逐步攀升。
据中指研究院公布的数据,从成交套数占比变化上看,与2022年1-9月相比,1-10月30个代表城市中有17个城市120㎡以上改善型产品成交套数占比提升,其中一二线城市有12个。
2022年1-10月天津商品住宅销售金额榜单中,多个改善项目位列其中:

(数据来源于中指研究院)
- 中海天空之镜
位于新梅江板块的中海天空之镜,主推建面约128-208㎡的洋房产品,全装交付。项目一期已经交付,二期预计2023年6-8月交房。
项目采用大面宽的设计,外立面为270度曲面玻璃天幕,符合时下审美的同时,也保证了各个楼栋采光良好。
- 绿城水西云庐
绿城水西云庐主推建面约103-220㎡的洋房产品,项目均价约35000元/㎡,预计于2023年12月交付。基于其所在区域的潜力和项目自身产品力,水西云庐受到改善群体的关注较多。
- 格调初晴
格调初晴位于西青后梅江板块,项目打造建面约143-211㎡洋房、平墅和叠拼产品,项目叠墅一经推出便大受欢迎。格调素以园林造景为大家熟知,格调初晴打造的欧式园林别有一番韵味。
品质改善项目为何备受青睐?
据克而瑞统计的数据,一线城市主力面积段由90㎡以下升级为90-110㎡,二线、三四线城市140㎡以上大面积产品走俏。90平方米以下三房、140平方米以下四房成交比重转降,尤其是一线城市,90平方米以下小三房占比大幅回落。
从各项目成交面积段来看,大户型占比提升明显。建面约140-180㎡的户型成交占比转增,建面约180㎡以上户型成交占比增加。
刚需产品市场份额缩水,越来越多的改善需求由三居转向四居,购房者对四居户型的需求比例不断提升。
一方面,改善置业的需求不断攀升;另一方面,部分优质改善项目由于其自身的产品价值,以及项目所在区域未来价值的拔升等,使房子更加“抗价”。
信贷政策的放松、多孩家庭购房优惠政策的出台,将刺激更多改善需求入市。随着城市发展半径的不断延展,核心区域的优质改善项目或将更受欢迎。
文章内容仅供参考,不构成投资建议,具体信息请以官方为准。