

万科旧宫位于快速发展的北京南郊,是一个建筑面积127000平方米,集居住/办公大楼、购物中心、休闲娱乐设施于一体的城市综合体项目,其穿插交错的形体不仅丰富了建筑形式上的趣味,而且拓展了公众体验的多样性。

由于人们普遍习惯在建筑地面层展开公共活动或者商业行为,但通常情况下地面层往往有限,因而该项目的一个重要设计举措就在于在优化利用传统首层平面之余,在竖向层面创造了更多额外的“地平面”。


第一个附加“地平面”出现在四、五层上,这里分布着按正交柱网布置的餐厅。再上层的“地平面”则分布了一系列小型办公空间,居住/办公塔楼,以及一个面向公众开放的花园。


室外自动扶梯清晰地呈现了建筑的流线逻辑,以及如何通过巧妙的流线规划,使两种运营模式在一个建筑并存成为可能。这两种模式包括一方面满足一到三层集中商业白天12小时的运行需求;同时为3层以上的餐厅、酒吧、电影院等需超时营业的业态提供一种独立开放的运营可能,支持并满足现代都市生活24小时不夜城的需求。


建筑的剖面很好地展示了该项目在功能上和商业上的内在合理性。在这里,超越常规的思维方式刺激了传统城市形态的多样化演变,也为城市生活发展提供真正有意义的契机。




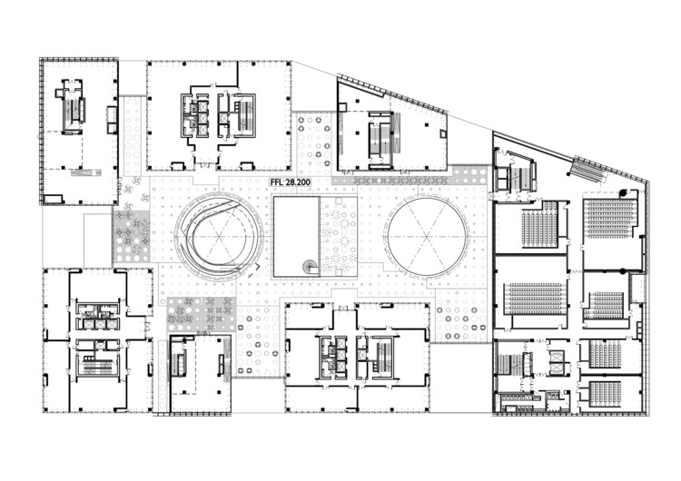
首层平面图

六层平面图

屏幕外立面分解轴测图

公众可达性
