小区名称:西山艺境
户型:别墅
(峰格汇)建筑面积:260㎡
工程预算: 31万元
主材预算: 65万元
风格定位: 法式
案例主题: 法式的浪漫
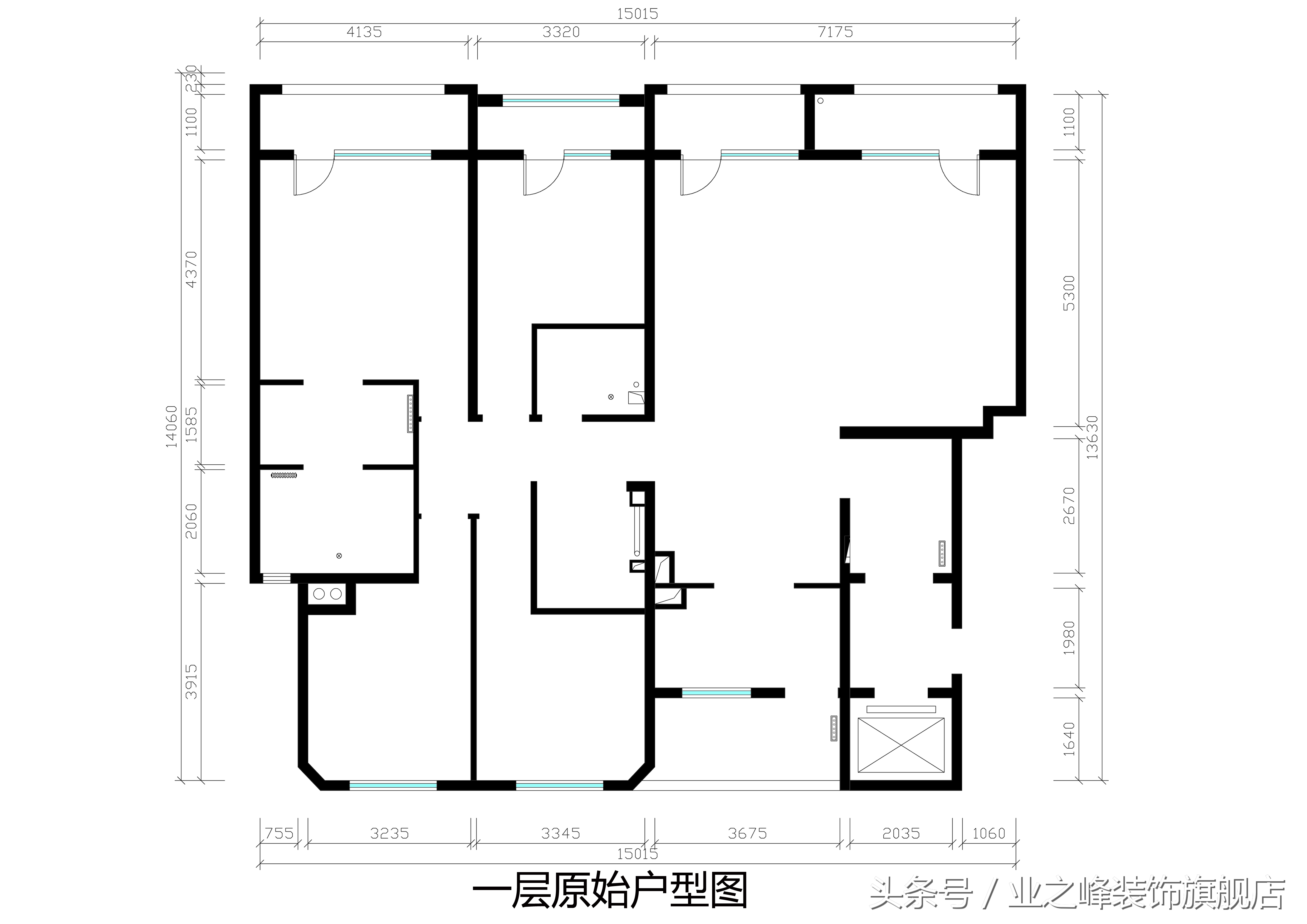
本户型260㎡的五室三厅一厨三卫的别墅,位于北京市房山区西山艺境,环境优美,交通便利。房主表达了对浪漫清新、高贵典雅的法式风格的追求。经过与业主多次的沟通及了解最终确定本方案定义为法式风格。该方案除了在环境和功能上提升业主的居住品质,还有就是创造出了恢宏的气势,豪华舒适的居住空间。该户型大体方正,空间划分合理,动线流线舒适。该户型主要分为:客厅,餐厅,厨房,主卧,次卧,女儿房,书房等。

西山艺境法式的浪漫
客厅是生活的重要空间,运用了法式元素。顶面采用直线灯池跌级吊顶,加上石膏线贴花显出层次更加清晰。墙面采用的挂风景画,造型简朴优美,电视背景墙运用了法式廊柱、雕花及线条。整个空间布局对称,色彩淡雅大气。沙发跳跃的粉颜色,让整个空间庄高贵中带一点俏皮可爱。

西山艺境法式的浪漫

西山艺境法式的浪漫
餐厅,地面方正的波打线和长方形的餐桌和家具及顶面的灯池跌级吊顶,都表现出了整体布局对称均衡,端正典雅。餐桌和餐椅扶手和椅腿的弧形曲度,显得优雅高贵,餐椅跳跃的蓝色与粉色搭配白色的门和晶莹的水晶吊灯,使浪漫清新之感扑面而来。此空间在简约之中更融合了法式的浪漫与优雅。所有的一切从整体上营造出一种高贵大气。整个空间也感觉更加实用、更富现代感。

西山艺境法式的浪漫
起居室,属于个人空间,设计为地中海风格。营造出幽雅、纯朴的田园风情。满足起居功能外,更注重对读书环境的营造。充分利用空间,大气的弧形书柜,组合沙发。颜色搭配上都选择自然的柔和的蓝色,集装饰与实用于一体;各处深浅不一的蓝色,让人感受到地中海的气息。运用了线条简单的灯池跌级吊顶,让空间富有层次感。在家具的选择上,选用了颜色和整体相对呼应的家具。整个空间让人感觉恬静可爱。

西山艺境法式的浪漫
主卧室,属于主人的私密空间,不仅简洁明亮,同时众多设计细节也便于主人居住生活。简单的布局,注重体现空间的舒适性,墙面的设计干净利落,富有清雅的气质。整个空间色彩呈淡蓝色,让主卧变得温馨舒适。原木色的地板迎合着白色的柜体让空间感觉简洁明快。淡雅的蓝色窗帘与蓝色的床相呼应。白色的地毯和白色的床突显出整个空间的大气。床头背景采用复古壁纸,两边加上法式台灯也是卧室里的一抹亮点。整个空间给人一种浪漫温馨,简洁明亮的感觉。让主人在此空间中享受悠然自得、释放压力。

西山艺境法式的浪漫
女儿房,属于女孩的私密空间,活泼又可爱,墙面的设计富有童趣,采用波点壁纸,床头两边加上可爱的台灯也是卧室里的一抹亮点。整个空间色彩呈淡粉,让主卧变得温馨可爱。白色的公主床、白色的床头柜和原木色的地板迎合着让空间感觉温馨明快。整个空间给人一种粉嫩少女心的感觉。让女孩在此空间中享受自己的公主人生。

西山艺境法式的浪漫

西山艺境法式的浪漫

西山艺境法式的浪漫

西山艺境法式的浪漫
-----我是华丽丽的分界线-----
分享最实用的装修设计,鉴赏海量原创装修设计美图,了解更多装修攻略。
你的转发和赞赏,是我继续分享的动力!