
Introduction to Home
家的简介

本案是216㎡的大平层改造,在与业主的交谈中,我们深刻了解业主的愿景,这是一处家的改造,更是业主对生活品质的向往。首先,空间的视觉通透是本次改造的重点方向。我们将光线引入,融汇自然之美,让每一寸空间都在清晨的第一缕阳光中苏醒。而低调柔和的色彩,恰如生活中的点滴温情,勾勒出宁静与宜人的居所。
拥有充足的储物空间是业主的心声,因此我们尽可能的增加储物空间,满足业主的需求。与此同时,手办的珍藏也被巧妙地融入,成为空间的一部分。这不仅是展示,更是对生活态度的注解,每一件手办都串联起无限的回忆。
温馨,明亮,舒适性,是这个家的灵魂。我们在每一个细节中注入这份情感,让家不再是简单的空间,而是情感的驿站。温馨的氛围是由细微处的布置和家具的选择构筑而成,明亮的设计不仅源于自然光线的引入,更借助布局的智慧,让光与影交错,犹如幸福的符号,闪烁在每个角落。舒适性则贯穿于每一个设计细节,从家具的选材到空间的规划,无不散发着对品质生活的执着追求。
设计是一场情感的对话,我们将业主的期待转化为设计的灵感,用心为业主打造一个温暖的家。
Apartment layout diagram
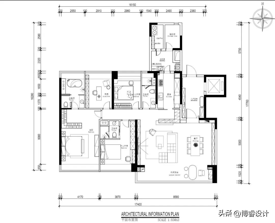
户型图

△原始结构图

△平面布置图
改造前:
1.客餐厅面积小
2.阳台利用率低
3.收纳空间少
改造后:
1.封阳台,扩大空间实用面积
2.利用电梯厅做入户收纳,增强实用性
3.利用阳台作为品茶区,以及植物养护区
4.公共空间使空间开阔性更好,着重舒适性,以及手办展示
Realistic view of living room
客厅实景
客厅沙发背景墙选用肤感烤漆,实现质感与美感融为一体。为了弥补储物空间的不足,采用电视区储物+置物柜的设计,可放置手办与装饰摆件,收纳也是一种展示。同时使用木色和白色两种色调,增加空间的层次感。

小景
Small scene.

客餐厅原先比较局限,打掉推拉门封阳台,地面通铺瓷砖到外阳台,呈现一个开放、开敞的空间,创造更多生活的可能性。同时增加品茶区,丰富空间功能,也增加一家人的互动性。

小景
Small scene.




Realistic view of kitchen
厨房实景
保留原有的封闭式厨房,做饭时,可以有效隔断油烟,防止气味飘到其他空间。厨房外的吧台,不仅会让空间瞬间充满小资情调,也符合业主对精致生活的追求。通过划分出一个新的功能区,提高空间利用率,同时可以分担厨房的部分功能。

Restaurant Realistic View
餐厅实景
餐桌采用花纹特别的岩板,装饰性极强,成为餐厅视觉的点睛之笔。 餐厅一侧是一组餐边柜,满足居住者储物需求的同时,释放厨房的压力,同时优化家居动线。

Realistic view of master bedroom
主卧实景
主卧借用大飘窗,不仅扩大面积也增加一个休闲区,当午后阳光慵懒的透过纱帘洒下来,靠在窗边,阅读书籍,感受着治愈的居家时光。




Realistic view of the little boy's room
小男孩房实景
小男孩房采用飘台书桌设计,将飘窗的整体或部分使用抽屉或柜体加高,达到书桌适用的高度,不仅提高空间利用率,也为孩子增加一个阅读学习的空间。

小景
Small scene.

Realistic View of Big Boy's Room
大男孩房实景
床头背景墙采用浅灰色的细格栅,线条流畅,搭配深灰护墙板,层次感分明,再运用金属感的床头吊灯点缀,提升卧室整体格调。

小景
Small scene.

大男孩房利用开门后一整面墙体做整体衣柜以及书桌结合,既满足衣物储放也满足学习阅读功能。


Realistic view of the bathroom
卫生间实景
卫生间采用干湿分离设计,一侧为白色大理石的洗手台,一体化的台面设计,整体观感更加高级精致,另一侧为独立淋浴区,利用玻璃门做隔断,防水防潮。 洗手台的镜柜,令储物空间大大增加,收纳整洁,摆放有序。

小景
Small scene.

Borui decoration assistant
博睿装饰助手
(此处已添加小程序,请到*今条头日**客户端查看)
Contact us
联系我们

Project details
项目详情
项目地址 | 广州
项目面积 | 216㎡
项目户型 | 平层
设计风格 | 现代简约
摄影师&视频制作 | 孟喆