一、 设备、材料要求
1 厅门部件应与图纸相符,数量齐全。
2 门锁装置应有形式试验报告结论副本。
3 地坎、门导轨、厅门记扇应夫变形、损坏。其他各部件应完好无损,功能可靠。
4 用于制作钢牛腿和牛腿支架的型钢要符合要求。
5 电焊条和膨胀昆栓要有出厂合格证。
6 水泥、砂子、防锈漆要符合本篇第二章的规定。
二、 主要机具
主要机具包括:台钻、手电钻、电锤、活扳子、水平尺、钢板尺、直角尺、钢卷尺、电料工具、气焊工具、线坠、斜塞尺、铁锹、小铲、榔头、錾子、钢丝刷、漆刷等。
三、作业条件
1 各层脚手架横杆应不妨碍厅门安装的施工要求。
2 各层厅门口及脚手板上干净、无杂物。
3 防护门安全可靠。
4 各层厅门口建筑结构墙壁上,应有土建提供并确认的楼层装饰高线。
5 对厅门各部件进行检查,如发现不符合要求处应及时修整,对转动部分应进行清洗加油,做好安装准备。
四、 操作工艺
(一) 工艺流程:
稳装地坎→安装门立柱、门上坎、门套→安装厅门扇、调整厅门→门锁安装
(二) 稳装地坎。
1 按要求由样板放两根厅门安装基准线(高层梯最好放三条线,即门中一条线,门口两边两条线),在各厅门地坎上表面和内侧立面上划出净门口宽度线及厅门中心线,以基准线及划线确定地坎、牛腿及牛腿支架的安装位置(下图)。

2 若地坎牛腿为混凝土结构,应在混凝土牛腿上打入两条支撑板用钢筋,用钢管套住向上弯曲约90º,在钢筋上放置相应长度的模板,用清水冲洗干净牛腿,将地脚爪装在地坎上,然后用细石混凝土浇筑(水泥标号不小于P.032.5,水泥、砂子、石子的容积比是1:2:2)。稳放地坎时要用水平尺找平(注意开关门和进出电梯两个方向的地坎水平度),同时三条划线分别对正三条基准线,并找好地坎与基准线的距离。地坎稳好后应高于完工装修地面2~5mm,若是混凝土地面应按1:50坡度与地坎平面抹平,浇筑的混凝土阴干约8小时后可拆除模板,并用抹子削除混凝土的多余部分(下图)。
3 若厅门无混凝土牛腿,应在预埋铁件上焊支架,安装钢牛腿来稳放地坎,分两种情况:
(1)电梯额定载重量在1000kg及以下的各类电梯,可用不小于L75×75×8角钢做支架进行焊接,并稳装地坎(下图),牛腿支架不少于3个(或按厂家要求)。

(2)电梯额定载重量在1000kg以上的各类电梯(不包括1000kg)可采用δ=10mm的钢板及槽钢制作牛腿支架进行焊接,并稳装地坎(下图)。牛腿支架不少于5个(或按厂家要求)。
4若厅门地坎处既无混凝土牛腿又无预埋铁,电梯额定载重量在1000kg以下(包括1000kg)的各类电梯,可采用M12以上的膨胀螺

栓固定牛腿支架(每个支架用膨胀螺栓不少于2个),支架采用L75×75×8的角钢制作,进行稳装地坎,牛腿支架不少于3个;电梯额定载重量在1000 kg以上的各类电梯,可采用M16以上的膨胀螺栓固定牛腿支架(每个支架用膨胀螺栓不少于2个),支架采用L100×100×10的角钢制作,进行稳装地坎,牛腿支架不少于5个(或按厂家要求)(下图)。

5为防止由于厅门基准线被碰造成误差,在用基准线稳装地坎的过程中,可用校正好的轿厢导轨来检验厅门地坎的安装位置是否准确。方法如下:
(1)用钢卷尺测量导轨侧工作面至厅门地坎外边缘之间的最小距离,使每边的尺寸均为:
B+H-d/2(下图)。

式中B一轿厢导轨中心线到轿厢地坎外边缘尺寸:
H一轿厢地坎与厅门地坎距离;
d一轿厢导轨工作端面宽度。
(2)复核厅门中心点是否正确,可测量厅门地坎中心点M距轿厢两导轨内侧棱角距离,S1与S2应相等(下图)。

(三)安装门套、门立柱、门上坎。

地坎混凝土硬结后才能安装门立柱、门上坎。
1按门套加强板的位置在厅门口两侧混凝土墙上钻φ10mm的孔(砖墙钻φ8mm的孔),将φ10×100mm的钢筋打人墙中,剩30mm留在墙外。
2在平整的地方组装好门套横梁和门套立柱,垂直放置在地坎上,确认左、右门套立柱与地坎的出入口划线重合,找好与地坎槽的距离,使之符合图纸要求,然后拧紧门套立柱与地坎之间的紧固螺栓。
3将左右厅门立柱、门上坎用螺栓组装成门框架,立到地坎上(或立到地坎支撑型钢上),立柱下端与地坎(或支撑型钢)固定,门套与门头临时固定,确定门上坎支架的安装位置,然后用膨胀螺栓或焊接(有预埋铁)将门上坎支架固定在井道墙壁上。
4用螺栓固定门上坎和门上坎支架,按要求调整门套、门立柱、门上坎的水平度、垂直度和相应位置。
(1)用水平尺测量门导轨安装是否水平,如是侧开门,两根门导轨上端面应在同一水平面上,用门口样线检查门导轨中心与地坎槽中心的水平距离X符合图纸要求,偏差不大于1mm(上图),检查门导轨的垂直度以及门上坎的对中情况,用线坠调整门立柱的垂直度,确认合格后,紧固门立柱、门上坎支架、门上坎及地坎之间的连接螺栓。
(2)用门口样线校正门套立柱的垂直度,全高应对应垂直一致,然后将门套与门上坎之间的连接螺栓紧固,用钢筋(φ10 × 200)与打人墙中的钢筋和门套加强板进行焊接固定,注意应将钢筋弯成弓形后再焊接,以免焊接变形导致门套的变形(下图)。
(四)安装厅门扇、调整厅门。
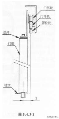
1清除门套焊接部分的焊渣(用锉刀)和厅门口两侧井道墙壁上的水泥块、砖块(用榔头)等凸出物。清理地坎槽内的杂物。
2将门吊板上的偏心轮调到最大值,然后将门吊轮挂到门导轨上,调小偏心轮与门导轨的间距,防止门吊板坠落。

3将门地脚滑块装在门扇上,在门扇和地坎间垫上6mm厚的支撑物,将门地脚滑块放人地坎槽内,门吊轮和门扇之间用专用垫片进行调整,保证门缝尺寸和门扇垂直度符合要求,然后将门吊轮与门扇的连接螺栓紧固,将偏心轮调到与滑道间距小于0.5mm,撤掉门扇和地坎间所垫之物,进行门滑行试验,达到轻快自如为合格单扇门未装开门机构前在任意位置牵引时的阻力应小于3N.
4层门进口净宽在轿厢进口宽度方向的任何一侧,均不应大于50mm(下图)。
(五)厅门门锁、副门锁、强迫关门装置及紧急开锁装置安装。
1安装前应对门锁进行检查、调整,使其灵活可靠。
2厅门锁和副门锁开关要按图纸规定的位置进行安装。若设备上安装螺孔不符合图纸要求要进行修改。

3调整厅门锁和副门锁开关,使其达到:只有当两扇门(或多扇门)关闭达到有关要求后才能使门锁电触点和副门锁开关接通,一般应使副门锁开关先接通,厅门门锁电触点再接通,如门锁固定螺孔为可调者,螺栓必须加平垫片、弹簧垫片,且连接紧固,防止门锁移位。
4当轿门与厅门联动时,钩子锁应无脱钩及夹刀现象,在开关门时应运行平稳,无抖动和撞击声。
5在门扇装完后,应将强迫关门装置装上,使层门具有自闭能力,被打开的厅门在无外力作用时,厅门应能自动关闭。采用重锤式的层门自闭装置,重锤导管或滑道的下端应有封闭措施。
6层门手动紧急开锁装置应灵活可靠。每个层门均应设置此装置,门开启后三角锁应能自动复位。
(六)层门地坎下的防护。
每个层门地坎下的电梯井道壁应符合下列要求:
1井道壁应形成一个与层门地坎直接连接的垂直表面,它的高度不应小于1/2的开锁区域加上50mm,宽度不应小于门人口的净宽度各加25mm.
2垂直表面应是连续的,由光滑而坚硬的材料构成。如金属薄板,它能承受垂直作用于其上任何一点均匀分布在500m圆形或方形截面上的300N的力,且应无永久变形,弹性变形不大于10mm。
3井道壁任何凸出物均不应超过5mm,超过2mm的凸出物应倒角,倒角与水平面的夹角至少为75°.
4井道壁应连接到下一个门的门媚或采用坚硬光滑的斜面向下延伸,斜面与水平面的夹角至少为60°,斜面在水平面的投影不应小于20mm.
五、质量标准

(一)主控项目:
1轿厢地坎与各层厅门地坎间距的偏差严禁超过+3mm(在整个地坎长度范围内),且最大距离严禁超过35mm。
检验方法:尺量检查。
2开门刀与各层厅门地坎、各层厅门开门装置的滚轮与轿厢地坎的间隙均须在5~10mm范围内,开门刀两侧与门锁滚轮间隙应均匀,尺寸应符合各电梯厂的要求。
检验方法:尺量检查。
3厅门导轨中心与地坎槽中心的水平距离,导轨本身的不铅垂度偏差应不大于0.5mm。
检查方法:吊线、尺量检查。
4厅门扇不垂直度偏差不大于2mm,在门下端用150N的力(约15公斤)扒开时:中分门间隙应不大于45mm;旁开门间隙应不大于30mm;偏心轮对滑道间隙c不大于0.5mm(上图)。
检查方法:吊线、尺量检查。
5门扇安装、调整应达到:门扇平整、洁净、无损伤。启闭轻快平稳,无噪声,无摆动、撞击和阻滞。中分门关闭时上下部同时合拢,门缝一致。
检查方法:做启闭观察检查。
6厅门框架立柱的垂直误差和厅门导轨的水平度误差均不应超过1/1000。
检查方法:吊线、尺量检查。
7厅门关好后,机锁应立即将门锁住,锁钩电气触点刚接触,电梯能够起动时,锁紧件啮合长度至少为7mm (下图)。应由重力、弹簧或永久磁铁来产生并保持锁紧动作,而不得由于该装置的功能失效,造成层门锁紧装置开启。厅门外不可将门扒开,可借助于紧急开锁的钥匙开启厅门,每一扇厅门必须认真检查。
检查方法:尺量和观察检查。

8厅门关好后,门锁导电座与触点接触必须良好,手扒门时应不能使触点断开。

检查方法:观察检查。
9厅门门扇下端与地坎面的间隙、门套与门扇的间隙、门扇与门扇的间隙C为:客梯1~6mm,货梯1~8mm(右图)。
检查方法:尺量检查。
(二)一般项目:
厅门地坎及门套安装的尺寸要求、允许偏差和检验方法应符合下表的规定。

六、施工安全及成品保护
1门扇、门套有保护膜的要在竣工后才能把保护膜去掉,必要时需再加保护层。
2在施工过程中对厅门组件要注意保护,不可将其碰坏,保证外观平整光洁,无划伤、撞伤痕迹。
3在门套安装完毕后,土建应立即将门套、地坎与建筑结构之间的缝隙封闭,在封闭时要有防止门套变形的措施。
4动用电、气焊时应有防火措施,设专人看火。
5厅门扇安装后,在安装门锁并起作用前,不得拆除井道安全护栏。
6门锁防尘罩应在每次调整门锁后及时装好。
7在井道内作业时应戴安全帽,使用安全带。
七、应注意的问题
1混凝土结构牛腿灌注混凝土稳装地坎后,需等砂浆阴干72小时,方可进行下道工序。
2若门套横梁与门套左右立柱厚度不同,组装时应保证门套内侧表面(与门扇形成门缝的表面)在同一平面上。
3固定钢门套时,钢筋要焊在门套的加强板上,不可在门套上直接焊接。
4所有焊接连接和膨胀螺栓固定的部件一定要牢固可靠。砖墙上不准用膨胀螺栓固定。
5凡是需埋人混凝土中的部件,一定要经有关部门检查办理隐蔽工程手续后,才能浇灌混凝土。不准在空心砖或泡沫砖墙上用灌注混凝土的方法固定。
6厅门各部件若有损伤、变形的,要及时修理或更换,合格后方可使用。
7厅门与井道固定的可调式连接件,在厅门调好后,应将连接件长孔处的垫圈电焊固定,以防位移。
8与电梯安装相关的预埋铁、金属构架及其焊口,均应做好清除焊渣、除锈防腐工作,不得遗漏。