智能化小区出入管理一般在小区大门 栅栏门 电动门,单元的铁门防火门 防盗门上安装门禁系统. 可以有效地阻止闲杂人员进入小区,有效地对小区进行封闭式管理。

1. 门禁控制器 是门禁系统的核心部分,它负责整个系统输入、输出信息的处理和储存,控制等等。
2.读卡器(识别仪) 读取卡片中数据(生物特征信息)的设备。
3.电控锁 门禁系统中锁门的执行部件。用户应根据门的材料、出门要求等需求选取不同的锁具。
主要有以下几种类型:
(1)电磁锁:电磁锁断电后是开门的,符合消防要求。并配备多种安装架以供顾客使用。这种锁具适于单向的木门、玻璃门、防火门、对开的电动门。
(2) 阳极锁:阳极锁是断电开门型,符合消防要求。它安装在门 框的上部。与电磁锁不同的是阳极锁适用于双向的木门、玻璃门、防火门,而且它本身 带有门磁检测器,可随时检测门的安全状态。
(3) 阴极锁:一般的阴极锁为通电开门型。适用单向木门。安装阴极锁一定要配备UPS电源。因为停电时阴锁是锁门的。
4. 卡片 开门的钥匙。可以在卡片上打印持卡人的个人照片,开 门卡、胸卡合二为一。
5. 其它设备 出门按钮:按一下打开门的设备,适用于对出门无限制的情况。
门磁:用于检测门的安全/开关状态等。
电源:整个系统的供电设备,分为普通和后备式(带蓄电池的)两种。
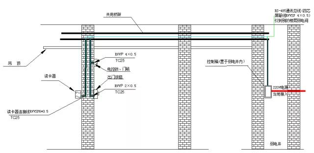
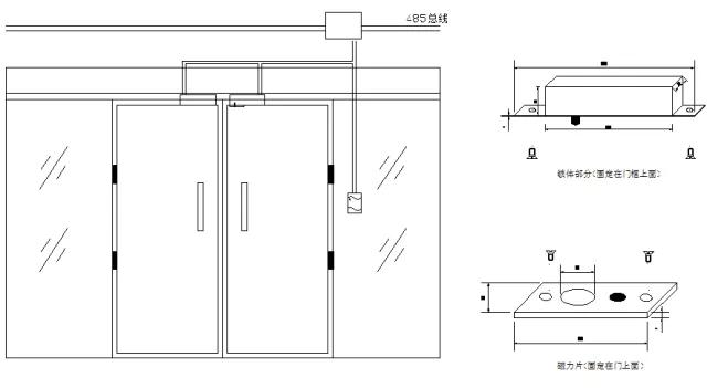
下面是门禁系统中的各种安装示意图。最全的门禁安装大样图、管线图、系统图、电锁安装图。


门禁安装大样图




门禁设备安装三视图



电锁安装图