
湖北孝感郑家欧式别墅
建设地点 湖北孝感
图纸编号 1356
尺 寸 面宽12.5米 进深20.3米
建筑面积 1578.0㎡
设计机构 易盖房杨洋工作室
土建造价 268.0万
项目概况

△总平面示意图(右上角为北)
基地情况:
东:邻家住宅
西:邻家住宅
南:村内道路
北:院子
项目简介:
业主在设计前期与设计师详细沟通了平面布局和立面造型方面的需求及想法,并提供了基地和公路出现高差的情况。设计师根据业主的需求与喜好,并结合场地实际情况,将项目形式确定为的六层+地下一层欧式别墅。
平面布局
户型概况:
6层+地下一层 / 17室 5厅 1堂室 11卫 5厨 2储藏 2洗衣 4书房 1娱乐活动室 1影音娱乐 1宴会厅 1健身房 3阳台 2露台 1车库

△地下层平面图(右上角为北)
地下一层作为车库,预留多车位区域和一个应急车位,搭配储藏室使用。

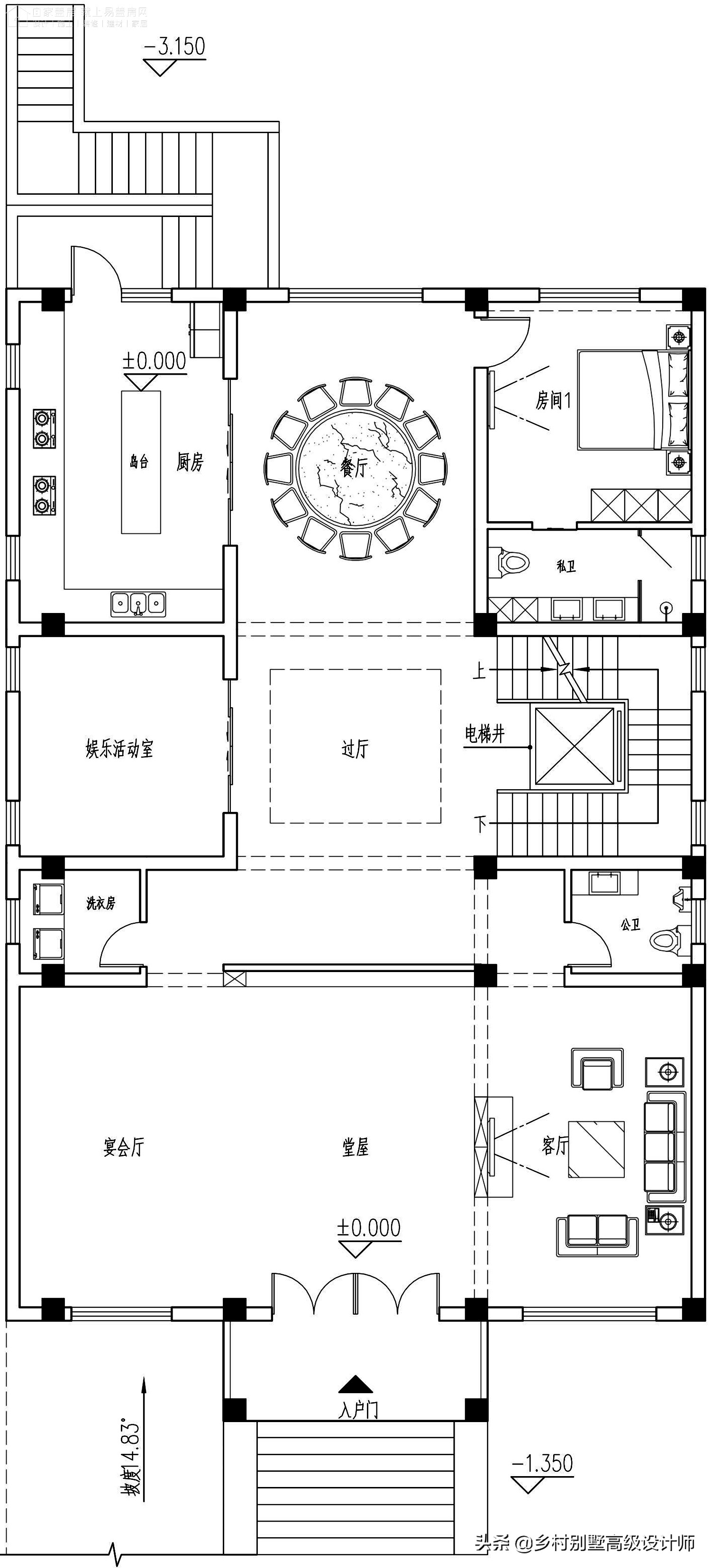
△一层平面图(右上角为北)
一层空间划分简洁明了,由东南侧入户门与堂室、宴会厅、客厅连接,中部设置娱乐活动室、楼梯和电梯空间;西北侧作为餐厨空间使用,与次入口相邻,使得出行更为便捷。

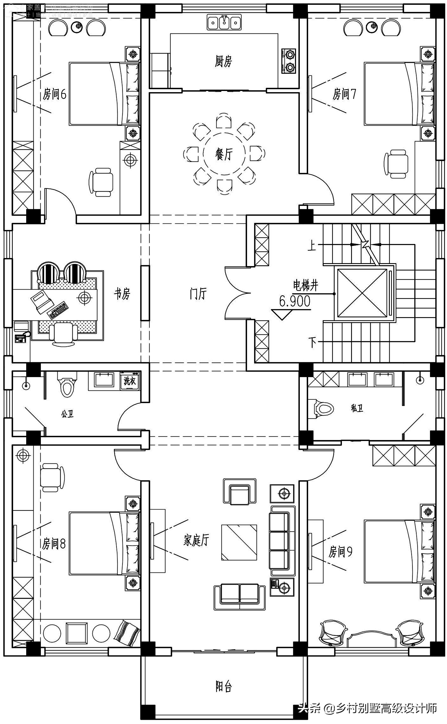
△二层平面图(右上角为北)

△三层平面图(右上角为北)

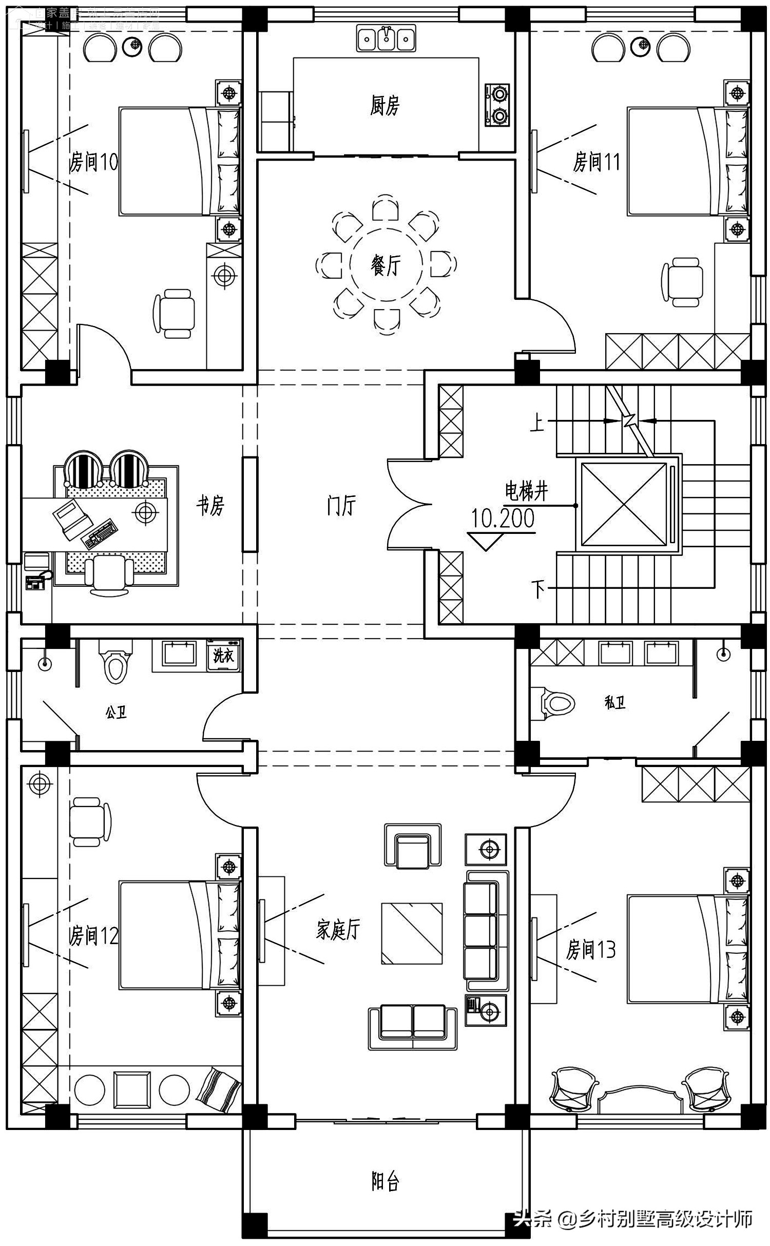
△四层平面图(右上角为北)

△五层平面图(右上角为北)
二、三、四、五层整体空间布局基本一致,只是在功能规划上,丰富居住和办公功能。考虑到采光、观景、隐私等问题将卧室置于四个方位,每层设置餐厨空间、办公场所和书房,使得居住生活体验的功能完整性得以保障。

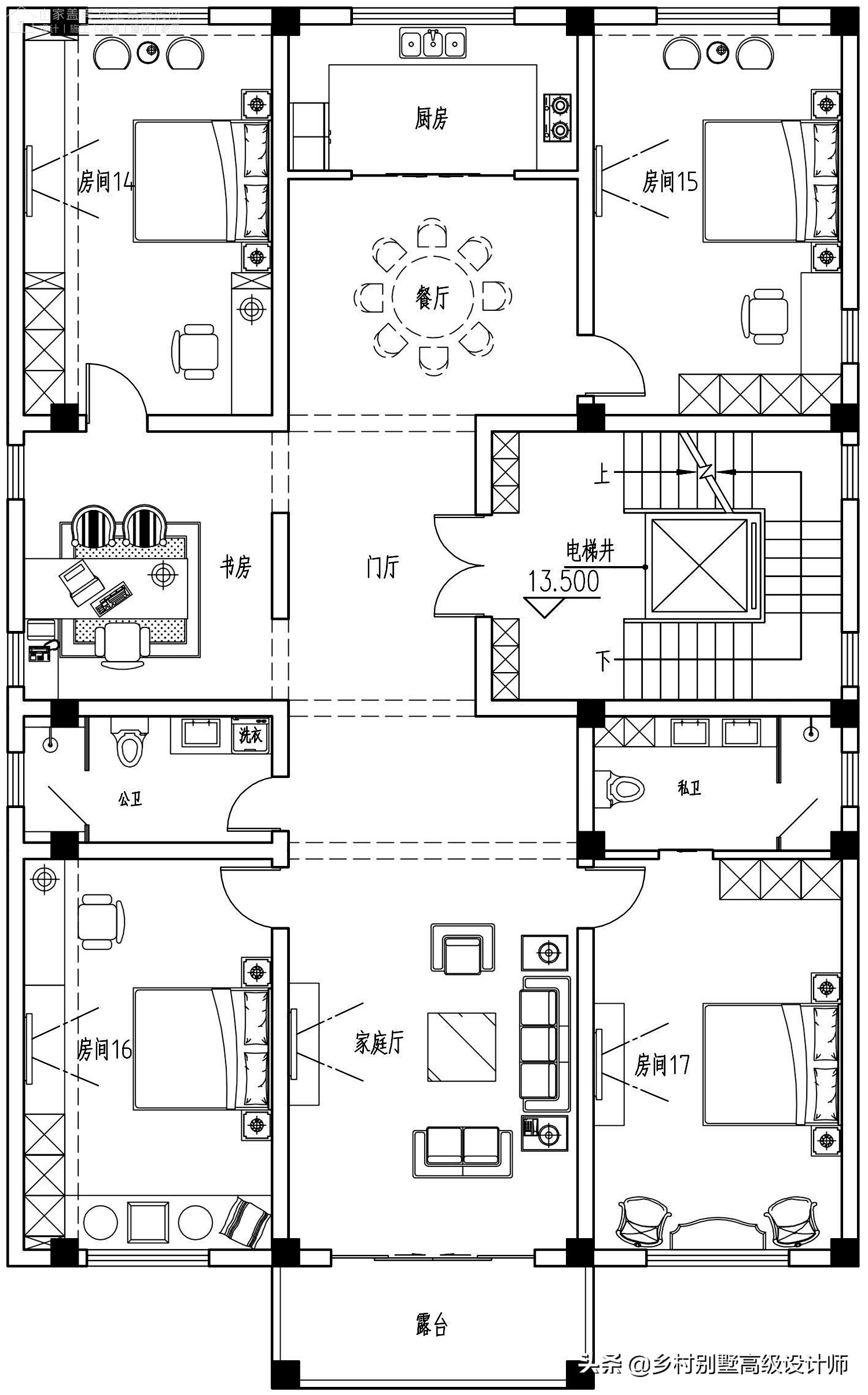
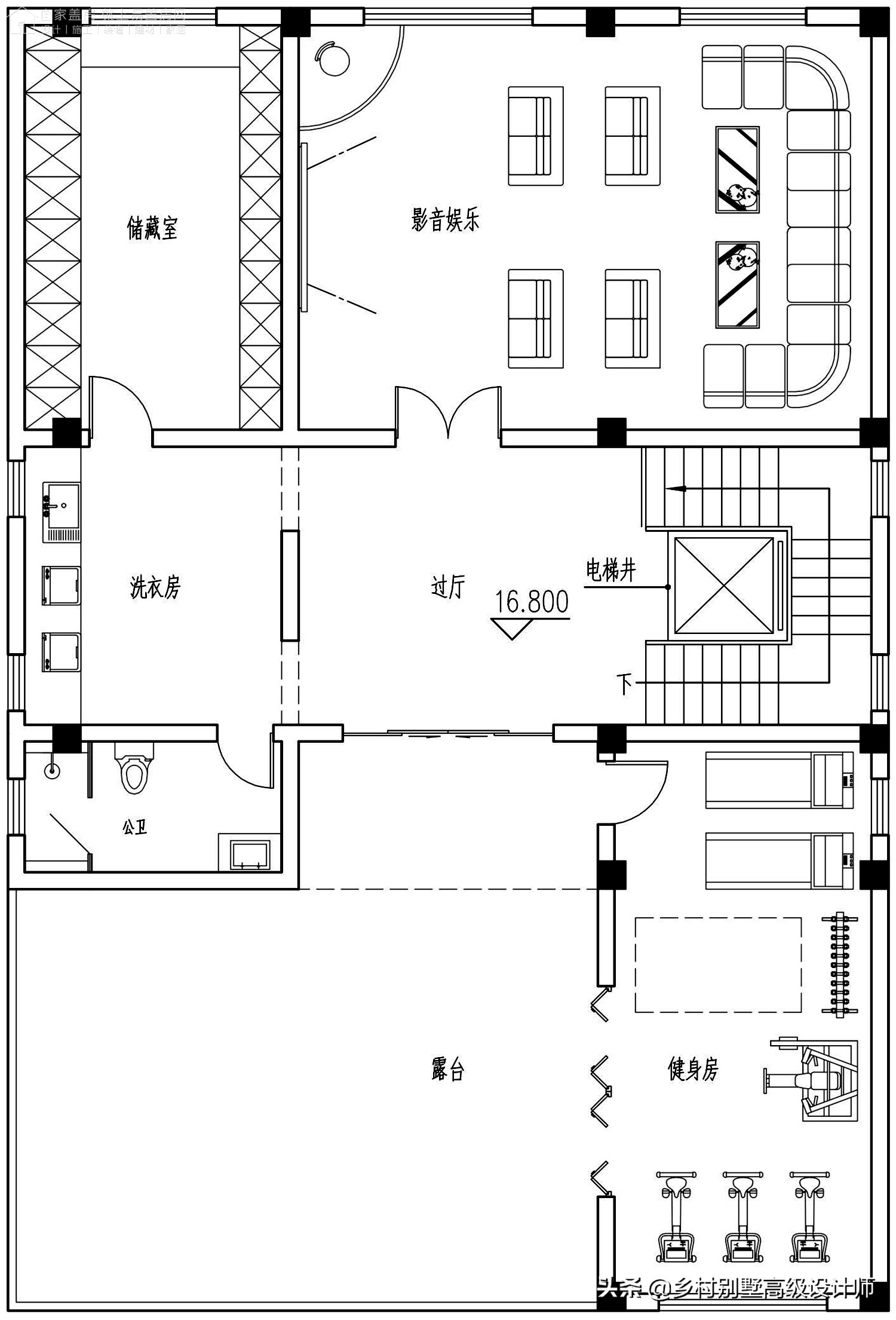
△六层平面图(右上角为北)
六层整体空间布局只是在功能规划上,丰富娱乐功能。西北侧空间主要以影音娱乐室和储藏室组成;在东南侧设置大露台和健身房,改善局部空间微环境,美化生活起居。
造型设计

△东南侧效果图

△东侧效果图
建筑整体采用欧式风格,大面积的暖色真石漆搭配外墙文化石,再点缀以欧式雕花构件。立面造型精致优雅,同时庄严稳重,彰显了房主的格调和品味。

△南侧效果图

△鸟瞰图
南立面作为主造型面,通高玻璃窗的搭配以及空间的延伸和退让营造层次感。屋檐窗框和墙面转角处均作了细致的处理,精雕细琢的建筑给人扑面而来的大气感。

△东侧效果图

△北侧效果图

△鸟瞰图
项目注重于细节装饰的展现,大门的楼梯设计,还有入口部分的欧式装饰,都是经过设计师精雕细琢之后的艺术品,大大提升了建筑的品质。

△鸟瞰图

△东北立面

△西南立面

△东南立面

△西北立面