什么是双控开关
首先我们先了解什么是双控开关,双控开关是指对某个设备进行两个地方的分别控制,比如如果是照明灯,那有在客厅进门控制客厅灯光的,你到了卧室要睡觉的时候再跑去客厅关灯就累了,在卧室你可以也安一个开关对客厅灯进行控制。同样在工厂里面对某个电机进行两地控制都是很平常的事情,所以双联双控就是指不地方的两个面板上各两个键,共控制两个电源达到在不同地方可以控制同一设备(如照明灯)。
双控开关的种类
双控开关因为控制面板上开关按钮的不同可以分为单联双控开关、双联双控开关、三联双控开关,按照联数的增加接线困难也会递增,这个时候一张全面的双控开关接线图就能帮上大忙了,下面就逐一来阐述这三种双控开关的原理、接法和接线图。
单联双控开关接线图
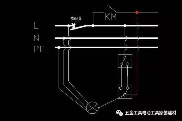
1、单联双控开关接线图

2、单联双控开关原理

单联双控开关实际上就是两个单刀双掷开关串联起来后再接入电路。每个单刀双掷开关有三个接线端,分别连着两个触点和一个刀。
3、单联双控开关接法
把两个单刀双掷开关的两个触点分别相连,即开关1的触点1与开关2的触点1相连,开关1的触点2与开关2的触点2相连,然后两个开关的刀做为整个开关的两端接入电灯的两端。这样当开关1和2的刀同时接打向各自触点1或同时打向触点2时,电路接通,则灯亮。若两开关的刀一个打向触点1而另一个打向触点2时,电路不通,则灯灭。因此两个开关都可以控制灯。两个开关可以放在楼梯的上下两端,或走廊的两端,这样可以在进入走廊前开灯,通过走廊后在另一端关灯,既能照明,又能避免人走灯不灭而浪费电。
双联双控开关接线图
1、双联双控开关接线图

2、双联双控开关原理
双联双控开关的定义与单联双控开关的定义差不多,唯一的区别就是双联是2个按钮的开关,单联就只是一个按钮的开关。那什么是双联双控开关呢?其实很简单,就是指在一个面板上,通过两个按钮来控制两个用电设备,就是两个开关控制这两条电路。
3、双联双控开关的接线

先将一个双控开关的中间接线柱连接到火线,再将另一个双控开关的中间接线柱连接到灯头(或螺口灯头的中心舌片),然后连接来回线,也就是用两条绿色导线任意连接上下两个接线柱;零线则直接连接到灯头的另一个触点(或螺口灯头的螺纹)这样就完成连接了。
三联双控开关接线图
1、三联双控开关接线图

2、三联双控开关的原理
三联双控开关的原理跟上面两种双控开关是一样的,就一个控制面板同时集合。