小白下面从十个方面全方位剖析此楼盘的产品细节,分析观点维持客观,中立,第三方。
1、缘起



项目商业用地49313.95平方米,住宅用地121266.71平方米。其中N07-B15地块规划用途商业,容积率≤1.2;N07-B16地块规划用途商业,容积率≤1.5;N07-B07地块规划用途住宅,容积率≤1.8;N07-B12地块规划用途住宅,容积率≤2.0;N07-B14地块规划用途住宅,容积率≤1.8。成交总价104160万元,成交楼面价5600元/平。
由湖南运达房地产开发有限公司最终竞得。
2、总图规划
规划总图


(图中楼栋间距标注均取整)
总图排布特点分析:
1、地块面宽极窄,楼栋呈长条形布置;
2、楼栋主朝向为南向;
3、楼栋之间间距主要为33~40米左右,从楼层高度来说,南区的间距指标较好。
3、指标分析

(来源:自规局官网)
北地块分布4栋高层,综合经济技术指标可得出:
1、地块容积率为3.11,绿地率40%,建筑密度22%;
2、商住比为1.5%(不包含地下商业);
南地块分布10栋小高层,综合经济技术指标可得出:
1、地块容积率为2.5,绿地率35%,建筑密度25%,指标较为均衡;
2、纯住宅地块;
两地块综合:
1、存在人防地下室,部分楼栋地下入户大堂会存在高差与人防门;
2、地库停车位配比1:1.36,设置较为充裕。
3、北地块户型面积大于150平方米的占比为75%,南地块小区户型面积均大于150㎡,整体瞄准改善群体。
4、区位分析

(示意图)
片区及地块本身素质:此地块位于雨花武广新城片区,周边配套较为完善。

(示意图)
地块周边主要节点:
1、地块西侧:高桥南地铁站;
2、直线630m左右:高桥大市场;
3、直线1.2km左右:运达汇;
4、直线1.9km左右:沙湾公园,同时周边有三大商场;
5、北侧与西侧紧邻长沙大道与万家丽高架,可能有一定的噪音影响。
综上所述: 地块出门即地铁口,公共交通出行比较便利;在生活配套上,从低端到高端一应俱全。
5、交通分析

高速路网 :往东经长沙大道可转京港澳高速入口(2.5km左右);
城市路网 :西侧紧邻万家丽高架,可便捷通达城区各处。
6、小区流线

人行、车行出入口: 各开口详见上图示意。
7、教育配套
(示意图)
学校配套方面: 据了解湖南师大附中雨花学校将作为运达滨河广场项目的配套学校,具体教育配套以楼盘公示为准 。
8、地块细节分析

(示意图)
垃圾站:位于5#南侧,东侧设置集中绿地(儿童、老年人活动场地),可能有一定气味干扰。

(示意图)
2#几乎被车库入口包围,尾气、噪音对其影响较大。

(示意图)
两地块地上,地下设置连通口,增强地块之间的互通性,但是实际使用过程,估计跨区不多。

(示意图)
高桥南1号地铁出入口位于4#西侧,人流量较大,但空间上与小区错层(小区为抬地式)。

(示意图)
2#北侧设置人行连廊,可实现商业与小区互通,可关注此处岗亭设置,物业管理方式。

(示意图)
幼儿园:位于南地块南侧,与小区首层大概存在2.2m的高差,但围墙离周边楼栋距离很近。



(示意图)
消防扑救场地(需采用硬质铺装):上图楼栋之间的登高场地在一个面,导致楼栋围合的中心园区,硬质铺装较多,软景配植较少,后期景观打造较为局限。
9、小区典型户型分析

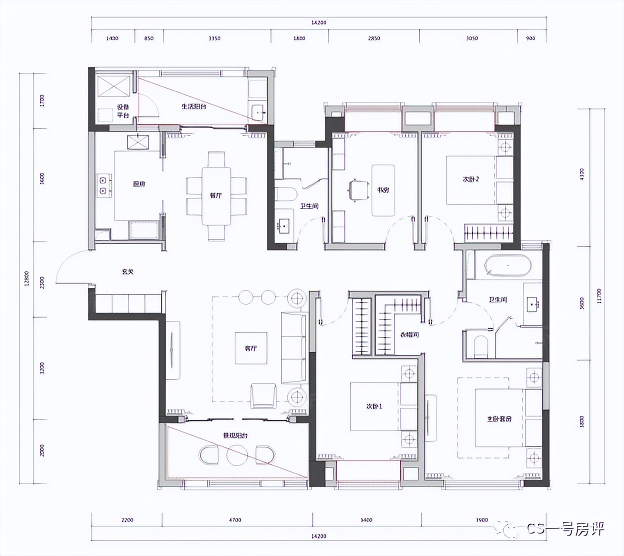
173.15户型亮点:
1、户型南北通透,但户型总体以房间刚需作为框架,起居空间相对较小,设置较多卧室;
2、南北双阳台设置,北侧可做晾衣空间,不影响客厅景观阳台的舒适性。
户型遗憾:
1、主卫设置一定分区,但最舒适的应该是卫生间尺度,主卧居住与衣帽间相对较小.

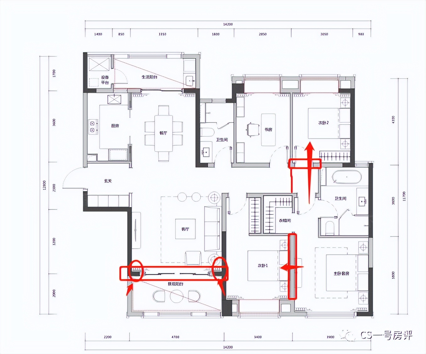
(框选为去墙后、空间连通示意)
户型可改造性: 客厅、卧室与南侧阳台之间可推出,扩大室内空间,但中间有承重墙垛(上图红圈处);
主卧与西侧卧室、北侧卧室之间可联通,做成两房或三房套,满足主人更加奢华的起居需求。

223.89户型亮点:
1、玄关较大,便于日常使用;
2、户内设置洗衣房,实用性较好。
户型遗憾:
1、户型框架整体面宽较少,进深较多;
2、餐厅虽然面积较大,但面宽较少,导致摆放圆桌困难,而且西厨摆放位置十分尴尬;
3、生活阳台较小,无法满足家庭晾晒需求;
4、厨房存在拐角,导致开门宽度受到影响;
5、客厅位置也十分尴尬,不仅面积不大,而且两卧室对着客厅开门,动静分区不明显;
6、主卧的空间也因为缺乏面宽,把功能硬塞在竖向上。

(框选为去墙后、空间连通示意)
户型可改造性: 客厅与南侧阳台之间可推出,扩大室内空间,中间有承重墙垛(上图红圈处)。

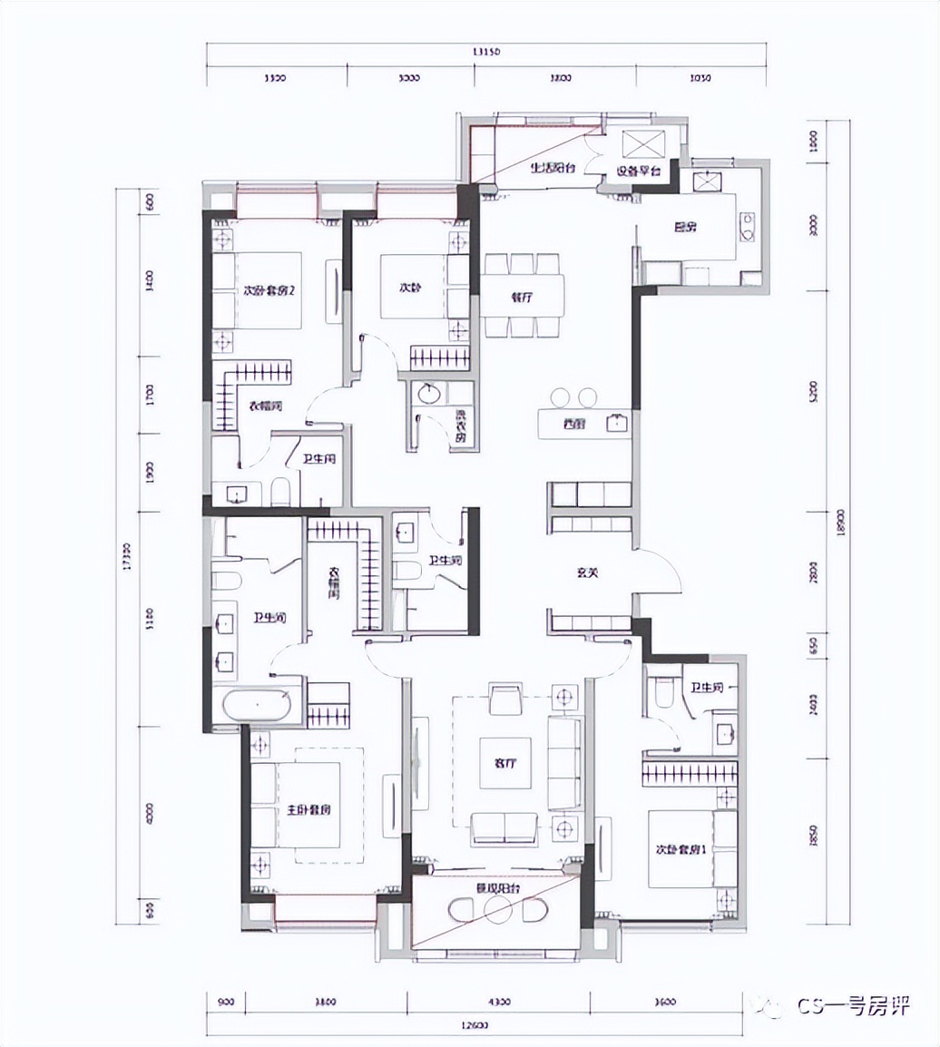
258.3户型亮点:
1、户型南北通透,双阳台设置,景观与晾晒,功能分离;
2、玄关处设置老人房且带卫生间,使用便利,但与此同时牺牲了玄关柜的设置空间;
3、主卧套间分区合理,各功能空间尺寸舒适,比上面户型都要好。
户型遗憾:
1、厨房位于户型中央,对居住区域影响较大;
2、公共卫生间为暗卫,体验欠佳。

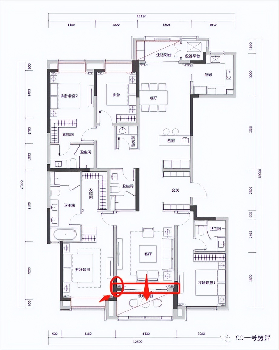
(框选为去墙后、空间连通示意)
户型可改造性: 客厅与南侧阳台之间可推出,扩大室内空间,中间有承重墙垛(上图红圈处)。

307.04户型亮点:
1、从户型框架来说初现豪华气质,由于景观在其东侧,所以中置客厅较为合理;
2、主卧分区比较合理,但也有点问题的,既然占据了东侧良好的景观面,卫生间要是整体做成转角窗,则体验更佳;
3、洗衣房与北侧生活阳台,真正意义的合理好用。
户型遗憾:
1、电视墙较短,即使自理推出,中间也夹着个房门,有些碍事;
2、西厨与中厨之间夹着个卫生间,两者要是与餐厅连成一体,则更加好用,目前的西厨摆放,类似地方闲着没用,硬塞进去,与使用流线根本不搭。

(框选为去墙后、空间连通示意)
户型可改造性: 客厅与阳台之间可推出,扩大室内空间。
10、总结
地块综合 :此地块位于武广新城片区,周边配套十分成熟,但地块的硬性条件肯定达不到售价,主要有以下几点:
1、地块及其周边并非高端代名词;
2、地块素质一般,过于扁长,导致产品力大打折扣,户型最需要的面宽丧失,其户型硬伤较多;
3、双高架加持,总归还是有些影响;
4、此次户型设置上也不是纯大户型,产品设置上居住空间较多,偏家庭实用。
但市场存在即合理,操盘方也还是有其核心竞争力,不买只是因为你并非其客群:
1、上文说过的运达物业,目前一期的表现就是长沙的天花板之一,这点附加值很深入人心;
2、运达在前期已经积累了较好的口碑,最终呈现的产品还是不错的,其高净值客户较为认可,但是这个地块总体来说,房屋总价还是低些,而且有限购政策,所以针对的客户群体也有所变化。
适合人群 :对运达品牌比较认可的改善型客户。
如何选房 :首先2#肯定是比较差的,上文已经说过,其次从户型来说,此次的中间户做的都不太好,最后担心噪音的话,尽量不选西侧的户型;那么基本就能得出结论,8#、10#、12#肯定是小区最好的位置,然后就是其他楼栋的东边户。
文章不做任何引导性购买建议,纯粹从客户角度分析项目。
文中户型改造部分均为示意,如采纳,应找具有资质的装修单位做详细施工方案。
纯干货软文编写不易,欢迎点赞、关注、转发。