随着新农村的发展,农村住房也得到了很大的改善。有宅基地的家庭只要符合建房条件可以申请自建别墅,正因如此农村土地资源越发珍贵。这让不少“后来者”拿到的宅基地都处于坐南朝北的方位。今天小编带来的是广西南宁方先生家的自建房案例,房子朝向:坐南朝北。布局精巧实用,篇尾附上详细施工图。

别墅类型:二层欧式现代小洋房
方位朝向:坐南朝北
图纸参数:总占地面积423.78平(含院子);其中房子占地208平,院子215平。院子宽15.76米,深26.89米;主体宽15.76米,深13.1米。砖混结构,主体造价预算33万。
造型设计:包括院子外墙,整体采用了仿真外墙漆饰面,用深浅不一的黄色做出仿砖立体感。西面厨房向外延伸2.8米自然形成了门厅的造型。玻璃护栏、时尚外墙灯,简约大气。

方先生不同于其他建房者的想法,他通过合理的设计解决了室内采光问题。巧妙地把院子大门设在靠近村镇道路的地方,入院后才能真正进到房子内。这样院子也有了,停车的地方也有了,一举两得。

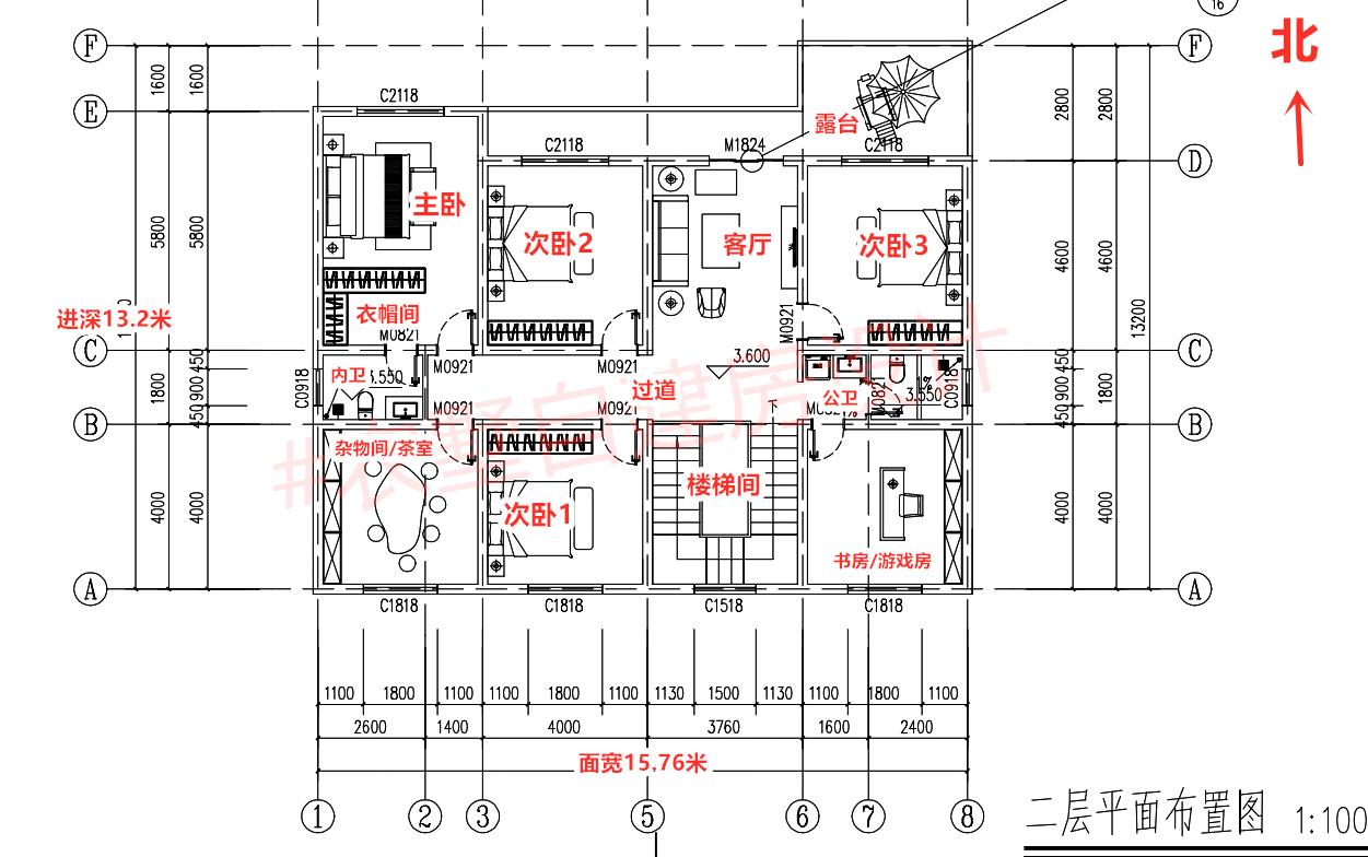
详细施工平面图:布局总共6室3厅4卫,其他功能区有棋牌桌、杂物间/茶室、书房/游戏室;
一层楼高3.6米,从西南角的院门进来是一个宽4米的大过道,江先生平时会把车停在这里。院子非常大发挥性很强,可以适当做些园林设计增加生活情调。房子内北面属于生活区,有堂屋、客厅、餐厅和厨房。南面则是两间卧室,楼梯间的下方摆了一张棋牌桌用作娱乐。

二层楼高3.3米,布局主要以居住为主,室内总共四室一厅。西南角给老人做了一间茶室,在这喝茶听戏很是惬意。而东南角是孩子们的欢乐场所,做成游戏房后学习娱乐两不误。

在农村建房的最大特点就是可以根据自己的需求进行设计,如果你家也是这样的情况可以借鉴方先生家的设计。只要花点心思,你也能拥有一款“超多功能”的二层别墅户型。
文章到这就结束了,喜欢的朋友可以收藏起来。更多自建房设计,欢迎关注。