
别墅名称:四川绵阳赖家中式别墅
图纸编号:850
建筑面积:166.03㎡
基地面积:728.85㎡
建筑尺寸:15.24m×6.24m
占地面积:107.1㎡
户型概况:1室2厅2卫1厨1储物1多功能室1书房
建筑结构:砖混结构
土建造价:25万元(不包含室内装修费用)
别墅概况

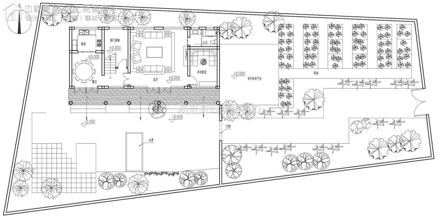
总平面示意图
项目位于四川,建筑占地110平米左右。基地东侧是村内行车主路,西侧是水池,北侧是菜地和高山。
图纸设计

一层平面图
考虑到建筑日常使用频率较少,且使用时间大部分集中到夏季,因此一层平面以公共空间为主。
客厅面积极大,南北通透,景色极佳。厨房和餐厅位于西侧,为方便使用,餐厅与室外直接连通。多功能室在奶奶入住时可作为老人房,与公卫相邻的设计也方便老人夜间使用。

二层平面图
二层廊道采用开放式设计,从房间推开门就可以拥抱夏日美景。公卫选择对位设计,方便管道布局,并且保证客厅的美观。楼梯采用长短跑形式,增加一道门,不仅保证了使用安全,也防止一层出现过堂风。
造型设计

建筑整体为中式风格,配色选择传统粉墙黛瓦,立面以真石漆为主,底部选择灰色面砖,局部点缀木元素。

建筑二层廊道为开放式设计,东、西两侧外挑形成小型露台,外挑平台通过月亮门和室外平台连通,观景空间韵味深远。

假墙的设计让外挑平台在视觉上更加稳重,也让建筑整体性更好。


前后院过渡部分采用月亮门,后院不同于前院,没有大面积绿化,两处庭院布局错落有致,美观且实用。



院墙采用云墙样式,有波澜起伏的感觉,墙上中式墙窗与绵长院墙极具大户人家的气势。


东立面图

西立面图

南立面图

北立面图