买房子的时候,老妈还一个劲的劝我晚点买,等钱攒够了买套两百平左右的房子,家里又要生二胎,小房子住着不舒服,幸好没有听老妈的,这会儿要是等钱攒够了,那一年又白挣了,房价早就涨高了。现在看着这套三房的现代风格家,装修的这么好看,而且特别显大,哪里看也不输给两百平的大房子呢!
楼盘地址:红谷十二庭44栋1单元270X 南昌 (看工地可预约~本小区其他户型方案均有哦~)
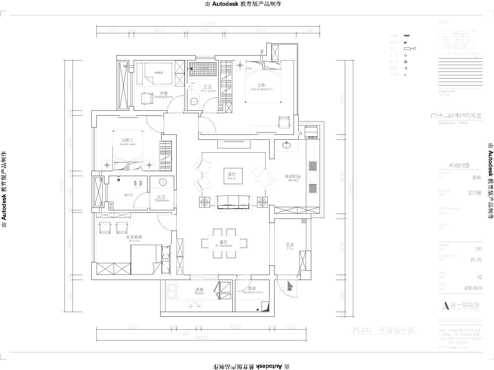
户型: 3房2厅2卫
面积:108平方
风格:现代简约
装修造价:8万 主材造价:10万

客餐厅

卧室

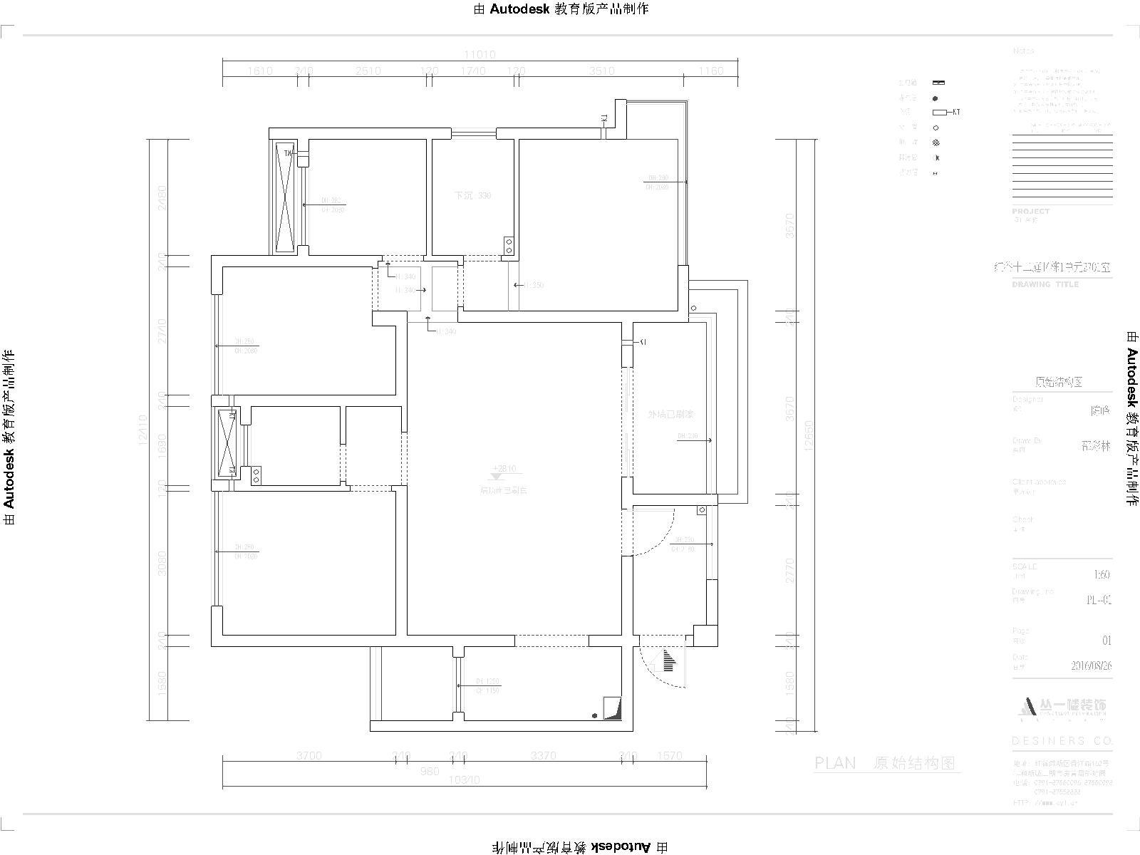
原始结构图

平面布置图
所展示工地为正在施工的工地,需要看实景工地的亲,欢迎咨询,红谷十二庭更多户型、不同风格工地正在火热开工中!
南昌各大楼盘近期交房(红谷世纪花园、联发江岸汇景、莱蒙都会、海域香廷、保利金香槟、新力雅园、中骏蓝湾、中央香榭、众森红谷一品、路通沁园、绿地国际博览城、万达旅游城....)的业主,赶紧GET起来吧!
-------我是华丽丽的分隔线--------
设计师微信:diguadou888 (仅限南昌)