北欧风格崇尚自然质感和实用功能,它可以是单调的,以黑白灰为主色,塑造出干净明朗的现代格调,也可以是多彩的,加点亮色点缀,整个空间就能活跃起来。
今天要给大家分享的这个案例,就是我们说的北欧风格,一起来看看。
简介
建筑面积:83㎡
家装设计师:卢保健
设计风格:北欧风格
项目设计:北京克洛尼装饰
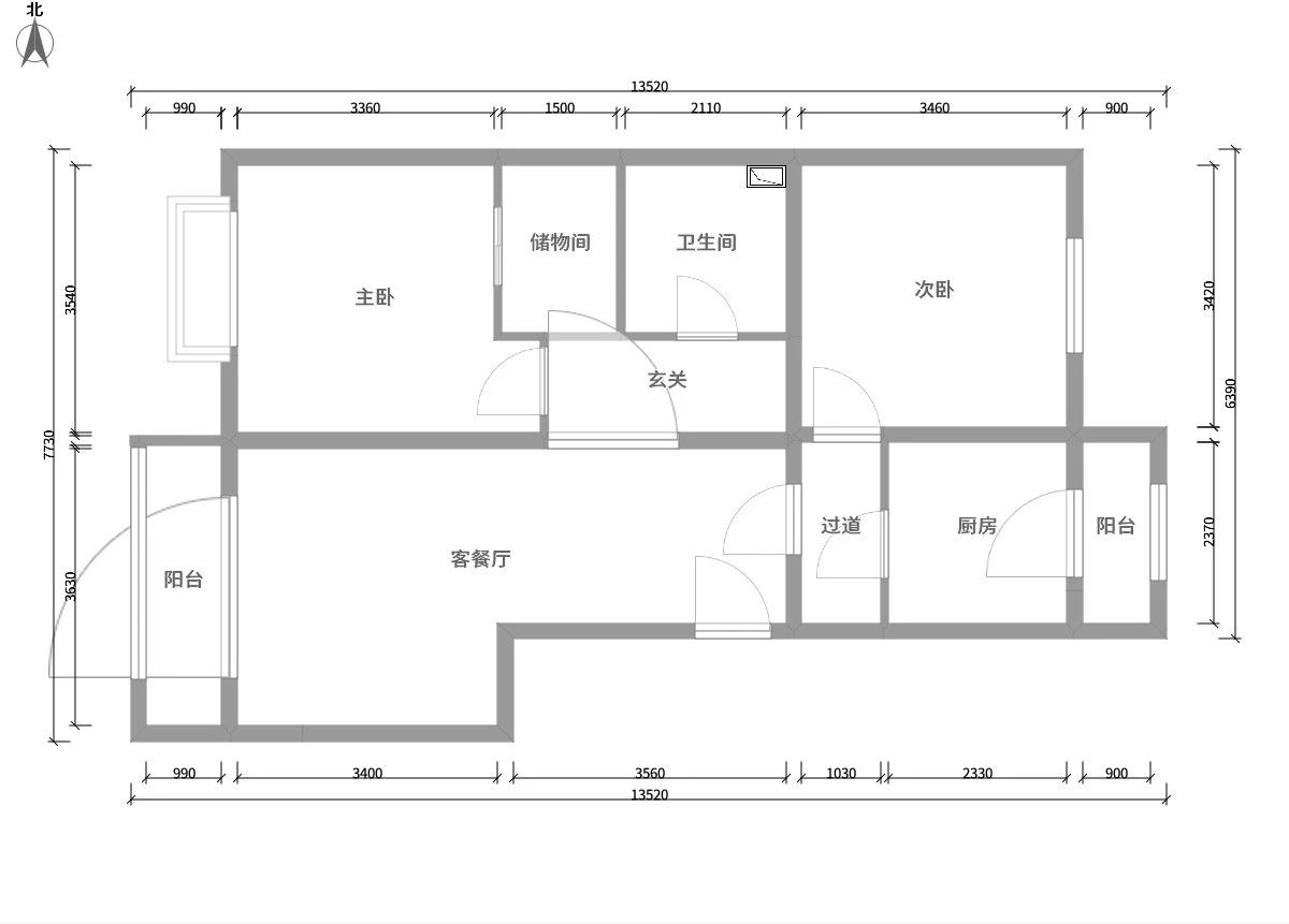
原始户型图

这是个两室一厅的83㎡小户型,设计师采用中心空间序列的手法,减弱了空间单调、呆板的感觉,运用现代简约语言,体现了室内空间的时代特质。
客厅
设计简单,布置素雅,布艺沙发、还有采光超好的落地窗,没有做华丽的吊顶,更简洁耐看。

考虑到空间感,并没有将餐厅单独隔出来。
挂画上欢快活泼的颜色、木质沙发背景墙和屋子里内敛的色调相互衬托,原本单调的感觉不见了。

电视背景墙设计非常简单,但为了提升空间温度,加入了些许木色背景搭配。
厨房
厨房采用低调轻奢的黑色进行搭配,内敛的色调加木色衬托,低调的色彩便焕发出了生命力。


这个角度可以看到餐厅、厨房还有电视柜一角,简单自然的搭配设计。
卫生间
卫生间的墙砖选用带点小元素的,加之深色地砖,再搭配木纹卫浴柜,干净整洁亮眼。

主卧
主卧的背景墙选用浅灰色调,加之柜体和植物,就能为屋主带来北欧森林的惬意放松。



电视柜和工作台的搭配设计,将空间利用到极致,屋主说很喜欢,也许这就是设计的魅力。
次卧
次卧的布置非常小清新,白色柜体提升空间品味,木色和软装点缀空间。

总的来说,这套北欧风格的案例品质感还是非常强的,配色跟软装搭配上也有很多值得借鉴的地方~