
TSING HORSE DESIGN
丨青马别墅空间设计最新案例丨

PROJECT
INFORMATION
建筑户型 ︱ 联排别墅
设计风格 丨 现代简约
项目名称 ︱ 中天诚品
施工面积 ︱ 300平米
全案产品 丨 斯米克瓷砖 迪诺德莱克整屋定制 久雅木地板 美驰门窗 怡口净水 箭牌洁具 集美科地暖 方太电器 华为智能 施耐德开关 汉格家具 艾尔西软装

> 设计师吕高飞 :整体空间以清爽的原木色为主色调,力求简约中凸显细节的线条之美,让人释放所有压力。通过光影效果的展示给人舒缓温馨之感,鼓励人与空间、与环境的互动,力求提供一种情感和视觉平衡的感受体验。
THE RESTAURANT
一层客餐厅
QINGMA DESIGN
ACHIEVE VILLA LIFESTYLE



>
客厅空间由内而外散发出舒适与高级
带有温度感的米色,唤起淡淡的优雅精致氛围
光线透过纱帘洒进屋内,此情此景温柔惬意至极
打开餐厅与客厅,最大化利用空间
增加空间的互动性,增进家人日常沟通与情感交流
舒展轻快的氛围盈满其间,开启自在休闲的用餐体验
MASTER BEDROOM
二层卧室
QINGMA DESIGN
ACHIEVE VILLA LIFESTYLE


>
二楼卧室床头背景墙采用木色护墙板设计
简单的线条凸显空间立体感,轻松提升卧室氛围和质感
给人一种温馨的安稳,让空间充满了舒适的优雅
SECOND FLOOR STUDY
二层书房
QINGMA DESIGN
ACHIEVE VILLA LIFESTYLE


>
大气文静的中性色打造这间书房
不同材料的线条与纹理带来精彩视觉体验
搭配设计师款时尚单椅点缀
给空间增添了有趣的多元性
MASTER BEDROOM
三层主卧套
QINGMA DESIGN
ACHIEVE VILLA LIFESTYLE


>
简洁的线条、统一的色彩搭配
无不显示出居者对于简单生活的追求
这也是设计师的本意,虽简约时尚却将空间功能性发挥极致
在舒适的私密空间里遇见柔软的浪漫氛围
THREE STOTY STUDY
三层书房
QINGMA DESIGN
ACHIEVE VILLA LIFESTYLE

>
落地窗隔绝喧嚣,唯留一幅静谧的自然画卷
将悠闲雅致的氛围带入空间,彰显舒适的气息
线条纹理自然而随性,简约的精致便是空间最好的状态
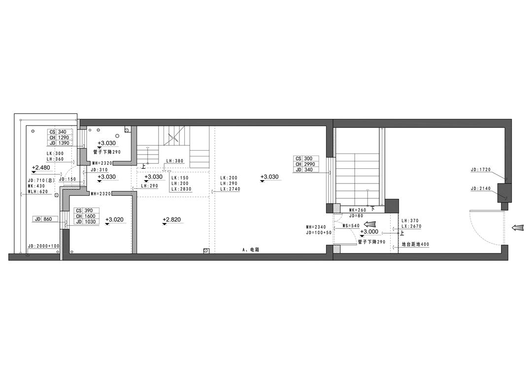
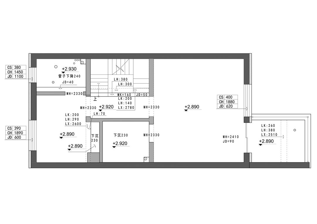
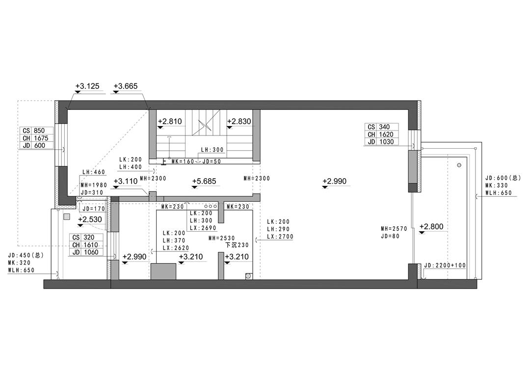
PLANE LAYOUT
平面布局
QINGMA DESIGN
ACHIEVE VILLA LIFESTYLE

1F平面布局图

2F平面布局图

3F平面布局图

4F平面布局图
INFO
- 主案设计 -
吕高飞
- 工程管家 -
杨明
-客户经理 -
武佳丽
- 设计公司 -
青马别墅设计
-
DESIGNER OF THIS CASE
设 计 师
QINGMA DESIGN
ACHIEVE VILLA LIFESTYLE

吕高飞
青马设计主创设计师
园林景观设计师
家居艺术设计师
从事室内设计专业18年
资质
西安市装饰业协会设计专业委员会会员
禅家居专业委员会名誉会员
ICDA国际室内注册设计师
海尔智慧家特约工作室
居然之家顶层精英设计师
陕西广播电视台98.8《设计师说》栏目特约设计师
陕西广播电视台98.8《拜托了设计师》栏目特约设计师
室内装饰行业从业17年以上,专属大宅全案设计
设计理念
设计灵感源于生活,只有属于生活的设计,才是真正的好设计。
殊荣
2016年作品《佳境》荣获“京瓷杯”网络大赛一等奖
2016年荣获“搜狐焦点奖“一等奖
2017年担任“金腾奖”西安赛区评委
2017年中央美术学院设计学院进修
2018年“老板杯”设计大赛入围奖
2018年出任“2018中国陶瓷新品汇”设计师评审团评委
2018年台湾亚洲大学进修
2019年荣获WDYF2019年大中华区100大杰出青年设计师
2019年荣获“中国住宅设计精英榜”优秀奖
2019年作品《禅思静谧》会所荣获 IDPA中日国际先锋设计大奖
2019年作品《一物一置》荣获“海尔智慧家庭”杯
第二届中国室内设计冠军赛西安赛区,金葡萄奖
2019年德国高仪·中国住宅设计精英榜,陕西榜单优秀奖
2019年荣获广州设计周 WYDF
2019大中华区年度100大杰出设计青年
2020年作品《一递一声》荣获芒果奖别墅类陕西唯一入围奖
2020年作品《生活精简》荣获“自然 共生”G+设计精英大赛荣获佳作奖
2020年作品《融创御园》荣获“原点明珠杯”陕西省第十一届室内设计大赛铜奖
2021年作品《万达·ONE》荣获第十届筑巢奖优秀奖
2022年作品《追光》荣获红棉奖2022优秀艺术空间设计奖
2022年荣获金堂奖2022卓越设计青年
案例
曲江大城华宸,揽月府,山水美树,
绿地国际生态城,龙湖香醍国际蓝湾,中天诚品,
曲江华著中城,中天诚品,东原印未央,
白桦林溪,白桦林团圆,未央金茂府,榆林红枫苑,
中海铂宫,曲江紫汀苑,曲池坊,
金地湖城大境,曲江和园公馆,
南湖九号院,曲江御宾府,紫楹台,
自然界,枫林九溪,紫薇花园洲,高科新花园,
中华世纪城,融侨城,兰亭坊,逸翠园,
海珀香庭,丹轩梓园,兰池郡,阳光城壹号,
临潼骊山花城,骊山下的院子等
其他代表作:重庆海宇西苑,重庆缙云山小区,
重庆紫楹台别墅,安康私家别墅,榆林自建别墅,
道咖咖啡,老三届某建筑公司办公室,盛龙广场某建筑公司办公室等。