
项目名称:吴江君悦半岛墅
建筑面积:380㎡
设计风格:简欧风
设计师:石磊
☞ 风格说明:
家是心灵的港湾,本套“现代简欧风”以其纯美的色彩组合、精巧的居家布置,赢得了主人对它的喜爱。设计师以“现代简欧”为主,彰显了业主对简单,自由的需求,同时又通过大理石、吊顶、高级定制家具、灯具、装饰等,彰显主人的品位及身份。
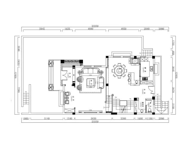
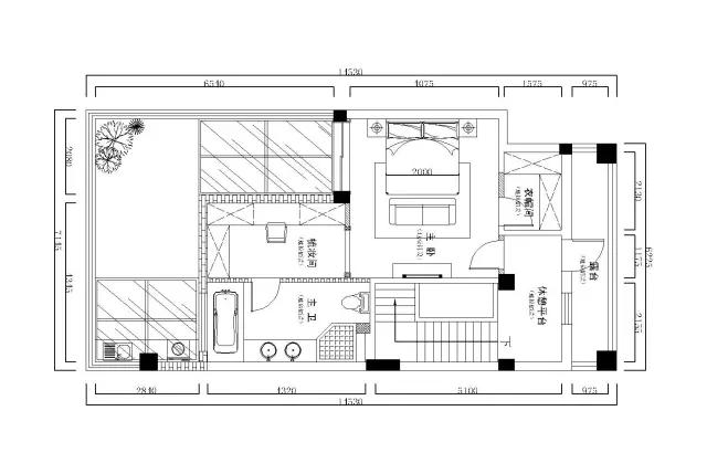
平面方案

地下室

一层

二层

三层
效果图

玄关

客厅
整体色调以浅咖啡色为主色调,体现出家的温馨和浪漫,与白色线条、造型相呼应,硬装部分设计大篇幅的简化,更注重于软装配饰、灯光与自然光的运用。

餐厅
浅卡其色地砖,配以白色沙发和顶面,周边则选用卡其色装饰,优雅大气。

此案卧室设计较为温馨,体现主人的私密空间,主要以功能性和家的舒适性为设计重点,通过吊顶、灯光相互融合的设计,局部的软包为衬托,将主人的生活品质与审美完美融合。
本案设计师


石磊Sams Lei 高级设计师
主要获奖经历:
国家注册高级住宅室内设计师
中国室内设计师联盟会员,
中国资深室内设计师,
高级软装陈设设计师
2012获得设计界“奥斯卡”金琮奖
2013荣获简一大理石瓷砖“最佳设计奖”
2013年作为世界室内设计大会中国代表团成员远赴荷兰获得“精英人物奖”
2014搜房首届室内设计大赛获得“优秀设计作品奖”
2014年苏州首届室内设计达人“优秀作品奖”
2014年第二届“日立中央空调”室内设计大赛“别墅组铜奖”
别墅作品:
《水墨江南》、《仁恒观棠》、《长风别墅》、《中海爱丁堡》、《绿城御园》、《奥林清华》、《中信森林湖》、《湖滨四季》、《融创81栋》、《现代园墅》《翰林府》、《银丽高尔夫》、《清水湾》、《水岸清华》、《奥林清华》、《御墅临峰》、《君悦半岛》等
更多精彩别墅设计尽在朗誉别墅装饰