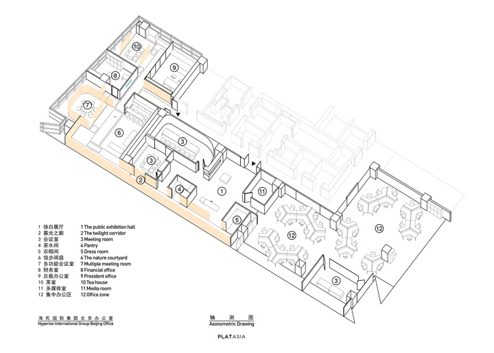
海氏国际集团北京总部办公空间由PLAT ASIA设计团队打造。设计从空间使用者心理感受出发,强调空间的公共性,以释压和精神恢复空间为设计目的,以日常与非日常体验为设计手法,将空间展开为集中办公、馀白展厅、信步闲庭和暮光之廊四个部分。
设计:PLAT ASIA(北京)
设计团队:郑东贤 DH JUNG(主创设计师)、刘国伟(项目设计师)、练敬韵、肖东升、刘鑫威
地址:中国 北京(亦庄)经济技术开发区大族广场
面积:604 平方米
设计时间:2018年12月~2019年1月
竣工时间:2019年6月
家具品牌:梵几、美喆
主要材料:木格栅、混凝土涂料、石塑地板、石子
摄影:存在建筑-建筑摄影
Tags:贸易,中国、心理感受、展厅、光影、极简
跨国贸易企业海氏国际集团北京总部办公空间位于位于北京亦庄的一栋高层商务写字楼内,由PLAT ASIA设计团队打造。空间自西向东由集中办公区、馀白展厅区、暮光之廊区,和信步闲庭区四个部分组成。设计关注办公空间中人的心理感受和释压途径,期望以此实践提出一种未来办公的设计方向。

从解决负情绪和负压开始的设计
办公空间除了发生创造、输出的行为,产生收获,认可的正向情绪,事实上,负面情绪常会不期而遇。我们的项目就以这种应对负面情绪的目的作为起点,在当代大密度空间、高速率节奏、多信息流量的城市中,面对如何在熙攘忙碌的办公室释放压力,建筑师从工作这一日常行为开始思考,为了释压,克服消化工作中的精神重负,事实上,我们在非日常的场景中更容易获得身心的放松,所以,当办公空间能同时激发日常与非日常两种行为方式,那将是针对工作状态中人的心理释压与行为解放的极佳解决方案。


絮语时序,馀白空间
馀白展厅是进入场地的首个空间,也是和其西侧日常的办公区颇具反差的非日常公共展厅空间。这里集合大小两间会议室,茶水间,衣帽间和备用间五个功能体块。这一展厅理念源自业主公司主营业务的启发,贸易是一种易物的过程,其中伴随并最终形成文化的传播,故此,空间以美术馆中的五个独立的混凝土展厅体块为原型,被隐藏入口的盒子分布其中,点以长凳和置放艺术品的展台,仿佛置身真实的美术馆,人是空间的主角。极简的结构肌理和灰色调的线条勾勒以宁静的氛围和内敛的处理让人获得一种精神的重置,馀白空间纯粹无焦点,以足够的尺度触发偶然的邂逅絮语和安静思考的归属感。




信步闲庭,交口众言
作为非日常的一种延伸,精神的自由度可以在展厅空间释放,行为的自由度和多元的交流事件则发生在以自然庭院为理念的信步闲庭区。空间以山水石池为底色,阡陌纵横,休闲吧台,多功能会议室,财务室,茶室和总裁办公室秩序性地布陈石子池中。会议室如岛屿般独立于石池,格栅闭合可开私密性会议,打开则是开放的多功能舞台;半开放的茶室两侧格栅林立,虚实相间。庭院以一条主轴通道贯穿南北,区域西侧的VIP入口以独特的走廊设计接入主步道闲庭信步的路径。



行驻之间,光影之廊
空间北侧是俯瞰城市风景,狭长且具有透视感的格栅廊道,从馀白展厅到信步闲庭的室内唯一通道。我们以极致夸张的手法拉长这一走廊,沿着玻璃幕墙的整面格栅将城市景观虚化,缓和冰冷的玻璃钢结构建筑外立面,将自然光线剪入室内。薄暮时分,阳光倾洒,在地面刻出一道道阴翳,源自自然的时光变幻给穿越悠长廊道的场景以仪式性的行为体验。暮光之廊赋予空间一种精神意象和哲思意味,带来一种细察于微的空间感知,撷珍光影,行驻之间,获得精神的恢复。





猜您喜欢:中国各地更多时尚办公空间——
1、2019时尚办公空间集锦~北京篇
2、2019时尚办公空间集锦~上海篇
3、2019时尚办公空间集锦~广东篇
4、2019时尚办公空间集锦~中国篇
供稿:PLAT ASIA,来源:时尚办公网popoffices,转载请注明,谢谢!