
设计师:郑超
小区:泰丰观湖
风格: 简欧
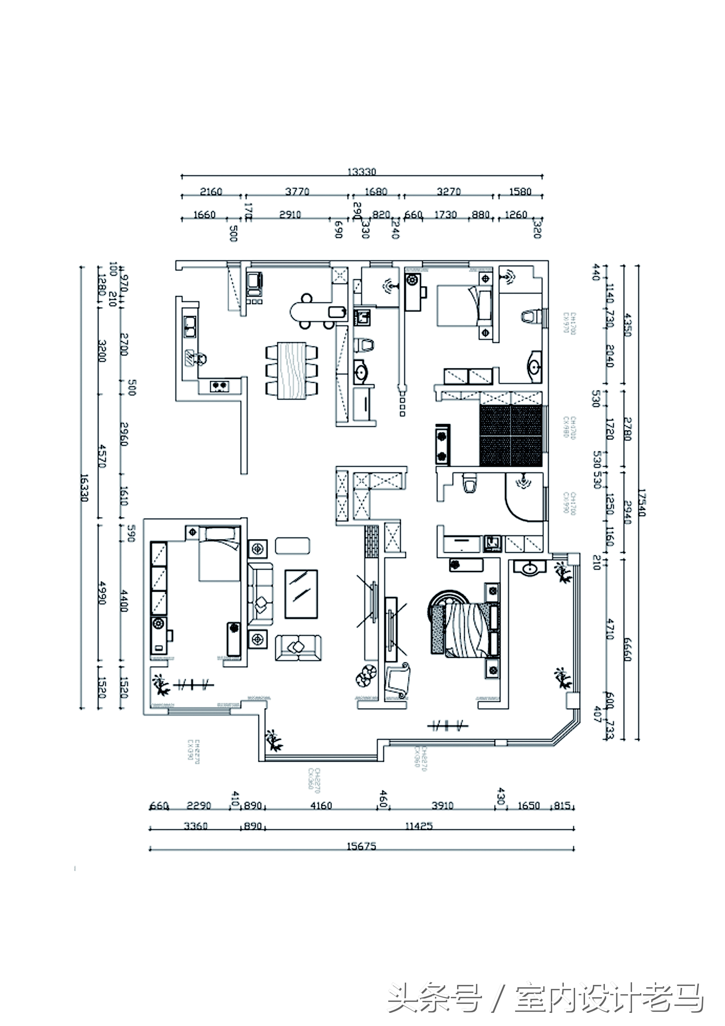
户型:四室两厅
面积: 281

玄关:设计遵循简单大方的同时又带有古典欧式主义风格。

客厅:通过家具及装饰画的色彩搭配突出明显的风格特点。

餐厅:整体风格色调和客厅一致,体现设计上的统一感。

主卧:典型的欧式家具和颜色,配以纯白顶角线,体现古典又大气的简欧风格。

次卧:床头壁纸和整个屋子的设计完美搭配,典雅中带有一些小资情调。

女儿房:屋内所有家具设计,渲染了甜而不腻的精致少女风。

书房:仍旧是典雅的感觉,但色调明显偏冷,给人以冷静但舒适的感觉。

卫生间:完美合理的干湿区分离,强大的收纳设计,人性化的设计安排。

阳台:根据客户需求,量身设计,复古典雅且舒适合理。

如果您对小编的装修设计还满意,并且您有装修需求,可以私信小编。