对于爱猫一族来说,家里的“主子”似乎并不是“宠物”,而是家人一般的存在。每天下班,抱着疲倦的身子回家,总是会有傲娇蠢萌的“主子”,在家等着你,生活中的疲惫,似乎也轻了许多。
广东深圳的这对夫妻,因为太爱猫了,将100㎡的家,改造成一个“猫屋”,入户日式风,人和猫咪共存的小家,显得简单又耐看。

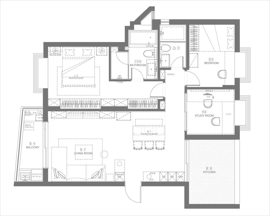
▼户型情况及设计理念
本案设计坐标深圳,是套100㎡的楼房,户主是对年轻夫妻,家里还有两只叫做@茶茶和@硬糖的猫咪。在装修时,户主就希望家里能拥有“属于猫咪的空间”。
因此在设计之中,设计师以“猫的动线“为主,从功能本质出发,打造了一个日式风的家,更像是一个清新又自在的“猫屋”。

▼入户玄关
和普通人家的玄关不同,本案玄关融合了“收纳”+“猫爬架”功能。玄关既是一个收纳空间,也是属于猫咪的猫爬架。以原木定制式的设计,整个玄关,拥有一体式的换鞋凳和挂衣区。
并且上方柜体是镂空式的柜门,即便猫咪趴在上方休息,也不显得憋闷,小小玄关成为了猫咪的休憩之所。

▼空间布局
在空间布局之中,以开放式的格局为主,从玄关到餐厅,再到客厅,整个空间显得开阔敞亮,既符合了“猫屋”的特性,让猫咪拥有充盈的活动空间,也让整个家显得特别整洁利落。


▼空中跑道
从玄关再到客厅,设计师利用了原木结构,构筑了一个空中跑道。猫咪可以沿着猫爬架,直接跳跃到空间,再通过桥梁形的跑道,漫步到电视柜顶部,再沿着猫洞,步入电视柜内部。
这样的完美设计,让玄关柜+电视柜,都成为了猫咪散步的好地方,并且通过猫洞,还可以看到猫咪的活动踪迹,真的十分有趣。

▼原木客厅
步入客厅之中,可见一派简约之风。一组定制式的电视柜+浅灰色的大沙发,组成了客厅里的惬意感,白墙+原木的搭配,让整个客厅,简单之余,又有舒心的舒适感。

▼天花板上,以嵌入式的灯带+筒射灯作为采光,既让猫咪的动线空间拥有温暖的光线,也让整个屋子,处处都萦绕着一派敞亮的光感。


▼舒适之美
相比于传统运用了大量瓷砖和线条的家,本案客厅仅以“简约”为美,满屋子的木地板,以及组合式的茶几,还有小小的花架,都成为空间里的点缀,它们以柔和的自然纹理,赋予了空间舒适的氛围。


▼害羞的@茶茶,正趴在天花板上,伸着懒腰。

▼慵懒姿态
不论是人还是猫,都可以通过不同的视角进行沟通。家里既有属于主人的舒适氛围,也有属于猫咪的慵懒之态,它们可以跳跃、漫步、或者慵懒地躺着,每一个空间都显得舒适自如。

▼餐厅设计
餐厅空间的设计,更为简约。一组原木风的餐桌,搭配一个日式风的餐边柜,最后再点缀了两盏木质吊灯,属于餐厅的舒惬氛围,便被轻松营造出来了。用餐的时候,脚下还有猫咪摩挲,真的幸福感十足。

▼主卧设计
走进主卧空间,更见一派轻奢之感。墙面粉刷了一层莫兰迪绿的乳胶漆,而背景墙上则以同色系的壁纸进行修饰,犹如花砖一般的墙纸,赋予了空间更为轻盈曼妙的姿态。


▼藤编式的大床和床头柜,都以木质原生态的美感,赋予了空间一丝宜人情调。

▼主卫设计
主卫空间的设计,加入了细小的绿色小瓷砖,搭配墨绿墙面,形成了一派舒适的居家氛围。再加上一个超大的浴缸设计,整个空间显得特别有日常幸福感。

▼次卧设计
次卧空间的设计之中,以榻榻米床板为亮点,这床铺下方可以存放衣物。再加上一组原木风的书桌书椅,自然温馨又有温度。等有了宝宝之后,这里未来还可以改造成一个儿童房。

▼书房工作区
而书房工作区的设计,则以男主人的爱好为主,墙上挂置了许多洞洞板,可以存放许多小小的工具和物品,还有几组金属+原木定制而成的书架上,上方摆放了许多男主人珍藏的“键盘”。


▼次卫设计
次卫空间的设计,则以小方条的瓷砖为主,和主卫进行了呼应。同时还加入了一道玻璃隔断,进行了干湿分离式设计,既有颜值,又有舒适性,这样卫生间,才算好。


▼平面布局设计图

对于爱猫一族来说,一个人和猫共存的房间,真的是一个理想中的家。单调的都市生活之中,因为有了喵星人的陪伴,似乎每一天都能拥有幸福感。
那么,今天分享的这个“猫屋”设计,有打动到你吗?欢迎评论区,分享你的观点。