楼盘名称:瀛洲湾
设计户型(面积):130平米
设计风格:现代简约风格
工程造价:全包15万
主材品牌:李洋地板、蒙娜丽莎瓷砖、航标洁具、红牛橱柜、光芒集成吊顶、戴胜木门等。
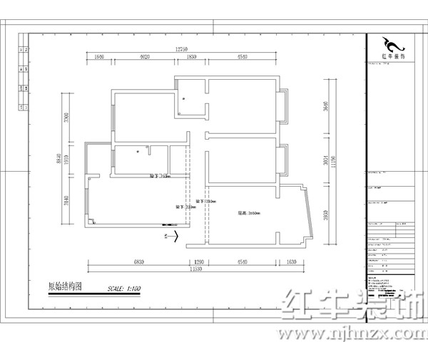
改造前建筑缺陷:该户型南北通透,客餐厅的两个大窗户采光通风也是很舒服的。充分利用过道空间 扩大储藏空间
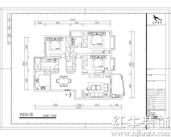
方案设计说明:装修上面通过简单的装饰提升北欧的空间感,后期通过家具窗帘墙纸窗帘等来营造整个空间的氛围。风格简化的处理更具有生活化,通过明亮的色调,从视觉上营造出大空间的美感。

三室两厅现代简约设计风格一简约舒适温馨的家居生活

三室两厅现代简约设计风格一简约舒适温馨的家居生活

三室两厅现代简约设计风格一简约舒适温馨的家居生活

三室两厅现代简约设计风格一简约舒适温馨的家居生活

三室两厅现代简约设计风格一简约舒适温馨的家居生活

三室两厅现代简约设计风格一简约舒适温馨的家居生活

三室两厅现代简约设计风格一简约舒适温馨的家居生活

三室两厅现代简约设计风格一简约舒适温馨的家居生活

三室两厅现代简约设计风格一简约舒适温馨的家居生活

三室两厅现代简约设计风格一简约舒适温馨的家居生活

三室两厅现代简约设计风格一简约舒适温馨的家居生活

三室两厅现代简约设计风格一简约舒适温馨的家居生活