这两年,房地产行业变化很快。从青岛市场来看,很明显的变化就是改善成交比例在不断上升。尤其是今年,青岛已进入“大改善”时代。
对于改善需求来说,心照不宣,“有天有地”的城市墅居生活比大平层更胜一筹,也是大多数中国人的居住梦想。
然而,随着城市的不断开发,土地愈发稀缺,鳞次栉比的高楼越来越多,拥有低密宜居属性的城市墅区愈发难求。
尤其在青岛,这样的机会寥寥无几。

墅居扛鼎,改善顶流
从市南、崂山到市北、李沧,几乎都是高层产品为主。以市北、崂山为例,在售的主要楼盘,几乎全部都是大高层,容积率普遍在3.0左右。李沧算是市区里面土地储备比较多的,但在售楼盘中,容积率低于2.0的也是非常少。有两家容积率在1.8左右的,做的产品也是普通小高层。
随着城市土地政策的不断收紧,青岛低容积率的住宅用地日渐消失。2022年,青岛有关部门出台的《关于规范低多层建设项目管理的通知》意见稿,严禁以任何形式安排别墅类用地,居住用地等合理确定建筑层数。这也意味着,低密墅区更加稀缺了。

叠拼等低密产品业态已然成为难得的“奢侈品”,青岛墅居已进入稀缺时代。中高端需求抓紧上车稀缺别墅,是明智选择,也是大势所趋。真正能满足纯粹主城高端墅居需求的产品几乎没有,可以说是“金字塔尖”的存在。
相比之下,有些楼盘偷换概念,把五层、六层洋房拿来做复式产品,冠以叠拼名义,实际舒适度、私密性要低很多。在当下青岛楼市,能满足低密舒适、超低容积率、空间功能合理、房企靠谱等这些标准的低密墅区寥寥无几。
目前,青岛在售低密“真”叠拼项目屈指可数。改善家庭对于进出动线、独立性、私密性的高度注重,也直接向叠拼产品力提出了跨越性的要求。
所幸,每个时代总有*局破**者,无论市场宏观环境如何,总能以全维卓越的产品表现征服市场,引发行业内外的高度关注。近期,青岛低密改善市场的爆炸性话题之一,就是 中联·云裳 的闪亮问世。

灵山湾芯的稀缺真叠拼!
经济学家马光远曾说过:“稀缺,永远是判断价值取向的唯一原则。”对于一个项目而言,稀缺也是当下吸引购房者的核心竞争力。何谓稀缺?
第一,对资源的绝对占有;第二,打破常规、具有创新性的产品;第三,数量稀少。从以上三个维度来看,中联·云裳的稀缺低密叠拼可谓满足了市场定义稀缺产品的所有要素,成为爆款也是理所当然。

区位图
从地段看,中联·云裳位于西海岸灵山湾核心位置。项目周边途径三条地铁线,东邻兰东路,往南连接滨海大道,交通便利;项目一路之隔就是西海岸生态观光园,北侧为小珠山,背山面海,拥有绝佳生态资源。中联·云裳的叠拼产品则处于项目的核心位置,又占有了城市的顶级资源。
众所周知,前几年,灵山湾的土地供应充足,也曾陆续出现过低密楼盘,但经过不断去化,已经越来越稀有了。而且,这两年规划审批新要求也不再新批四层叠拼。可以说,中联·云裳,在恰到好处的时间,于不可复制的区位,撑起灵山湾绝版叠拼应有的高水准定位。
中联·云裳,四层纯叠拼,住宅区域容积率只有1.26,真正的低密墅区。容积率更低,在叠拼的排布和景观的打造上会更游刃有余,不仅提高了居住的纯粹性,保证视野感觉和采光效果,更是扩大了人均资源占有率。为了保证极致低密血统,中联·云裳叠拼也仅呈现92席。
对市场层面而言,片区内可选择的四层叠拼产品日益稀缺;对购房者更实际地来说,同样总价预算,未来只能退而求其次选择高层。

效果图
每一座划时代的超越之作,背后总有无可替代的产品辩识度做支撑,中联·云裳四层纯叠拼,也与市场过往叠拼产品形成了鲜明对比,更具竞争力,产品力更强。
中联·云裳,无改造主义4层原生真叠墅,有天有地,天空露台、户外花园、私家地下空间、双入户归家动线等突破性创新,处处都透露出产品力的“高人一等”,还展示了其对空间的深度思考。
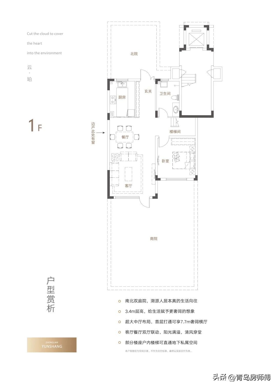
【下叠168㎡】


下叠建面约168平,地上两层, 赠送负一层 ( 层高约5.1—6.5米,隔两层阔绰有余 )。一楼层高3.4米,超大中厅布局,打通最大可享约7.7米奢阔宽厅;二楼层高3.1米,双南卧设计,南北双阳台,主卧套房自带阳台。 北向书房带大尺度阳台,纯赠送,封闭之后,可以是孩子的游乐区、成长学习区等等,满足家庭成员的不同需求 。

效果图
另外,喜欢种花的朋友可以重点考虑下叠产品,因为下叠拥有私享庭院,南北双院,边户更是独享边院,呈C型半包围结构。
【上叠175㎡】

上叠建面约175平,除了层高、入户花园等亮点外,最大优势就是四层的南北双露台,极致通透,附加值高。 整体上看,上叠更加强调居住舒适性,主卧套房,自带卫生间且南北通透,自带私享大露台,起居更奢侈;北向书房也有大露台,可做室外茶室。屋顶大露台就是“空中花园”。

效果图
最后向大家透露一个特别重要的细节。中联·云裳主打“无改造主义”原生叠墅。市面上有些叠拼产品交付后需要二次改造才可以具备完整功能,有“违建”风险,费时费力费钱。中联·云裳叠拼产品交付即功能齐备,正常装修即可,没有其他风险。
这种在产品上的洞察与远见,足以证明中联·云裳叠拼组团,在用户思维已经提前抢跑一程,而这种产品视角,也必将是地产下半场的制胜绝招之一。

爆款选择,错过再无!
无论是组团1.26容积率的稀世低密,还是空间尺度带来的全维进化,又或是注重用户思维的产品理念,中联·云裳4层真叠墅,都属于学霸级选手,注定将成为高净值人士眼中的改善“白月光”。
这两年,有些高周转企业逐步掉队,买房的安全感问题凸显。在这方面,中联·云裳则独具优势。

效果图
中联建业集团,本土实力房企,深耕青岛25年,青岛人的专业城市运营商。是集多元化产业于一体的创新型复合型的企业集团,拥有强大的复合开发能力和综合运营能力。开发项目达200余万方,同时自持运营5大专业综合体育场馆,并成功运营10大自持商业办公产业园区等等。
目前,中联旗下崂山大盘中联依山伴城已经全部如约交付,兑现力有目共睹。唐岛湾板块高端盘中联和府去年也是按时高质量交付。
毫无疑问,中联·云裳,真正品质优越的城市第一居所。一套叠拼,除了承载生活的日常居住功能,更扮演着家庭财富管理的“压舱石”。中联·云裳叠拼组团,开启了叠拼改善的全新时代,仅92席纯萃呈现,也注定是圈层角逐的稀缺之作。
这样的稀缺产品,真的不容错过。