悦青蓝楼盘即将交付,牛牛菌特地拜托了设计大咖艾莉免费为这里的业主们以悦青蓝D户型90方户型图为原型,设计了一套北欧风装修方案。

--户型档案--
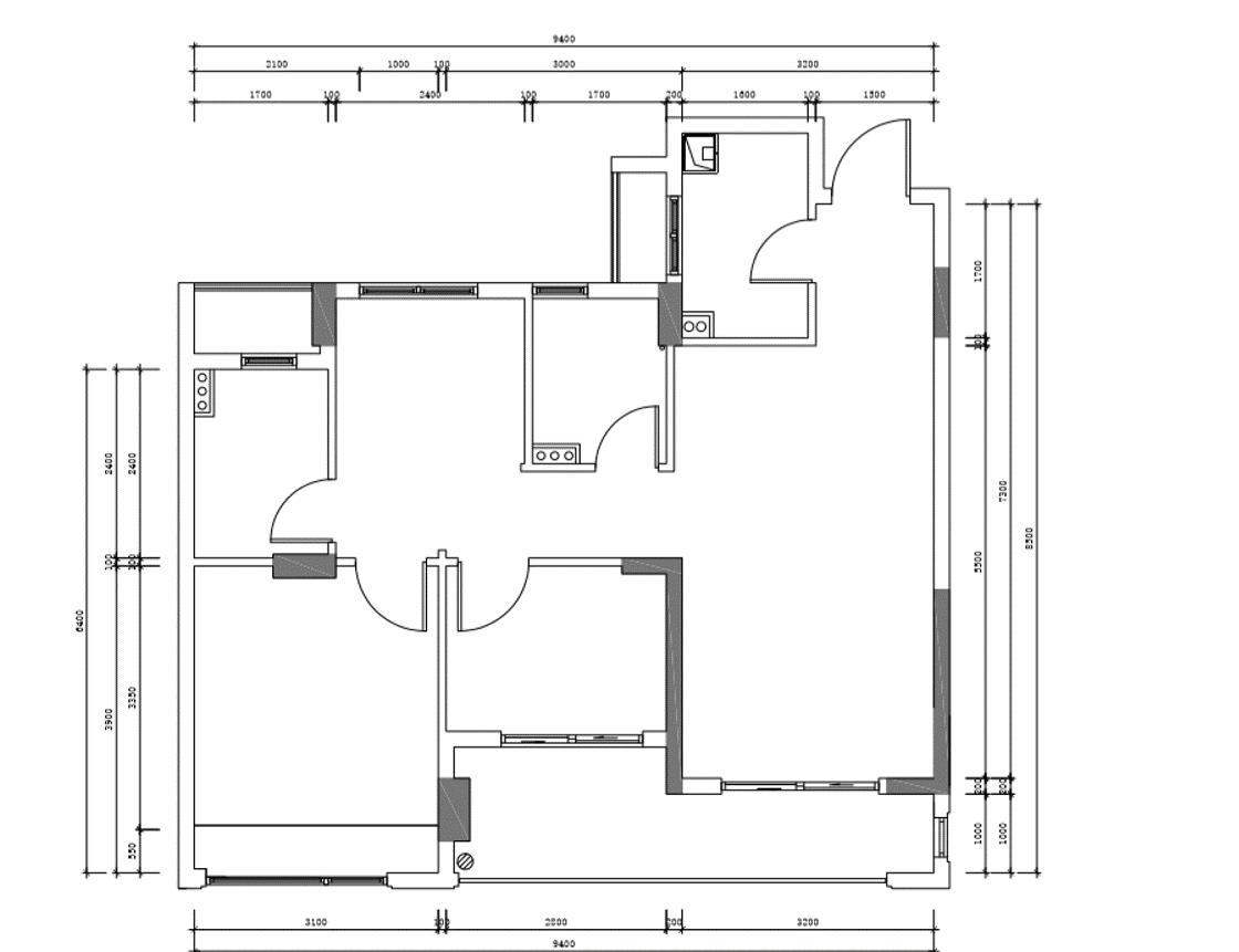
项目面积 | 90㎡
户型 | 3室2厅3卫
风格 | 北欧
本案设计师艾莉说:小户型的空间最重要的是对体量、体积的控制,通过色彩、造型等创意去充分的利用每一寸空间,以达到让屋主居住舒适、幸福的目的。

户型分析:
1、原户型被各个小空间严重切割,导致空间视觉感上狭小;
2、过道冗长,进一步的占据了使用空间;
3、次卧面积太小,且有一根承重柱,极大的影响美观。

改造思路:
1:建立隔墙增加一个榻榻米房间,将一个卫生间并入主卧,缩短公共通道的长度。
2:将阳台一半归入次卧,扩大次卧面积,提升次卧舒适度。
-- 设计师说 --
北欧风格不循规蹈矩,只遵循“以人为本,取法自然”的设计初心,注重实用主义与环保性,在简洁与个性中,让生活空间散发艺术的光辉。
色彩解析:
空间配搭着暖灰色墙面。沙发、餐椅、地毯、窗帘等内饰配以缤纷的色彩,黄、绿色被运用到抱枕上,融汇出了一个缤纷活泼、简约现代的开放式空间。

材质解析:
从家具的选购与色彩以及布品的搭配、协调,采用对称的方式,随处可见的几何元素,力求让每一个细节的铺排,都释放出令人感觉舒适的气氛。

-- 玄关 --
在进门处采用灰色瓷砖拼铺,配合厨房推拉式玻璃门,给与过道与厨房创造出一个大开放空间视觉。

屋主回家换鞋后,可以很方便的把鞋子踢进底部镂空的玄关柜下,柜子上可以随手搁置包包等常用物品,而墙壁上设置了挂钩方便衣物帽子的收纳。
-- 客厅 --
客厅背景墙以白色与灰色的拼色处理,配上PU造型线,简洁、干净而不单调。
圆形几何吊灯和圆乎乎的懒人沙发相呼应,营造舒适自然的北欧风情。略带意大利风格的靛蓝色沙发与胡桃木色茶几完美融合。

实木色电视柜兼具颜值与实用,搭配些许绿植与装饰便森系感十足。
忙碌一天到家,沙发恰到好处的舒适坐感,让人一坐下去就有一种被包裹的安全感,伸手即可够到茶几上的零食与遥控器,翻出自己喜爱的节目绝对是对忙碌一天最大的慰藉。

-- 餐厅 --
双拱门造型+拱形银镜,很好的缓解了双过道给餐厅带来的局促。

餐桌选取大理石台面材质,精致耐用;搭配橙色皮质餐椅和餐边柜,点亮整个空间。

-- 厨房 --
狭长型的厨房借助原建筑犄角做了异形L型操作台,配上集成燃气灶省出了许多的空间。橱柜配上吊柜提供充足的收纳空间,能够满足屋主的日常食材收纳需求。

特制超大玻璃门,视觉上将玄关位置纳入厨房,加深厨房视觉深度,有效的提升厨房的通透感。同时与旁边拱门的黑边造型相呼应,简洁美观。

-- 主卧 --
主卧在过道上加门,将一个公卫并入主卧,不仅缩短过道长度,还增加了卧室的整体使用空间,方便屋主日常起居。

整体色调以灰色系为主,原木色床呼应金色分子吊灯与背景颜色产生强烈的视觉碰撞,一下子激活整个空间,让人觉得温暖。顶天立地的衣柜不仅带来庞大的收纳空间,同时也非常便于打理。

灰色地面结合白色墙面,部分几何纹理处理,让整个卫生间高级感十足,靛蓝色盆柜与黑色的五金小件相呼应,创造出极强的空间层次感。
-- 次卧 --
次卧面积较小,因此打掉飘窗能够多省出好几平的使用面积,此外有一个柱子不能弱化,直接以柱子为分界线,填上两种高对比的色块,来弱化柱子的存在感,同时增加空间的层次感。再配以暖黄色的床品及金属感灯具,色块相互交错,有趣感层层上升。

-- 榻榻米 --
榻榻米由原本的小杂物间改造而来,集书房、客卧多功能于一体,有亲戚留宿也不用担心没有地方。
房间虽小,但功能齐全,充分利用立体收纳原则,整合抽屉、书桌、榻榻米区域,提供足够的收纳空间。

-- 卫生间 --
卫生间地面采用灰色瓷砖,而墙壁选择白色系瓷砖,营造简洁、干净的空间感。黑色边框淋浴房搭配一系列黑色挂件在一片灰白色系中凸显出满满的高级感。

-- 说在后面 --
本案秉持着“以人为本”的设计初心,让北欧风格所呈现出的空间效果,明快、舒服、随性,有生活气息,十分契合现代人追求舒适、简洁的生活方式。

喜欢这个方案么?
私信牛牛菌即可获取设计师联系方式
抑或你还想设计师给你出哪个户型的方案?
也可以私信牛牛菌你的户型哦!
老铁们也可以关注公众号“牛牛搭新家装”,回复“案例”查看更多优质方案哦!