项目是一个科技办公园区的销售展示中心,但以业主所需要展示的装修面积只足够涵盖整栋展示楼的两层面积。 与其如此把所谓装修和毛坯区域毫无相关的按楼层分开而忽略了原来的空间关系,设计师提出了如何分配有限的装修面积于整栋不同的楼层,让局部装修过的体验空间和毛坯区域穿插并存,进而利用整栋楼的展示潜能,并扩展出空间的不同可能性。
有别于一般室内设计做到满的方式,每层楼只选择性地设计部分空间、以精装修区域展多种体验的可能性,让周围保留初始的空间状态,展现纯净的结构与光影,从而激发未来租户各自的想象,也预留出发挥的空间填入更多的故事。
▼ 一层展厅

▼ 三层展厅和办公室,风格截然不同

首先,功能关系先明确了展示、咨询、休息、漫游之间的互动和流线,以不同的组合串联了和销售有关的体验序列。
▼ 功能关系图

接下来,在空间框架上,室内从建筑本身的窗洞系统上,衍生出以大窗洞为空间切换的空间语言,让每个门框的转换成不同的空间体验,尤其是毛坯与新设计空间的转换界面。通过丰富的地面、墙面和天花轮廓的组合和变化,设计师针对不同人群的需求置入了一系列体验空间:游客的参观空间、租户的咨询空间和内部员工的办公空间。
▼ 变化的轮廓创造丰富的空间

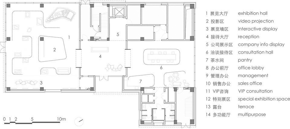
楼层空间规划上,一楼是主要的接待空间,从入口大厅两侧延伸出展览大厅和接待大厅。在两侧挑高的空间内,利用了一层一层的悬吊屏风衍生出了丰富的模型展示、投影、休息、观看、会谈、和游走空间。
▼ 一层接待区

▼ 一层展厅,悬吊屏风划分丰富空间



▼ 洽谈接待区


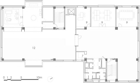
二楼是展示与内用并存的办公空间。从电梯厅到达一个缓冲的休息展示综合区后,一侧是开阔的创意办公空间,一侧则是保留了原始毛坯的空间让访客能直观的感受之后的扩充可能性。
▼ 办公前厅,空间原始简洁

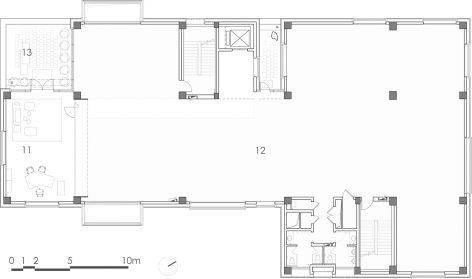
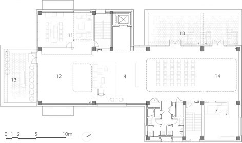
三楼和四楼尽量无间断的体现广阔的毛坯空间,并在转角有大窗视野的区域植入了特色体验展示厅:三楼为休闲办公和经典家具的组合、四楼为总经理办公和现代家具的组合。所留白的毛坯空间将留给园区一个综合展览平台,邀请策展人不定期的举办例如建筑与张江建设的文化展览。
▼ 三层特别展厅,窗洞连接精装修的VIP洽谈室

▼ 现代装修的洽谈室

▼ 四层特别展厅连接精致的总经理办公

▼ 门框转换空间体验



顶层的五楼,延续了一楼的悬吊屏风空间语言和三、四楼的植入体验室策略,设置了开阔的多功能厅和私密的互动式汇报厅,也利用顶层较好的采光,结合户外露台地面的变化,引导访客慢慢往外探索,在可环绕观看园区其他楼层的自然休闲环境下,完成整栋楼的体验。
▼ 五层接待区

▼ 五层特别展厅和办公室,悬挂屏风丰富空间体验


▼ 多功能厅与室外露台相连

整个体验中心的内部在被设计与未被设计的空间组合之下,真实地展示了其空间本质以及其可多样的开发可能,为不同的人群带来完整的空间体验。
▼ 一层平面图

▼ 二层平面图,second floor plan / 三层平面图,third floor plan


▼ 四层平面图,fourth floor plan / 五层平面图,fifth floor plan


名称: 华鑫 慧天地体验中心
地点: 上海浦东新区丹桂路999号
类型: 销售展厅
设计单位:刘宇扬建筑事务所 ,茅氏设计
主持建筑师: 刘宇扬,Herman Mao
建设单位:华鑫置业
施工单位: 上海建筑装饰有限公司
家具供应:MATSU, van collection
建筑面积: 3200平方米
装饰面积:1880平方米
设计时间: 2015.01-2015.03
施工时间: 2015.04-2016.02
摄影: Herman Mao Photography