

创视界空间装饰设计合伙人刘学文
设计是值得用一生的时间去做的事
【从业时间】:14年
【从业经历】:2016年至今在创视界空间设计事务所任设计师,2013年自由设计师,2009—2012担任赤峰东易日盛集团主任级设计师
【获奖】:
2010年东易集团总部获得空间设计一等奖,2010年荣获红星美凯龙和赤峰市装饰协会共同举办的设计大赛中一举荣获“创意最佳奖”,2011年荣获东易日盛内蒙地区产值最佳奖,2011年荣获亚太区室内设计优秀奖,2012年《亚星国际公寓》荣获2012年筑巢奖优秀奖,2013年《双珑原著》荣获金堂奖创意奖,2015年《远洋天著》荣获亚太区室内设计优秀奖,2016年《世爵华府》荣获筑巢奖优秀奖,2018年《公园大道》获IDS国际设计先锋榜最具空间表现奖,2018年《公园大道》获中国设计大赛金奖
【设计项目】:
《红廷别墅》、《优山美地》、《公园大道》、《皇家帝苑》、《远洋天著》、《中天御苑》、《孔雀城》、《富力湾》、《温哥华森林》、《中海九号公馆》、《华睿园》、《富河国际》、《孔雀城》、《德润公馆》、《丽樽别墅》、《水木兰亭》、《泰和王 府》、《滟澜新宸》、《红杉溪谷》、《好望山》、《绿茵别墅》、《会展誉景》、《公园大道》、《金融街》、《万象新天》、《澳林春天》等
大家好,我是室内设计师刘学文,很高兴今天能和大家分享一个设计案例,我希望能通过我的这个设计案例,为正在装修或准备装修的业主朋友提供一些帮助,还有通过这个设计案例,能够和设计师朋友们进行一个交流,接下来我来讲解我的设计案例(此作品分两篇完成,今天我们先讲解第一部分)。
这个案例我个人认为还是比较有代表性的,所以拿出来跟大家分享,我会通过别墅的设计要点,业主的需求,平面布局,效果展示一一为大家分享。
做设计这么多年,首先应该是把自己设计师的身份忘掉,不要太过于沉迷于风格框架,本身你在做设计做的不是形式,太执着于形式的表达,会忽略掉你的客户的感受。用心多试着了解你的业主,做关于他的表达。单从房子本身看,他不是几个平层的叠加,在做设计之前,脑海里先要有一个横向和纵向的关系,在整个过程中要对这个横向和纵向的关系进行梳理。庭院层的设计是要考虑由内而外的视觉延伸,这也是他和平层设计的一个比较重要的区别点。
业主是两个年轻人和一个宝宝,未来还会再生一个宝宝。在和业主沟通后,确定了采用极简的设计手法,去掉所有多余的装饰,我更希望通过材质,颜色,还有灯光的变化,来体现房子自身结构的美感。如何让这么大的房子充分的被业主使用,这是做这个设计最主要解决的问题。

(B2原始图)

(B2平面图)
大家看一下,上边是负二层的原始结构,下边是负二层的平面图。左下角是车库,从车库进到整栋房子,这里也就是比较重要的一个动线,但是,进来以后他的功能是缺失的,比如要放衣服,放包,放鞋,这个地方是满足不了的。楼梯前边浪费的空间比较大,是原有空间的得不到释放,尤其是最左边的长廊又窄又长,宽度一米还是比较窄的,利用率不高。右边是一个跳空,高度在一层半,如果隔出来一层也是可以的。右下角分别是配电室,和一大一小两个空间
在做设计之前,和业主有过比较深入的沟通,业主反馈是负二层的功能需求不要做的太满,够用就可以。对于车库的设计是针对车库增加了三个收纳空间,分别是车库的左边,楼梯的下面,还有电梯的旁边,车库也是业主的工作室之一,会用到喷漆,因为味道比较大,所以放在车库还是比较合理的,味道不会影响到室内。从车库进门以后正对车库门是组衣帽柜,同时还有一个小的衣帽间进行功能补充,这样设计完全可以满足一家人进门后换鞋,挂衣服,还可以有一定的储物空间储存不常用的行李箱之类的大件物品。
对原有的卫生间进行了小的调整,负二层的卫生间因为整层没有住人,所以保证坐便和洗手的功能就可以。原有楼梯也被移到了使用率并不高的左侧长廊,这样可以减少过道的面积,并增加了一个洗衣房的功能,因为住的人口很少,洗衣房的面积并没有设计的太大,满足机洗,手洗和烘干还有收纳这几点就可以了。。右边挑空区又隔了一层,通过旋转楼梯上到夹层。这个挑空区是保留大面积留白的,方便将来更换软装物品,并没有做太多定制类产品的设计,也是为了将来这个空间应该是一个多变的,功能重叠的复合型空间,既可以让小宝宝在这里玩耍,也可以调整成其他功能,尽量不要把一个空间的功能完全定义死。挑空下边是一个半开放式的视听空间,关上推拉门可以作为视听间,打开推拉门,他又可以和挑空区融为一体,这个设计可以让负二层富有变化。

(B1原始图)

(B1平面图)
负一层的原始结构相对比较简单,左上角是一个设备房,设备房旁边是保姆房和卫生间。业主需要两个保姆间,所以在这个区域重新对布局进行了调整。右边是挑空区。原始结构图下面是一个开敞空间。
负一层的平面规划主要集中在设备间旁边和开敞空间。在设备间旁边,规划出两个保姆间,和保姆专用的卫生间,同时还设计出一个业主用的卫生间。对于开敞空间的设计思路是我希望这个空间能作为朋友聚会,聊天,喝酒,喝茶等的复合型多功能区,业主是年轻人,家里来朋友聚会的机会比较多,这里可以很好的满足很多人的聚会需求。从负二层的楼梯走上来回来到负一层的西厨区。在西厨区可以解决朋友聚会时的很多需求,比如喝酒,喝茶,聊天,上网打游戏,打牌,吃简餐等,让整个西厨区作为多功能区。西厨区右侧将原有的楼板打掉做了一个下沉式的休闲区,可以让整个空间看上去不是在一个平面上,增加了视觉的层次变化。同时朋友过来聚会在这里聊聊天喝喝酒也是不错的选择。下沉式休闲区的右边是一个开放式的茶室,主要是用来补充下沉式休闲区的功能,如果来的朋友比较多,这里也可以坐人。整个开敞空间可以作为朋友聚会的主要空间,年轻人聚会会比较闹,放在这里也不会影响到其他楼层。挑空隔出来的夹层是通过旋转楼梯上去的,上去以后是一个开放的满墙书架,通过走廊可以来到业主的办公区,业主的工作和电脑有关,经常会在家里办公,把办公空间设计在夹层上比较安静不会被打扰。

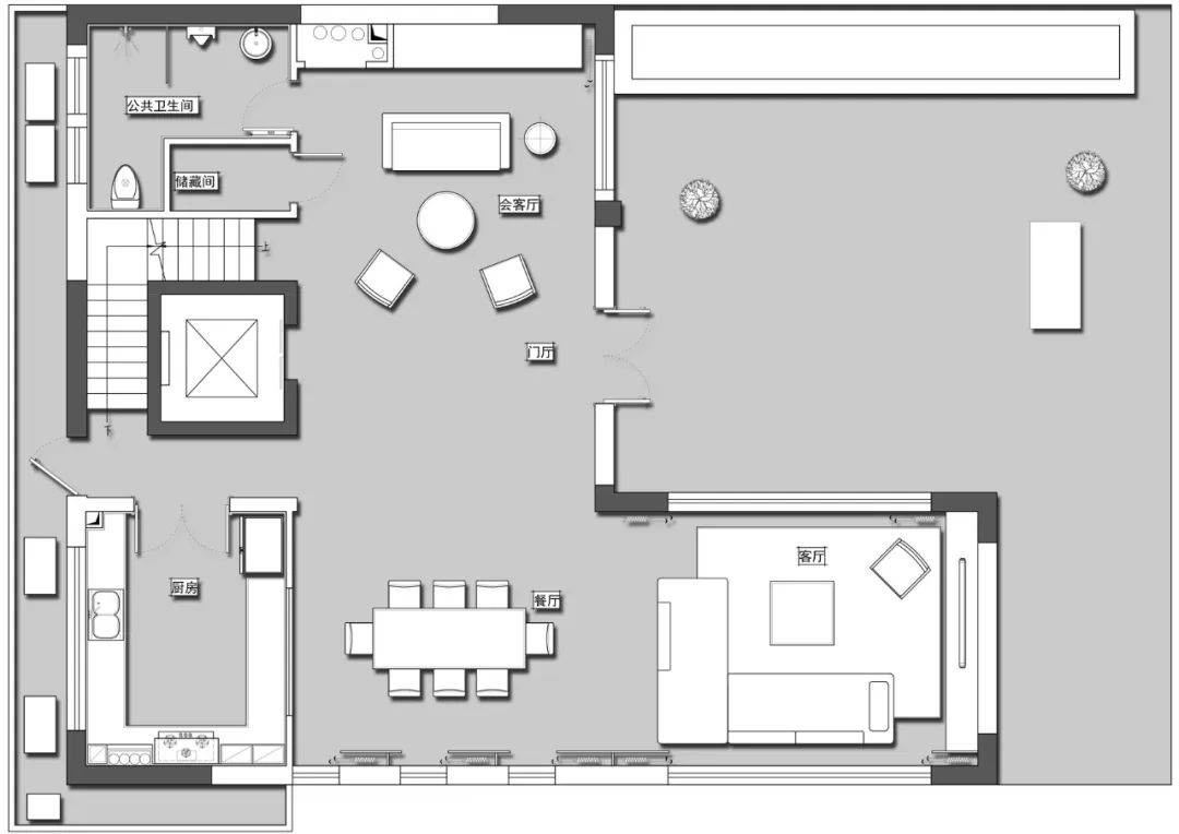
(一层原始图)

(一层平面图)
一层的原始结构分为庭院和房子两部分,房子的上面是一个套间,中间是门厅区,下面是厨房,餐厅和客厅。由于住的人口不多,所以套间存在的意义并不大,做成公共空间会比较能满足业主实际使用的需求。
把墙体打掉以后空出来的空间我建议业主也先不要摆满,空出来等小宝宝长大一些可以作为孩子的主要活动区域,因为这里的光线通风还是比较好的,很适合小朋友在室内玩耍。原有厨房的面积很小,相对于整栋房子来说,厨房的比例显然是不协调的。厨房作为整栋房子比较重要功能空间,太小的话会让在里边操作的人很不舒服。所以把厨房的面积调整大,一是可以让在里边操作的人动线流畅,二是可以增加厨房的收纳空间。
对于卫生间的调整是满足正常是用的前提下,又规划出一个小空间作为收纳区。之前说到一层的儿童玩耍的地方,玩具一定会比较多,而却杂乱无章,有这么一个小空间专门来收纳孩子的玩具,会让整个客厅看上去不那么乱。

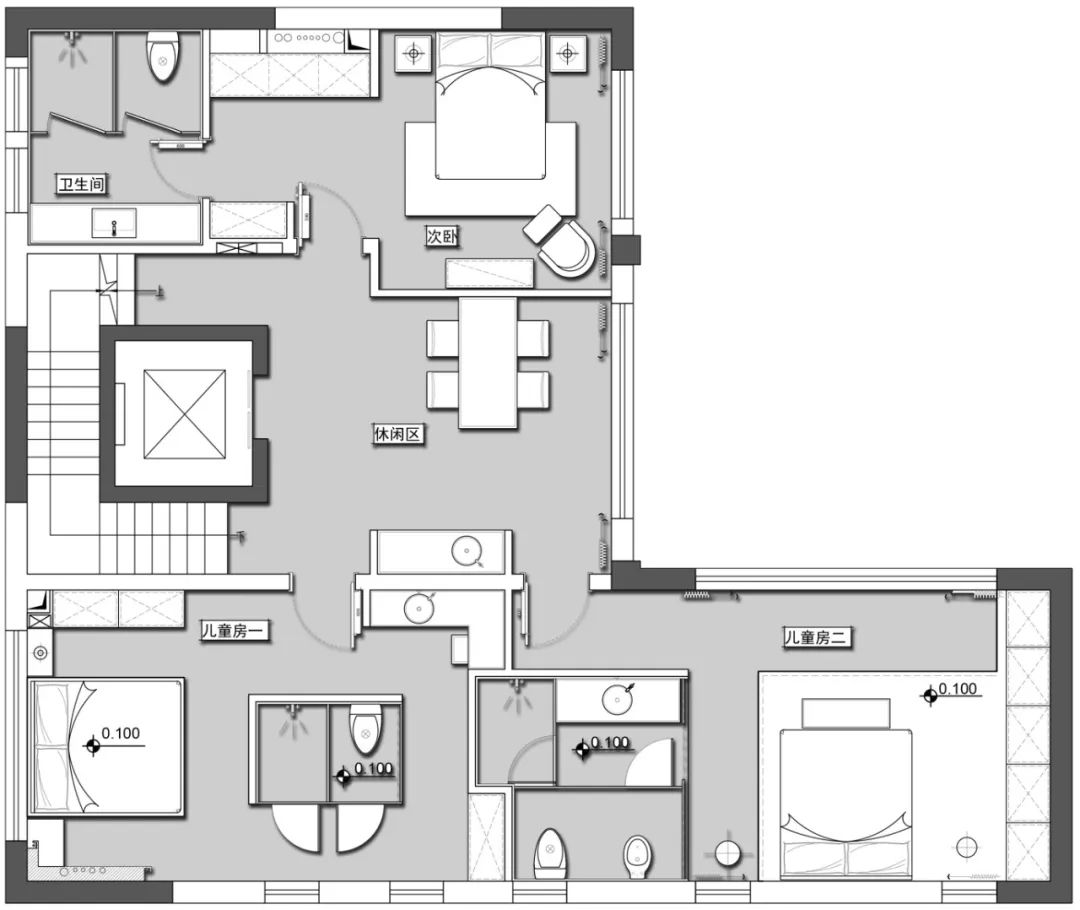
(二层原始图)

(二层平面图)
二层的原始结构是由一大一小两个套间和一个起居室组成的,现在业主有一个宝宝,将来还会再生一个宝宝。我希望这两个宝宝将来在同一层居住,于是把大的套间分成了两个小的套间,分别给两个宝宝来住。缩小起居室的面积,把面积给到上边的套间。上边的套间是为了将来老人过来照顾孩子比较方便。起居室主要是让孩子用来阅读,做手工的功能,因为起居室有一个采光和通风都比较理想的大窗户,能够很好地保证阳光的照入,同时在起居室设计了一个水吧台,方便烧水,吃水果,不用下楼去厨房,也提高了大人带孩子时的安全性。

(三层原始图)

(三层平面图)
三层的原始结构是由室内部分和室外露台两部分组成。设计思路是将整个三层都由业主使用,从电梯出来进到主卧室,主卧室是中间高两边低的结构,衣帽间的储物量不会太大,所以在床旁边有设计了一组衣柜进行储物,水吧也隐藏在这组柜子里,主卧室里设计了一个休闲区,这是业主的独享空间,在这里会比较安静,不会被打扰。原有通往露台的门洞封上,在休闲区开了一个门洞,原有露台改造成了一个超级豪华的卫生间。
好的朋友们,我今天针对每层的原始结构和平面规划做了一个简单的交流,在下一期我会对效果的展示进行详细的分享,敬请期待。
创视界空间装饰三大优势
1.勇于担责 从施工开始到房屋交付的过程中出现任何设计问题,都由设计师替客户全权负责协调解决。
2.缩短工期 施工前,设计方案、施工方案和产品采购全部完成。施工过程中,不需要再与业主探讨任何设计问题,也不用因等待产品的到位而拖延施工进度。
3.完美落地 由于设计方案的完善、施工方案的严谨、配饰产品、主材产品的采购前置,从而保证设计的完美落地。
行业内唯一有设计标准服务标准的企业
设计标准
- 硬装设计, 全套施工图设计
- 产品配搭,与风格配套的产品搭配设计
- 软装配饰,完美软装配饰方案
服务标准
1,硬装施工 工地跟踪服务 节点控制
2,软装配饰 协同客户将方案落地执
行业唯一设定了设计服务监督体系的企业
设计师在服务过程中所有节点控制必须参与,并由业主及相关施工负责任人签字确认,设计师拍照上传到项目群,客服人员纪录在案,用作项目完工给设计师评定分数使用。
咨询我们请打电话4008004740

微信扫一扫关注该公众号