安阳市城乡一体化示范区是安阳市东部建设中的城市新区,是安阳市副中心城市,也是安阳环高铁站中心商务区所在地。

高铁站中心商务区
安阳示范区新区建设发展的功能定位是"四区一中心",示范区发展定位为安阳市城乡一体化先行区,现代化复合型功能区,对外开放示范区,产业转型升级先导区以及豫晋冀交界地区综合交通枢纽和区域物流中心的四区一中心,是安阳最有发展潜力的一个区域。

示范区发展空间布局图
随着示范区入住人口越来越多,对教育医疗商业需求越来越大,已经规划了安阳市第三座万达广场,已经建成了北大新世纪实验学校安阳分校和示范区飞翔中学等优质教育资源,还有部分学校也在建设中,医疗规划了安阳市儿童医院和安阳市肿瘤医院,以及安阳市骨科医院。
安阳市骨科医院由闻名豫北地区的滑县骨科医院投资建设,滑县骨科医院为国家二级甲等中医专科医院。也是全国百佳诚信医院和河南省最佳骨科医院以及河南省卫生先进单位,骨科专业辐射豫北濮阳新乡鹤壁等地级市。

滑县骨科医院
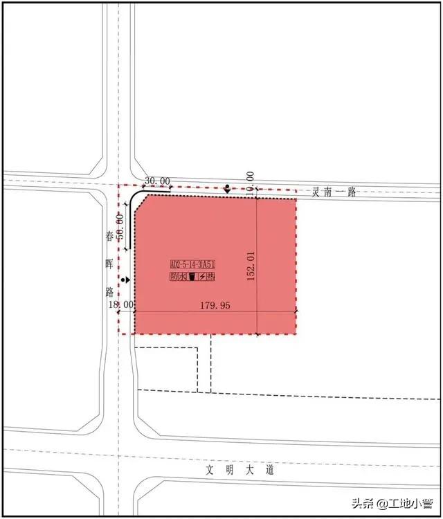
安阳市骨科医院位于安阳县春晖路与灵南一路交叉口东南。

医院位置
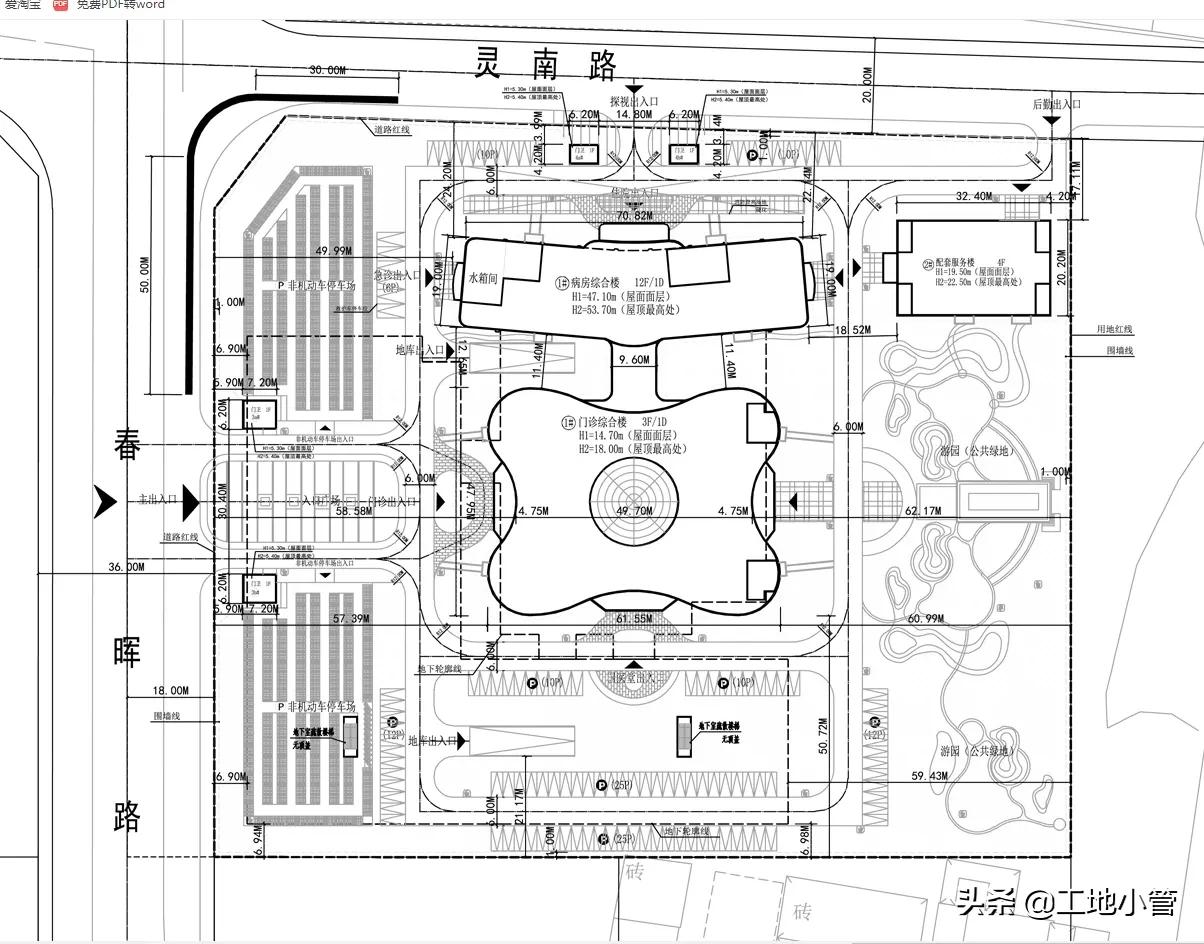
医院总投资2亿元,医院地理位置非常优越,西侧安阳东站,京港澳高速,方便本地和外地患者前来就医。安阳骨科医院主要建设项目包括门诊、病房综合楼、配套服务楼、门卫、风井等。

安阳市骨科医院效果图
安阳市骨科医院环评和各项建设手续已经审批通过,并进行了公示,预计很快就具备开工条件。

审批的规划图
安阳市骨科医院的建设,对于周边群众就医提供很大的便利,周围在建或者已经交付的小区也很多,有恒大未来城,碧桂园·玺悦,利源·迎宾壹号,蓝城·凤起宸鸣,昌建金科·澜境,建业多伦·天筑等高端小区,随着各配套设施的不断完善,这里将成为安阳的重点发展区域。